• 手机版

    扫码体验手机版

  • 微信公众号

    扫码关注公众号

登录注册
游客您好
第三方账号登陆

[开化] 铂悦府25-1-1#169㎡现代---现代简约风

[复制链接]
发表于 2024-12-17 09:52:00 | 显示全部楼层 |阅读模式
铂悦府25-1-1#169㎡现代---现代简约风

格堂装饰为您全程记录装修全过程!

小区名称
铂悦府
房屋面积
169㎡
户型结构
4房3卫1厨2厅
装修风格
现代
装修方式
半包
装修造价
查看请联系客服万元
设计师
蒋工
项目经理
施工
装修公司
格堂装饰
完工实景
完工实景
水电全景
水电全景
VR全景
VR全景
设计说明
现代简约风格的设计理念源于简约主义,强调“少即是多”,以简洁的设计手法,追求空间的最大化利用和视觉效果的舒适度。现代简约风注重功能性与美学的平衡,去除多余的装饰,强调材质和色彩的搭配,打造出一个简洁、舒适、清爽的居住环境。
更多信息


效果图
客餐厅1.jpg

客餐厅2.jpg

微信图片_20241102131235.jpg

微信图片_20241102131239.jpg

微信图片_20241102131243.jpg
回复

使用道具 举报

 楼主| 发表于 2024-12-17 09:52:54 | 显示全部楼层
回复 支持 反对

使用道具 举报

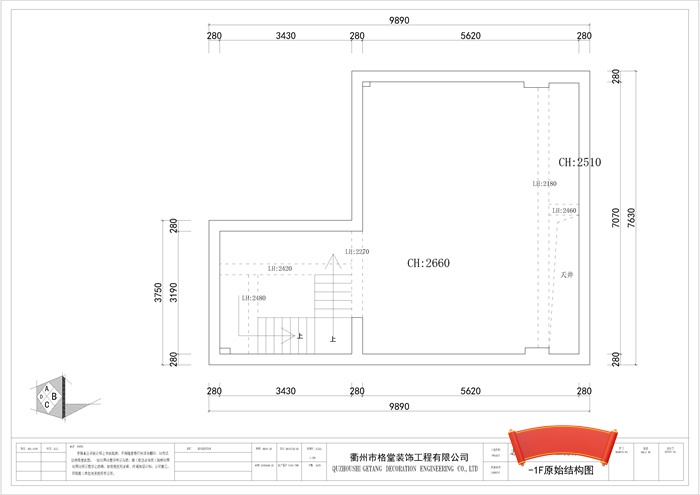
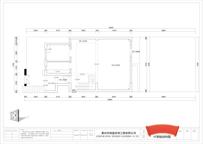
 楼主| 发表于 2024-12-17 09:55:05 | 显示全部楼层


原始结构图
-2F原始结构图_副本.jpg

-1F原始结构图_副本.jpg

1F原始结构图_副本.jpg

2F原始结构图_副本.jpg
回复 支持 反对

使用道具 举报

 楼主| 发表于 2024-12-17 09:55:49 | 显示全部楼层


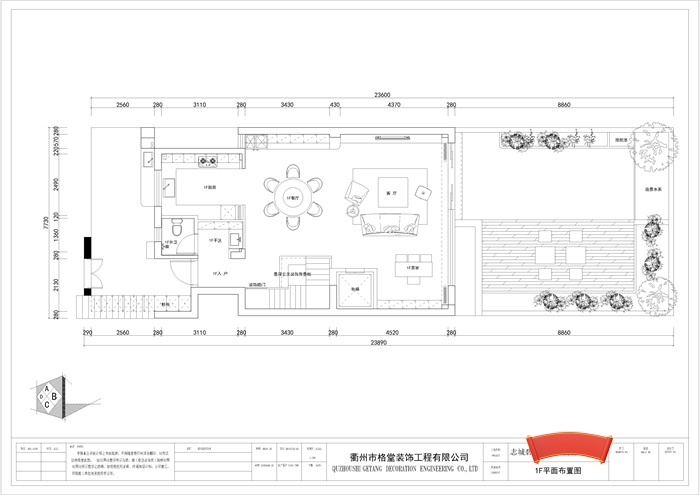
平面布置图
-2F平面图_副本.jpg

-1F平面图_副本.jpg

1F平面图_副本.jpg

2F平面图_副本.jpg
回复 支持 反对

使用道具 举报

 楼主| 发表于 2024-12-17 09:57:41 | 显示全部楼层


开工前准备
IMG_8248.JPEG

IMG_8249.JPEG

IMG_8251.JPEG

IMG_8256.JPEG
回复 支持 反对

使用道具 举报

 楼主| 发表于 2024-12-17 09:58:17 | 显示全部楼层


开工前准备
IMG_8255.JPEG

IMG_8257.JPEG

IMG_8258.JPEG
回复 支持 反对

使用道具 举报

 楼主| 发表于 2024-12-17 09:58:49 | 显示全部楼层


门槛保护
IMG_8252.JPEG
回复 支持 反对

使用道具 举报

 楼主| 发表于 2024-12-17 09:59:07 | 显示全部楼层

大门保护
IMG_8253.JPEG
回复 支持 反对

使用道具 举报

 楼主| 发表于 2024-12-17 09:59:29 | 显示全部楼层


下水保护
IMG_8254.JPEG
回复 支持 反对

使用道具 举报

 楼主| 发表于 2024-12-17 10:00:51 | 显示全部楼层


吉时到,我们开工啦
IMG_8291.JPEG
回复 支持 反对

使用道具 举报

您需要登录后才可以回帖 登录 | 立即注册

本版积分规则

全国统一客服电话
0570-8028505

24x7小时免费咨询

  • 官方在线客服

    QQ客服:小西

    点击交谈

    QQ客服:良子

    点击交谈

    QQ客服:闵月

    点击交谈
  • 衢州市柯城区财富中心3号楼2楼

  • 衢州格堂装饰有限公司

  • 扫一扫关注官方微信

    获取一手特惠信息

快速回复 返回顶部 返回列表