[江山] 湖溪里自建房248㎡现代奶油-藏不住的温柔 |
|
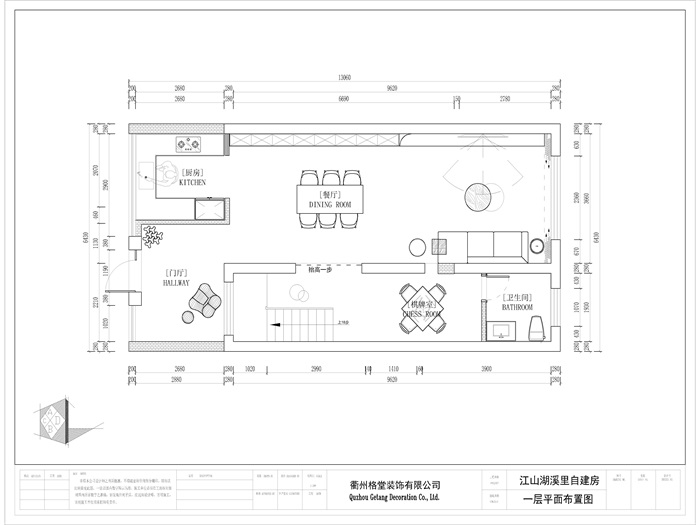
湖溪里自建房248㎡现代奶油-藏不住的温柔
格堂装饰为您全程记录装修全过程! 设计说明
我们致力于创造一个温馨宁静的家,让居住者感受到无尽的温柔与关怀。整体采用柔和的米色和浅木色调,搭配绿色植物,营造自然清新的氛围。客厅的布艺沙发和餐厅的木质餐桌都强调舒适与美感,而卧室则注重私密与温馨,让人感受到家的温暖。细节处理上,我们精心挑选窗帘和地毯,力求让每个角落都充满精致与温馨
更多信息
| |
|
|


在线客服
微信客服
关注有礼