• 手机版

    扫码体验手机版

  • 微信公众号

    扫码关注公众号

登录注册
游客您好
第三方账号登陆

[龙游] 龙都锦城1-13#65㎡现代——暑前

[复制链接]
发表于 2024-12-2 16:40:14 | 显示全部楼层 |阅读模式
署前

格堂装饰为您全程记录装修全过程!

小区名称
龙都锦城
房屋面积
65㎡
户型结构
套房
装修风格
现代
装修方式
半包
装修造价
查看请联系客服万元
设计师
陈工
项目经理
谢工
装修公司
格堂装饰
完工实景
完工实景
水电全景
水电全景
VR全景
VR全景
设计说明
业主喜欢简单的以黑色调为主
更多信息
本帖最后由 格堂小静 于 2025-5-26 13:01 编辑

客厅效果图
971196d27c544c0a655a6b7e646206a1.JPG

ff6d098db04128a435300ecc517496c2.JPG
主卧效果图
c01e051f20637f0b3cfefbf6f698a890.JPG
次卧效果图
5db222e7b387f06ad34c06eaa195994c.JPG

目      录







回复

使用道具 举报

 楼主| 发表于 2024-12-2 16:41:34 | 显示全部楼层
原始结构图

IMG_8975.JPG
回复 支持 反对

使用道具 举报

 楼主| 发表于 2024-12-2 16:41:58 | 显示全部楼层
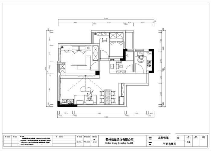
平面布置

IMG_8976.JPG
回复 支持 反对

使用道具 举报

 楼主| 发表于 2024-12-2 16:43:02 | 显示全部楼层
开工布置

IMG_8918.JPG

IMG_8955.JPG

IMG_8935.JPG

IMG_8936.JPG
回复 支持 反对

使用道具 举报

 楼主| 发表于 2024-12-2 16:43:28 | 显示全部楼层
次卧

IMG_8937.JPG

IMG_8938.JPG
回复 支持 反对

使用道具 举报

 楼主| 发表于 2024-12-2 16:43:51 | 显示全部楼层
主卧

IMG_8940.JPG

IMG_8941.JPG

IMG_8939.JPG
回复 支持 反对

使用道具 举报

 楼主| 发表于 2024-12-2 16:44:36 | 显示全部楼层
卫生间厨房

IMG_8932.JPG

IMG_8933.JPG

IMG_8934.JPG
回复 支持 反对

使用道具 举报

 楼主| 发表于 2024-12-2 16:45:02 | 显示全部楼层
开工礼炮

IMG_8914.JPG
回复 支持 反对

使用道具 举报

 楼主| 发表于 2024-12-2 16:45:32 | 显示全部楼层
招财进宝

IMG_8915.JPG
回复 支持 反对

使用道具 举报

 楼主| 发表于 2024-12-2 16:45:52 | 显示全部楼层
开工锤

IMG_8916.JPG
回复 支持 反对

使用道具 举报

您需要登录后才可以回帖 登录 | 立即注册

本版积分规则

全国统一客服电话
0570-8028505

24x7小时免费咨询

  • 官方在线客服

    QQ客服:小西

    点击交谈

    QQ客服:良子

    点击交谈

    QQ客服:闵月

    点击交谈
  • 衢州市柯城区财富中心3号楼2楼

  • 衢州格堂装饰有限公司

  • 扫一扫关注官方微信

    获取一手特惠信息

快速回复 返回顶部 返回列表