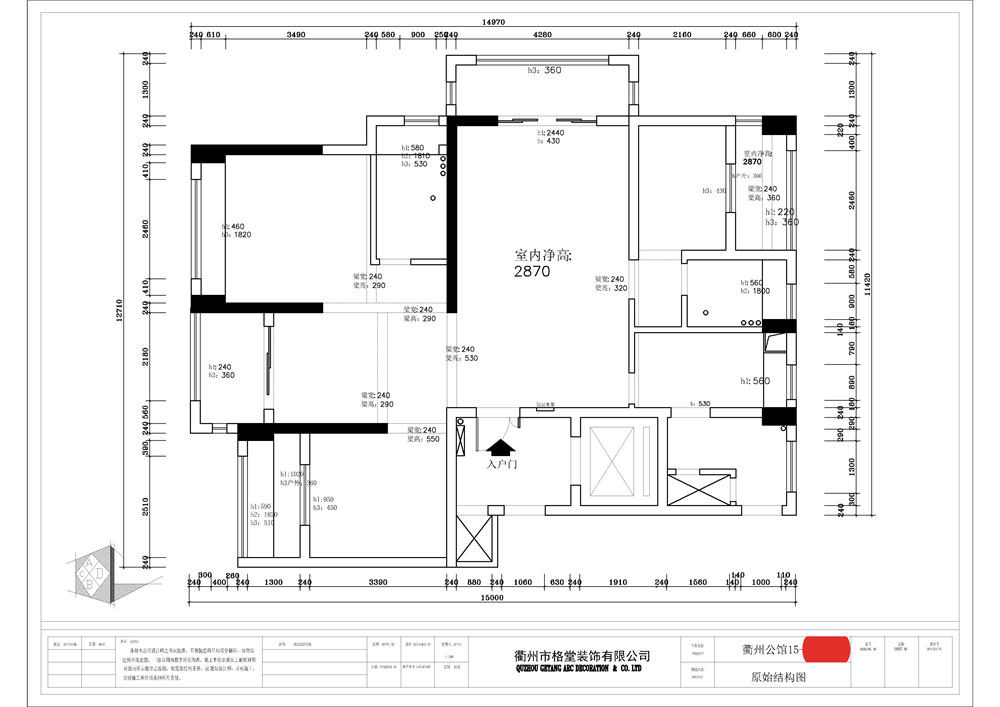
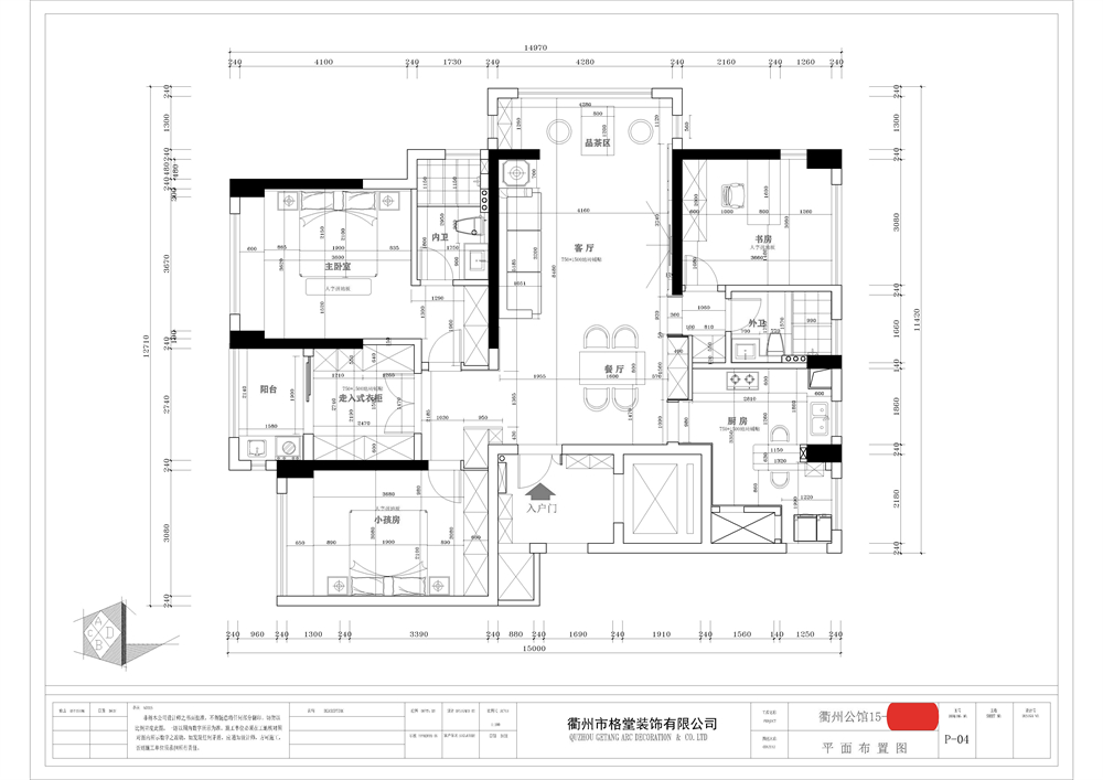
衢州公馆15-5#143㎡法式中古风——邂逅幸福人生 |
|
衢州公馆15-5#143㎡法式中古风——邂逅幸福人生
格堂装饰实景完工案例欣赏!
设计说明
本套设计法式中古风,中古的吊灯,法式的家具,法式的PU线条,互相搭配,融为一体。格局上空间利用最大化,入门餐厅客厅大通间,让原来143多方的房子马上有160方的既视感。此套细节做得很细,电箱移位到中间刚好一个装饰画。过道上黑板墙留言板,家庭的交流处。走入室衣柜工艺门都是亮点。没有弧度的直线条造型显得空间块面更清晰。板式的、条形的PU线条穿插点缀,更凸显了优雅的法式风格。全屋色调温暖使用小羊皮艺术漆,搭配墨绿色、原木色的护墙板,深浅搭配,一切都是那么自然平衡。
设计再把原来的厨房扩大,定制实木吧台,安装了空调,厨房烤箱蒸箱洗碗机各种功能齐全。业主回家烧饭,再也不担心烧个饭汗流浃背了,独一无二就餐的环境。女业主还是一个古筝艺术家,所以在阳台预留了乐谱位置,让生活充满诗意。两个卫生间也都把空间利用到极致,洗手盆单独定制,台面也都做了延伸,让空间更实用大气。绿色和灰色瓷砖搭配,颜色的碰撞,就像不同的音符奏出一首美妙的曲子。 更多信息
| |
|
格堂装饰网www.gtzs.com首创衢城(甚至全国)装修全新模式,为您记录装修全过程,有专门客服为您记录装修全过程传到格堂公司内部网站!
|
|
| |
|
格堂装饰网www.gtzs.com首创衢城(甚至全国)装修全新模式,为您记录装修全过程,有专门客服为您记录装修全过程传到格堂公司内部网站!
|
|
| |
|
格堂装饰网www.gtzs.com首创衢城(甚至全国)装修全新模式,为您记录装修全过程,有专门客服为您记录装修全过程传到格堂公司内部网站!
|
|
| |
|
格堂装饰网www.gtzs.com首创衢城(甚至全国)装修全新模式,为您记录装修全过程,有专门客服为您记录装修全过程传到格堂公司内部网站!
|
|
| |
|
格堂装饰网www.gtzs.com首创衢城(甚至全国)装修全新模式,为您记录装修全过程,有专门客服为您记录装修全过程传到格堂公司内部网站!
|
|
| |
|
格堂装饰网www.gtzs.com首创衢城(甚至全国)装修全新模式,为您记录装修全过程,有专门客服为您记录装修全过程传到格堂公司内部网站!
|
|
| |
|
格堂装饰网www.gtzs.com首创衢城(甚至全国)装修全新模式,为您记录装修全过程,有专门客服为您记录装修全过程传到格堂公司内部网站!
|
|
| |
|
格堂装饰网www.gtzs.com首创衢城(甚至全国)装修全新模式,为您记录装修全过程,有专门客服为您记录装修全过程传到格堂公司内部网站!
|
|
| |
|
格堂装饰网www.gtzs.com首创衢城(甚至全国)装修全新模式,为您记录装修全过程,有专门客服为您记录装修全过程传到格堂公司内部网站!
|
|
| |
|
格堂装饰网www.gtzs.com首创衢城(甚至全国)装修全新模式,为您记录装修全过程,有专门客服为您记录装修全过程传到格堂公司内部网站!
|
|


在线客服
微信客服
关注有礼