• 手机版

    扫码体验手机版

  • 微信公众号

    扫码关注公众号

登录注册
游客您好
第三方账号登陆

[衢州] 星月宸庐4-2-5#96㎡现代——静谧之境

[复制链接]
发表于 2024-11-13 16:00:37 | 显示全部楼层 |阅读模式
星月宸庐4-2-5#96㎡现代——静谧之境

格堂装饰为您全程记录装修全过程!

小区名称
星月宸庐
房屋面积
96㎡
户型结构
套房
装修风格
现代
装修方式
半包
装修造价
查看请联系客服万元
设计师
梁工
项目经理
周工
装修公司
格堂装饰
完工实景
完工实景
水电全景
水电全景
VR全景
VR全景
设计说明
设计是对生活的回应,促使人们对居住环境深入思考:以技术手段整合空间,打造精致舒适的居家环境,创造自然式可持续性的生活方式。
更多信息
效果图

微信图片_20241113154922.jpg

微信图片_20241113154952.jpg

微信图片_20241113154957.jpg
回复

使用道具 举报

 楼主| 发表于 2024-11-13 16:02:08 | 显示全部楼层
回复 支持 反对

使用道具 举报

 楼主| 发表于 2024-11-13 16:04:35 | 显示全部楼层
原始结构图

微信截图_20241113155258.png

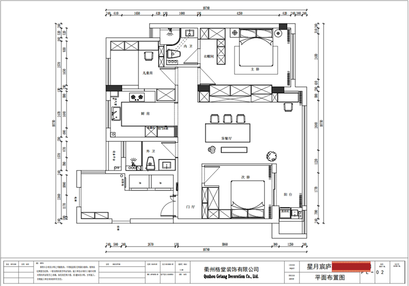
平面布置图
微信截图_20241113155348.png
回复 支持 反对

使用道具 举报

 楼主| 发表于 2024-11-13 16:12:55 | 显示全部楼层
本帖最后由 格堂余姐 于 2024-11-13 16:27 编辑

开工前,电梯口墙面和地面已经保护到位。
IMG20241112100935.jpg

IMG20241112100937.jpg

IMG20241112100942.jpg

IMG20241112100946.jpg

IMG20241112101005.jpg

对角图

IMG20241112101013.jpg

IMG20241112101015.jpg

IMG20241112101017.jpg

IMG20241112101019.jpg

IMG20241112101023.jpg


回复 支持 反对

使用道具 举报

 楼主| 发表于 2024-11-13 16:15:36 | 显示全部楼层
本帖最后由 格堂余姐 于 2024-11-17 15:10 编辑

门槛已经保护到位。
IMG20241112101042.jpg

大门已经保护到位。
IMG20241112101102.jpg

煤气表已经保护到位。
IMG20241117140431.jpg

临时小便池已经安放好了,每一个施工现场都会配备临时小便斗,并且时刻保持干净卫生,保证工地环境干净整洁。
IMG20241117140337.jpg
排水管道用格堂专用保护盖保护,防止后期施工中砂石 堵塞管道
IMG20241117140434.jpg

IMG20241117140502.jpg

IMG20241117141115.jpg
回复 支持 反对

使用道具 举报

 楼主| 发表于 2024-11-13 16:17:37 | 显示全部楼层
本帖最后由 格堂余姐 于 2024-11-13 16:18 编辑

开工仪式准备,开工横幅、鲜花、礼花准备到位,就等吉时!
微信图片_20241112110745.jpg

吉时到开工了,恭祝业主大人开工大吉!
微信图片_20241112110830.jpg

微信图片_20241112110845.jpg

开工第一锤,由业主敲在要拆除的墙体的墙角上,象征一锤定音,也代表着新房动土。
微信图片_20241112110916.jpg

敲的痕迹
微信图片_20241112110933.jpg

回复 支持 反对

使用道具 举报

 楼主| 发表于 2024-11-13 16:21:44 | 显示全部楼层
本帖最后由 格堂余姐 于 2024-11-21 10:36 编辑

设计师和项目经理正在按图纸拆改放样,确保放样无误。


微信图片_20241112110947.jpg
微信图片_20241112111825.jpg

微信图片_20241112111830.jpg

微信图片_20241112111834.jpg

微信图片_20241112111840.jpg

微信图片_20241112111844.jpg

微信图片_20241112111849.jpg

微信图片_20241112111855.jpg

微信图片_20241112114435.jpg

回复 支持 反对

使用道具 举报

 楼主| 发表于 2024-11-20 16:47:49 | 显示全部楼层
本帖最后由 格堂余姐 于 2024-11-21 10:54 编辑

门厅+次卧已经拆改到位了

IMG20241120090102.jpg

IMG20241120090105.jpg

IMG20241120090111.jpg

IMG20241120090114.jpg

IMG20241120090119.jpg
回复 支持 反对

使用道具 举报

 楼主| 发表于 2024-11-20 16:50:12 | 显示全部楼层
对角图

IMG20241120090128.jpg

IMG20241120090130.jpg

IMG20241120090140.jpg

IMG20241120090142.jpg

IMG20241120090145.jpg
回复 支持 反对

使用道具 举报

 楼主| 发表于 2024-11-20 16:51:35 | 显示全部楼层
外卫已经拆到到位了

IMG20241120090212.jpg

IMG20241120090222.jpg

IMG20241120090225.jpg

IMG20241120090229.jpg

IMG20241120090232.jpg
回复 支持 反对

使用道具 举报

您需要登录后才可以回帖 登录 | 立即注册

本版积分规则

全国统一客服电话
0570-8028505

24x7小时免费咨询

  • 官方在线客服

    QQ客服:小西

    点击交谈

    QQ客服:良子

    点击交谈

    QQ客服:闵月

    点击交谈
  • 衢州市柯城区财富中心3号楼2楼

  • 衢州格堂装饰有限公司

  • 扫一扫关注官方微信

    获取一手特惠信息

快速回复 返回顶部 返回列表