• 手机版

    扫码体验手机版

  • 微信公众号

    扫码关注公众号

登录注册
游客您好
第三方账号登陆

[衢州] 江湾半岛23-1-20#136㎡现代

[复制链接]
发表于 2024-11-12 17:26:55 | 显示全部楼层 |阅读模式
江湾半岛23-1-20#136㎡现代

格堂装饰为您全程记录装修全过程!

小区名称
江湾半岛
房屋面积
136㎡
户型结构
套房
装修风格
现代
装修方式
半包
装修造价
查看请联系客服万元
设计师
王工
项目经理
刘工
装修公司
格堂装饰
完工实景
完工实景
水电全景
水电全景
VR全景
VR全景
设计说明
简洁,实用 追求空间之间的关系,没有过多复杂的装饰,强调简洁的造型,温暖的色彩来营造美观大方的空间效果
更多信息
本帖最后由 格堂黄姐 于 2024-11-21 15:47 编辑

效果图
mmexport1731414011415.jpg

mmexport1731414004695.jpg

mmexport1731414027166.jpg

mmexport1731413995650.jpg

mmexport1731413992034.jpg

回复

使用道具 举报

 楼主| 发表于 2024-11-12 20:53:30 | 显示全部楼层
回复 支持 反对

使用道具 举报

 楼主| 发表于 2024-11-12 20:54:17 | 显示全部楼层
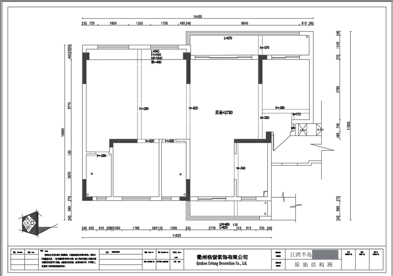
原始结构图
mmexport1731414014188.png

平面布置图
mmexport1731414016547.png

回复 支持 反对

使用道具 举报

 楼主| 发表于 2024-11-12 20:55:27 | 显示全部楼层
本帖最后由 格堂黄姐 于 2024-11-14 17:21 编辑

开工仪式准备,开工横幅、鲜花、礼花准备到位,就等吉时!
mmexport1731415116999.jpg

吉时到开工了,恭祝业主大人开工大吉!
mmexport1731415153708.jpg

开工第一锤,由业主敲在要拆除的墙体的墙角上,象征一锤定音,也代表着新房动土。
mmexport1731415141942.jpg

回复 支持 反对

使用道具 举报

 楼主| 发表于 2024-11-12 20:56:18 | 显示全部楼层
设计师和项目经理正在按图纸拆改放样,确保放样无误。
mmexport1731415130645.jpg

mmexport1731415132813.jpg

mmexport1731415134980.jpg

mmexport1731415137245.jpg

mmexport1731415139492.jpg

回复 支持 反对

使用道具 举报

 楼主| 发表于 2024-11-12 20:57:13 | 显示全部楼层
本帖最后由 格堂黄姐 于 2024-11-20 17:22 编辑

门槛已经保护到位。
IMG_20241120_104336.jpg

大门已经保护到位。
IMG_20241120_104323.jpg

煤气表已经保护到位。
IMG_20241120_104407.jpg

临时小便池已经安放好了:每一个施工现场都会配备临时小便斗,并且时刻保持干净卫生,保证工地环境干净整洁。
IMG_20241120_104552.jpg

排水管道用格堂专用保护盖保护,防止后期施工中砂石 堵塞管道
IMG_20241120_104517.jpg
回复 支持 反对

使用道具 举报

 楼主| 发表于 2024-11-12 20:58:14 | 显示全部楼层
本帖最后由 格堂黄姐 于 2024-11-20 17:28 编辑

开工前,电梯口墙面和地面已经保护到位。
IMG_20241120_104127.jpg

IMG_20241120_104129.jpg

IMG_20241120_104131.jpg

IMG_20241120_104133.jpg

IMG_20241120_104135.jpg

回复 支持 反对

使用道具 举报

 楼主| 发表于 2024-11-12 20:58:22 | 显示全部楼层
本帖最后由 格堂黄姐 于 2024-11-20 17:28 编辑

对角
IMG_20241120_104141.jpg

IMG_20241120_104142.jpg

IMG_20241120_104145.jpg

IMG_20241120_104146.jpg

IMG_20241120_104148.jpg

回复 支持 反对

使用道具 举报

 楼主| 发表于 2024-11-12 20:59:05 | 显示全部楼层
本帖最后由 格堂黄姐 于 2024-11-14 17:24 编辑

拆改阶段
房间铲灰,是为了防止墙顶面出现空鼓,在做好油漆后不会有墙顶面整块油漆脱落的现象。
拆除可以让空间利用更合理。为了整体结构的稳定性和安全性,承重墙是一定不能动的。
mmexport1731415162485.jpg

mmexport1731415164582.jpg

mmexport1731415166708.jpg

mmexport1731415169176.jpg

mmexport1731415171498.jpg

回复 支持 反对

使用道具 举报

 楼主| 发表于 2024-11-14 17:22:32 | 显示全部楼层
本帖最后由 格堂黄姐 于 2024-11-20 17:29 编辑

mmexport1731566214752.jpg


mmexport1731566217352.jpg

mmexport1731566219524.jpg

mmexport1731566221982.jpg

mmexport1731566235149.jpg

mmexport1731566237446.jpg


IMG_20241120_104656.jpg
回复 支持 反对

使用道具 举报

您需要登录后才可以回帖 登录 | 立即注册

本版积分规则

全国统一客服电话
0570-8028505

24x7小时免费咨询

  • 官方在线客服

    QQ客服:小西

    点击交谈

    QQ客服:良子

    点击交谈

    QQ客服:闵月

    点击交谈
  • 衢州市柯城区财富中心3号楼2楼

  • 衢州格堂装饰有限公司

  • 扫一扫关注官方微信

    获取一手特惠信息

快速回复 返回顶部 返回列表