• 手机版

    扫码体验手机版

  • 微信公众号

    扫码关注公众号

登录注册
游客您好
第三方账号登陆

[衢州] 花源里19-2-1#63㎡现代——简

[复制链接]
发表于 2024-11-7 16:43:06 | 显示全部楼层 |阅读模式
花源里19-2-1#63㎡现代——简

格堂装饰为您全程记录装修全过程!

小区名称
花源里
房屋面积
63㎡
户型结构
套房
装修风格
现代
装修方式
半包
装修造价
查看请联系客服万元
设计师
杨工
项目经理
周工
装修公司
格堂装饰
完工实景
完工实景
水电全景
水电全景
VR全景
VR全景
设计说明
小空间极简设计
更多信息
效果图

微信图片_20241107163407.jpg

微信图片_20241107163421.jpg
回复

使用道具 举报

 楼主| 发表于 2024-11-7 16:47:36 | 显示全部楼层
回复 支持 反对

使用道具 举报

 楼主| 发表于 2024-11-7 16:49:16 | 显示全部楼层
原始结构图
微信图片_20241107163452.jpg

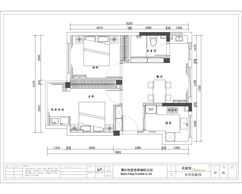
平面布置图
微信图片_20241107163442.jpg
回复 支持 反对

使用道具 举报

 楼主| 发表于 2024-11-7 17:05:19 | 显示全部楼层
本帖最后由 格堂余姐 于 2024-11-15 16:15 编辑

开工前,电梯口墙面和地面已经保护到位。
IMG20241114151714.jpg

IMG20241114151717.jpg

IMG20241114151722.jpg

IMG20241114151728.jpg

IMG20241114151731.jpg
电梯口对角图
IMG20241114151754.jpg

IMG20241114151756.jpg

IMG20241114151800.jpg

IMG20241114151805.jpg

IMG20241114151807.jpg
门槛已经保护到位。
IMG20241114151902.jpg

大门已经保护到位。

IMG20241114151833.jpg

临时小便池已经安放好了,每一个施工现场都会配备临时小便斗,并且时刻保持干净卫生,保证工地环境干净整洁。
IMG20241114152013.jpg
排水管道用格堂专用保护盖保护,防止后期施工中砂石 堵塞管道
IMG20241114152130.jpg

回复 支持 反对

使用道具 举报

 楼主| 发表于 2024-11-7 17:07:56 | 显示全部楼层
本帖最后由 格堂余姐 于 2024-11-8 09:08 编辑

开工仪式准备,开工横幅、鲜花、礼花准备到位,就等吉时!
微信图片_20241106100519.jpg

吉时到开工了,恭祝业主大人开工大吉!
微信图片_20241106100108.jpg

开工第一锤,由业主敲在要拆除的墙体的墙角上,象征一锤定音,也代表着新房动土。
微信图片_20241106100424.jpg

敲的痕迹
微信图片_20241106100432.jpg

回复 支持 反对

使用道具 举报

 楼主| 发表于 2024-11-7 17:31:17 | 显示全部楼层
本帖最后由 格堂余姐 于 2024-11-8 09:06 编辑

设计师、项目经理和师傅正在按图纸拆改放样,确保放样无误。
微信图片_20241107172445.jpg

微信图片_20241107172550.jpg

微信图片_20241107172558.jpg

微信图片_20241107172604.jpg

微信图片_20241107172614.jpg

微信图片_20241107172622.jpg

微信图片_20241107172630.jpg

微信图片_20241107172638.jpg


回复 支持 反对

使用道具 举报

 楼主| 发表于 2024-11-15 15:33:32 | 显示全部楼层
本帖最后由 格堂余姐 于 2024-11-20 14:13 编辑

厨房拆改中途

IMG20241114152149.jpg

IMG20241114152152.jpg

IMG20241114152157.jpg

IMG20241114152207.jpg

IMG20241114152214.jpg

回复 支持 反对

使用道具 举报

 楼主| 发表于 2024-11-15 15:36:22 | 显示全部楼层

厨房对角图

IMG20241114152221.jpg





IMG20241114152235.jpg

IMG20241114152240.jpg

IMG20241114152243.jpg

IMG20241114152246.jpg



回复 支持 反对

使用道具 举报

 楼主| 发表于 2024-11-15 15:40:11 | 显示全部楼层
餐厅拆改中途
IMG20241114152541.jpg

IMG20241114152636.jpg

IMG20241114152643.jpg

IMG20241114152649.jpg

IMG20241114152652.jpg
回复 支持 反对

使用道具 举报

 楼主| 发表于 2024-11-15 15:42:17 | 显示全部楼层
餐厅对角图

IMG20241114152711.jpg

IMG20241114152713.jpg

IMG20241114152721.jpg

IMG20241114152724.jpg

IMG20241114152728.jpg
回复 支持 反对

使用道具 举报

您需要登录后才可以回帖 登录 | 立即注册

本版积分规则

全国统一客服电话
0570-8028505

24x7小时免费咨询

  • 官方在线客服

    QQ客服:小西

    点击交谈

    QQ客服:良子

    点击交谈

    QQ客服:闵月

    点击交谈
  • 衢州市柯城区财富中心3号楼2楼

  • 衢州格堂装饰有限公司

  • 扫一扫关注官方微信

    获取一手特惠信息

快速回复 返回顶部 返回列表