• 手机版

    扫码体验手机版

  • 微信公众号

    扫码关注公众号

登录注册
游客您好
第三方账号登陆

[龙游] 恒泽小区4-4#80㎡中古———格调

[复制链接]
发表于 2024-11-2 16:52:25 | 显示全部楼层 |阅读模式
格调

格堂装饰为您全程记录装修全过程!

小区名称
恒泽小区
房屋面积
80㎡
户型结构
套房
装修风格
美式轻奢
装修方式
半包
装修造价
查看请联系客服万元
设计师
雷蕾
项目经理
方工
装修公司
格堂装饰
完工实景
完工实景
水电全景
水电全景
VR全景
VR全景
设计说明
独一无二归属感
更多信息
回复

使用道具 举报

 楼主| 发表于 2024-11-2 16:53:08 | 显示全部楼层
房间效果图

7602710574d3a7b3013c66511ccdcc72.JPG

f3fe4ebb312d67009b194dfc25cbc3e7.JPG
回复 支持 反对

使用道具 举报

 楼主| 发表于 2024-11-2 16:53:39 | 显示全部楼层
原始结构图

IMG_4405.JPG
回复 支持 反对

使用道具 举报

 楼主| 发表于 2024-11-2 16:54:01 | 显示全部楼层
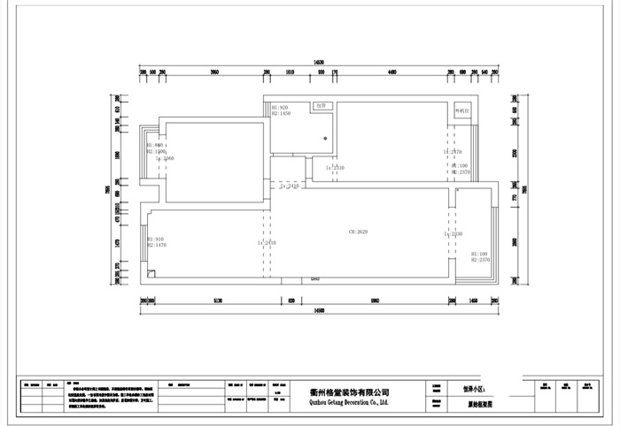
平面布置图

IMG_4406.JPG
回复 支持 反对

使用道具 举报

 楼主| 发表于 2024-11-2 16:55:52 | 显示全部楼层
客厅

IMG_4180.JPG

IMG_4181.JPG

IMG_4182.JPG

IMG_4183.JPG

IMG_4184.JPG
回复 支持 反对

使用道具 举报

 楼主| 发表于 2024-11-2 16:56:38 | 显示全部楼层
对角

IMG_4185.JPG

IMG_4186.JPG

IMG_4187.JPG

IMG_4188.JPG

IMG_4189.JPG
回复 支持 反对

使用道具 举报

 楼主| 发表于 2024-11-2 16:57:30 | 显示全部楼层
主卧

IMG_4190.JPG

IMG_4191.JPG

IMG_4192.JPG

IMG_4193.JPG

IMG_4194.JPG
回复 支持 反对

使用道具 举报

 楼主| 发表于 2024-11-2 16:58:03 | 显示全部楼层
对角

IMG_4195.JPG

IMG_4196.JPG

IMG_4200.JPG

IMG_4201.JPG

IMG_4202.JPG
回复 支持 反对

使用道具 举报

 楼主| 发表于 2024-11-2 16:59:01 | 显示全部楼层
次卧
IMG_4203.JPG

IMG_4204.JPG

IMG_4205.JPG

IMG_4206.JPG

IMG_4207.JPG
回复 支持 反对

使用道具 举报

 楼主| 发表于 2024-11-2 16:59:31 | 显示全部楼层
对角

IMG_4208.JPG

IMG_4209.JPG

IMG_4210.JPG

IMG_4211.JPG

IMG_4212.JPG
回复 支持 反对

使用道具 举报

您需要登录后才可以回帖 登录 | 立即注册

本版积分规则

全国统一客服电话
0570-8028505

24x7小时免费咨询

  • 官方在线客服

    QQ客服:小西

    点击交谈

    QQ客服:良子

    点击交谈

    QQ客服:闵月

    点击交谈
  • 衢州市柯城区财富中心3号楼2楼

  • 衢州格堂装饰有限公司

  • 扫一扫关注官方微信

    获取一手特惠信息

快速回复 返回顶部 返回列表