• 手机版

    扫码体验手机版

  • 微信公众号

    扫码关注公众号

登录注册
游客您好
第三方账号登陆

[龙游] 滨江花园430㎡新中式——向心而居

[复制链接]
发表于 2024-9-24 13:08:40 | 显示全部楼层 |阅读模式
向心而居

格堂装饰为您全程记录装修全过程!

小区名称
滨江花园
房屋面积
430㎡
户型结构
别墅
装修风格
新中式
装修方式
半包
装修造价
查看请联系客服万元
设计师
詹工
项目经理
杨工
装修公司
格堂装饰
完工实景
完工实景
水电全景
水电全景
VR全景
VR全景
设计说明
不活在过去也不惧未来,就在当下给家人营造想回家,倍感温暖的地方。爱可以让我们内心柔软,美的环境也可以滋润心灵。
时间让我们对生活有了更温柔的理解,更多的感悟。想要的空间是放松的,温暖的,婉约但考究,深厚与优雅,慢下来的生活方
更多信息
本帖最后由 格堂小静 于 2025-11-10 16:35 编辑

地下室休闲区
58.jpg

54.jpg
一楼客厅效果图
5.jpg

6.jpg

7.jpg
二楼餐厅
8.jpg

9.jpg

13.jpg

15.jpg
卫生间
14.1.jpg

18.jpg
卧室
16.jpg

28.jpg
三楼
29.jpg

33.jpg

37.jpg

38.jpg

41.jpg

44.jpg

46.jpg
阳台洗衣区
51.jpg

52.jpg

53.jpg


目      录






回复

使用道具 举报

 楼主| 发表于 2024-9-24 13:11:10 | 显示全部楼层
本帖最后由 格堂小静 于 2024-12-3 11:45 编辑

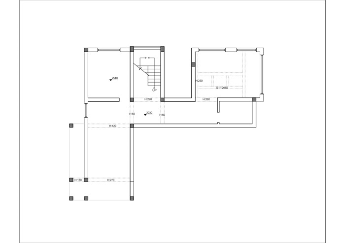
原始结构
4eae9b598acc8fd49526b0a5fbd28bdf.JPG

ce37c25613bcb142fc19d82a6a0cca70.JPG

f784bfb9b537745e19a4438b4c992ce3.JPG


回复 支持 反对

使用道具 举报

 楼主| 发表于 2024-9-24 13:11:34 | 显示全部楼层
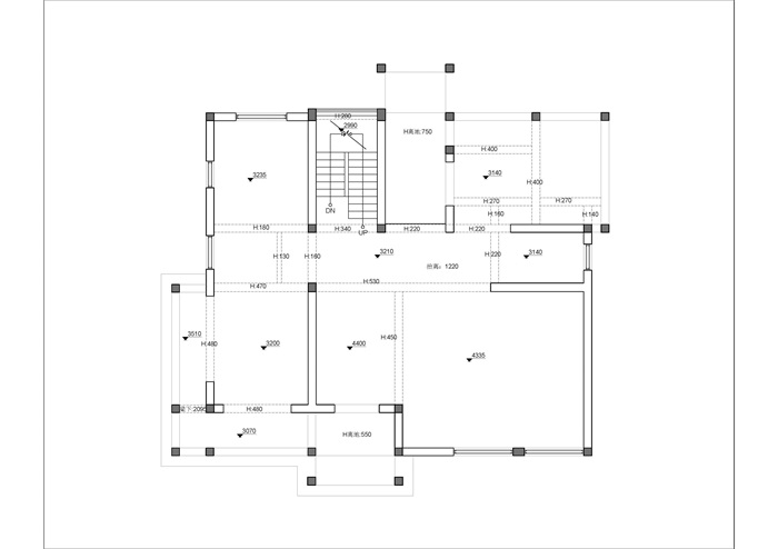
平面布置


回复 支持 反对

使用道具 举报

 楼主| 发表于 2024-9-24 13:12:42 | 显示全部楼层
一楼

IMG_6961.JPG

IMG_6963.JPG

IMG_6964.JPG

IMG_6965.JPG

IMG_6966.JPG
回复 支持 反对

使用道具 举报

 楼主| 发表于 2024-9-24 13:13:29 | 显示全部楼层
二楼

IMG_6967.JPG

IMG_6968.JPG

IMG_6969.JPG

IMG_6970.JPG

IMG_6971.JPG
回复 支持 反对

使用道具 举报

 楼主| 发表于 2024-9-24 13:14:12 | 显示全部楼层
IMG_6972.JPG


IMG_6973.JPG

IMG_6974.JPG

IMG_6975.JPG

IMG_6976.JPG
回复 支持 反对

使用道具 举报

 楼主| 发表于 2024-9-24 13:15:53 | 显示全部楼层

IMG_6977.JPG

IMG_6978.JPG

IMG_6979.JPG

IMG_6980.JPG

IMG_6981.JPG
回复 支持 反对

使用道具 举报

 楼主| 发表于 2024-9-24 13:16:55 | 显示全部楼层
阁楼

IMG_6982.JPG

IMG_6983.JPG

IMG_6984.JPG

IMG_6985.JPG

IMG_6986.JPG
回复 支持 反对

使用道具 举报

 楼主| 发表于 2024-9-24 13:20:25 | 显示全部楼层
开工布置

IMG_6987.JPG

IMG_6989.JPG
回复 支持 反对

使用道具 举报

 楼主| 发表于 2024-9-24 13:21:03 | 显示全部楼层
开工礼炮

IMG_7035.JPG
回复 支持 反对

使用道具 举报

您需要登录后才可以回帖 登录 | 立即注册

本版积分规则

全国统一客服电话
0570-8028505

24x7小时免费咨询

  • 官方在线客服

    QQ客服:小西

    点击交谈

    QQ客服:良子

    点击交谈

    QQ客服:闵月

    点击交谈
  • 衢州市柯城区财富中心3号楼2楼

  • 衢州格堂装饰有限公司

  • 扫一扫关注官方微信

    获取一手特惠信息

快速回复 返回顶部 返回列表