[开化] 贝林星月湾93-1-4#126㎡法式----奶油风 |
|
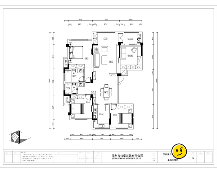
贝林星月湾93-1-4#126㎡法式----奶油风
格堂装饰为您全程记录装修全过程! 设计说明
步履匆匆,早出晚归,是城市里的上班族最普遍的状态。本案的业主就是这样一对小两口,甜甜蜜蜜又忙忙碌碌。房子是个新房,也是两个人的首套房,希望能够在能力范围内实现新生,也期待能在这嘈杂无序的世界里寻一方安宁。
融合色彩与空间的联系,轻硬装重软装,打造经济适用型家居。 更多信息
| |
|
|


在线客服
微信客服
关注有礼