• 手机版

    扫码体验手机版

  • 微信公众号

    扫码关注公众号

登录注册
游客您好
第三方账号登陆

[衢州] 鑫业晶典5-#261㎡自然风——自然 · 生活

[复制链接]
发表于 2024-9-14 16:45:16 | 显示全部楼层 |阅读模式
鑫业晶典5-#261㎡自然风——自然 · 生活

格堂装饰为您全程记录装修全过程!

小区名称
鑫业晶典
房屋面积
261㎡
户型结构
排屋
装修风格
自然风
装修方式
全包
装修造价
查看请联系客服万元
设计师
梁工
项目经理
郑工
装修公司
格堂装饰
完工实景
完工实景
水电全景
水电全景
VR全景
VR全景
设计说明
本案位于衢州市一个别墅区内,业主为一对年轻夫妻,对新房装修的期许很高,在装修上也下足了功夫,希望新房能够达到自然、舒适、宁静的生活需求。设计师通过对空间格局、功能的调整以及色彩的搭配,营造一个自然与日常生活交织在一起的环境。
更多信息
本帖最后由 格堂黄姐 于 2024-9-14 21:38 编辑

效果图

mmexport1726315354498.jpg

mmexport1726315357222.jpg

mmexport1726315359649.png

mmexport1726315362108.jpg

mmexport1726315364649.jpg
回复

使用道具 举报

 楼主| 发表于 2024-9-14 16:45:43 | 显示全部楼层
回复 支持 反对

使用道具 举报

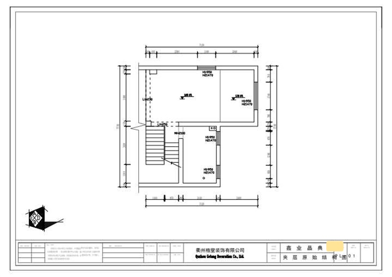
 楼主| 发表于 2024-9-14 16:46:52 | 显示全部楼层
本帖最后由 格堂黄姐 于 2024-9-14 21:42 编辑

原始结构图
mmexport1726315940006.jpg

mmexport1726315948120.jpg

mmexport1726315956522.jpg

mmexport1726315963003.jpg

回复 支持 反对

使用道具 举报

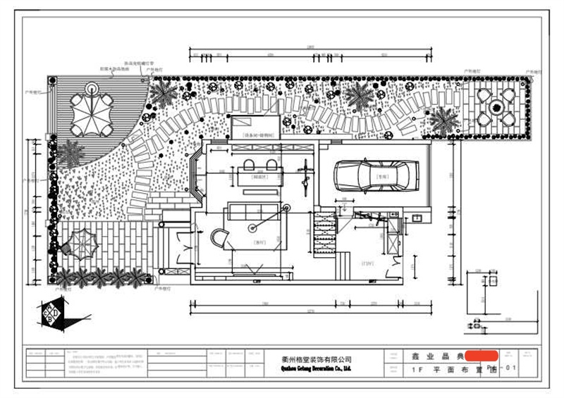
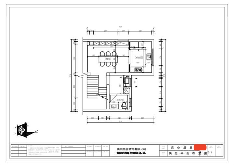
 楼主| 发表于 2024-9-14 16:47:43 | 显示全部楼层
本帖最后由 格堂黄姐 于 2024-9-14 21:41 编辑

平面布置图
mmexport1726315943860.jpg

mmexport1726315950662.jpg

mmexport1726315959246.jpg

mmexport1726315965420.jpg
回复 支持 反对

使用道具 举报

 楼主| 发表于 2024-9-14 21:39:55 | 显示全部楼层
本帖最后由 格堂黄姐 于 2024-9-15 15:38 编辑

开工仪式准备,开工横幅、鲜花、礼花准备到位,就等吉时!
mmexport1726315111529.jpg

吉时到开工了,恭祝业主大人开工大吉!
mmexport1726315116561.jpg

开工第一锤,由业主敲在要拆除的墙体的墙角上,象征一锤定音,也代表着新房动土。
mmexport1726315124800.jpg

敲的痕迹
mmexport1726315121977.jpg
回复 支持 反对

使用道具 举报

 楼主| 发表于 2024-9-14 21:44:52 | 显示全部楼层
本帖最后由 格堂黄姐 于 2024-9-15 20:32 编辑

大门已经保护到位。
IMG_20240915_075906.jpg

煤气表已经保护到位。
IMG_20240915_083658.jpg

临时小便池已经安放好了:每一个施工现场都会配备临时小便斗,并且时刻保持干净卫生,保证工地环境干净整洁。
IMG_20240915_083557.jpg

排水管道用格堂专用保护盖保护,防止后期施工中砂石 堵塞管道
IMG_20240915_083524.jpg

门口
IMG_20240915_084735.jpg

IMG_20240915_084749.jpg

IMG_20240915_084752.jpg
回复 支持 反对

使用道具 举报

 楼主| 发表于 2024-9-14 21:46:51 | 显示全部楼层
本帖最后由 格堂黄姐 于 2024-9-15 15:54 编辑

拆改阶段
房间铲灰,是为了防止墙顶面出现空鼓,在做好油漆后不会有墙顶面整块油漆脱落的现象。
拆除可以让空间利用更合理。为了整体结构的稳定性和安全性,承重墙是一定不能动的。
mmexport1726315127418.jpg

mmexport1726315129934.jpg

mmexport1726315132557.jpg

mmexport1726315135367.jpg

mmexport1726315138006.jpg

mmexport1726315140667.jpg
回复 支持 反对

使用道具 举报

 楼主| 发表于 2024-9-14 21:48:31 | 显示全部楼层
mmexport1726316195282.jpg


mmexport1726316197525.jpg

mmexport1726316199872.jpg

mmexport1726316202282.jpg

mmexport1726316204747.jpg
回复 支持 反对

使用道具 举报

 楼主| 发表于 2024-9-14 21:49:06 | 显示全部楼层
mmexport1726316181401.jpg


mmexport1726316183908.jpg

mmexport1726316186136.jpg

mmexport1726316188366.jpg

mmexport1726316190625.jpg

mmexport1726316192970.jpg
回复 支持 反对

使用道具 举报

 楼主| 发表于 2024-9-14 21:49:57 | 显示全部楼层
mmexport1726316151783.jpg


mmexport1726316155036.jpg

mmexport1726316157529.jpg

mmexport1726316160036.jpg

mmexport1726316162364.jpg
回复 支持 反对

使用道具 举报

您需要登录后才可以回帖 登录 | 立即注册

本版积分规则

全国统一客服电话
0570-8028505

24x7小时免费咨询

  • 官方在线客服

    QQ客服:小西

    点击交谈

    QQ客服:良子

    点击交谈

    QQ客服:闵月

    点击交谈
  • 衢州市柯城区财富中心3号楼2楼

  • 衢州格堂装饰有限公司

  • 扫一扫关注官方微信

    获取一手特惠信息

快速回复 返回顶部 返回列表