• 手机版

    扫码体验手机版

  • 微信公众号

    扫码关注公众号

登录注册
游客您好
第三方账号登陆

[衢州] 斗潭西区11-1-5#82㎡现代简约——三口之家

[复制链接]
发表于 2024-9-13 17:49:12 | 显示全部楼层 |阅读模式
斗潭西区11-1-5#82㎡现代简约——三口之家

格堂装饰为您全程记录装修全过程!

小区名称
斗潭西区
房屋面积
82㎡
户型结构
套房
装修风格
现代
装修方式
半包
装修造价
查看请联系客服万元
设计师
邓工
项目经理
周工
装修公司
格堂装饰
完工实景
完工实景
水电全景
水电全景
VR全景
VR全景
设计说明
本案整体设计以原木色和白色为主,打造自然质朴的空间氛围,摒弃繁杂的装饰,让空间显的更干净素雅。营造出一家三口的理想家,在这里开启他们的一日三餐四季。
更多信息
本帖最后由 格堂王姐 于 2024-9-18 11:26 编辑

效果图:

微信图片_20240913174631.jpg


微信图片_20240913174634.jpg


微信图片_20240913174637.jpg


微信图片_20240913174640.jpg
回复

使用道具 举报

 楼主| 发表于 2024-9-13 17:49:34 | 显示全部楼层
本帖最后由 格堂王姐 于 2025-1-16 17:10 编辑

目      录


回复 支持 反对

使用道具 举报

 楼主| 发表于 2024-9-13 17:51:02 | 显示全部楼层
原始结构图
微信图片_20240913174618.png

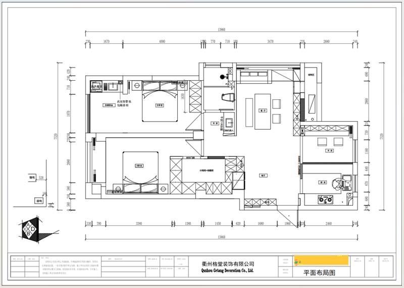
平面布置图
微信图片_20240913174621.png

回复 支持 反对

使用道具 举报

 楼主| 发表于 2024-9-13 17:52:03 | 显示全部楼层
大门已经保护到位。
微信图片_20240913174451.jpg

煤气表已经保护到位。
微信图片_20240913174454.jpg

临时小便池已经安放好了:每一个施工现场都会配备临时小便斗,并且时刻保持干净卫生,保证工地环境干净整洁。
微信图片_20240913174500.jpg

排水管道用格堂专用保护盖保护,防止后期施工中砂石 堵塞管道
微信图片_20240913174457.jpg

回复 支持 反对

使用道具 举报

 楼主| 发表于 2024-9-13 17:53:42 | 显示全部楼层
开工仪式准备,开工横幅、鲜花、礼花准备到位,就等吉时!
开工桌摆好准备
微信图片_20240913174430.jpg


微信图片_20240913174445.jpg
吉时到开工了,恭祝业主大人开工大吉!
仪式很短暂,家居装修却很长……与漫漫人生历程相比,这些短短一瞬,却包含了满满的心意。
我们竭力用自己的专业技能,让每位业主拥有最接近梦想的家!恭祝开工大吉!
开工合影
微信图片_20240913174509.jpg

开工第一锤,由业主敲在要拆除的墙体的墙角(即拐角),象征一锤定音的意思,也是新房动土的一种表示方式
业主敲下第一锤
微信图片_20240913174540.jpg

回复 支持 反对

使用道具 举报

 楼主| 发表于 2024-9-13 17:54:00 | 显示全部楼层
本帖最后由 格堂王姐 于 2024-9-20 15:22 编辑

电梯口墙面和地面都贴好了格堂专用的保护垫。
IMG_20240920_110039.jpg


IMG_20240920_110045.jpg


IMG_20240920_110051.jpg


IMG_20240920_110053.jpg


IMG_20240920_110056.jpg

回复 支持 反对

使用道具 举报

 楼主| 发表于 2024-9-18 11:38:42 | 显示全部楼层
本帖最后由 格堂王姐 于 2024-9-20 15:22 编辑

电梯口墙面和地面都贴好了格堂专用的保护垫。
IMG_20240920_110101.jpg


IMG_20240920_110105.jpg


IMG_20240920_110108.jpg


IMG_20240920_110110.jpg


IMG_20240920_110113.jpg


IMG_20240920_110119.jpg

回复 支持 反对

使用道具 举报

 楼主| 发表于 2024-9-18 11:39:09 | 显示全部楼层
拆改阶段:
房间铲灰,是为了防止墙顶面出现空鼓,在做好油漆后不会有墙顶面整块油漆脱落的现象。
拆除可以让空间利用更合理。为了整体结构的稳定性和安全性,承重墙是一定不能动的。
微信图片_20240918112847.jpg


微信图片_20240918112857.jpg


微信图片_20240918112904.jpg


微信图片_20240918112907.jpg


微信图片_20240918112910.jpg

回复 支持 反对

使用道具 举报

 楼主| 发表于 2024-9-18 11:39:35 | 显示全部楼层
微信图片_20240918113048.jpg



微信图片_20240918113055.jpg


微信图片_20240918113058.jpg


微信图片_20240918113100.jpg
回复 支持 反对

使用道具 举报

 楼主| 发表于 2024-9-22 16:57:19 | 显示全部楼层
本帖最后由 格堂王姐 于 2024-9-22 17:10 编辑

砌墙中途:
新老墙交界处已放置膨胀螺栓,起到连接砌体防止开裂的作用。
新墙与老墙、梁、柱位置已加钉钢丝网,有效防止后期开裂。
微信图片_20240922165552.jpg
回复 支持 反对

使用道具 举报

您需要登录后才可以回帖 登录 | 立即注册

本版积分规则

全国统一客服电话
0570-8028505

24x7小时免费咨询

  • 官方在线客服

    QQ客服:小西

    点击交谈

    QQ客服:良子

    点击交谈

    QQ客服:闵月

    点击交谈
  • 衢州市柯城区财富中心3号楼2楼

  • 衢州格堂装饰有限公司

  • 扫一扫关注官方微信

    获取一手特惠信息

快速回复 返回顶部 返回列表