[衢州] 春江月15-2-2#116㎡现代原木——南城梦乡,风起涟漪 |
|
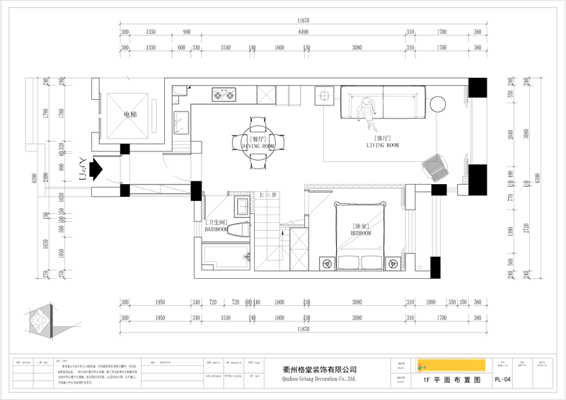
春江月15-2-2#116㎡现代原木——南城梦乡,风起涟漪
格堂装饰为您全程记录装修全过程! 设计说明
当我们称赞一个家美时,我们其实是在说喜欢这个家所呈现出来的生活方式。开放式的厨房扩展了公共空间的范围,视线在其间穿梭没有阻隔,木质慵懒而温和是空间的基调,慢生活,不内卷,不内耗,在现今社会中是一种难得的心境和生活态度。生活简约而不简单。
更多信息
| |
| |
| |
| |
| |


在线客服
微信客服
关注有礼