• 手机版

    扫码体验手机版

  • 微信公众号

    扫码关注公众号

登录注册
游客您好
第三方账号登陆

[龙游] 印江南7-1#105㎡现代简约——邂逅

[复制链接]
发表于 2024-9-10 11:33:55 | 显示全部楼层 |阅读模式
邂逅

格堂装饰为您全程记录装修全过程!

小区名称
印江南
房屋面积
105㎡
户型结构
套房
装修风格
现代
装修方式
半包
装修造价
查看请联系客服万元
设计师
陈工
项目经理
方工
装修公司
格堂装饰
完工实景
完工实景
水电全景
水电全景
VR全景
VR全景
设计说明
生活的极致一定是简与净,极简不只是一种装修风格,更是一种生活艺术!
更多信息
回复

使用道具 举报

 楼主| 发表于 2024-9-10 11:34:17 | 显示全部楼层
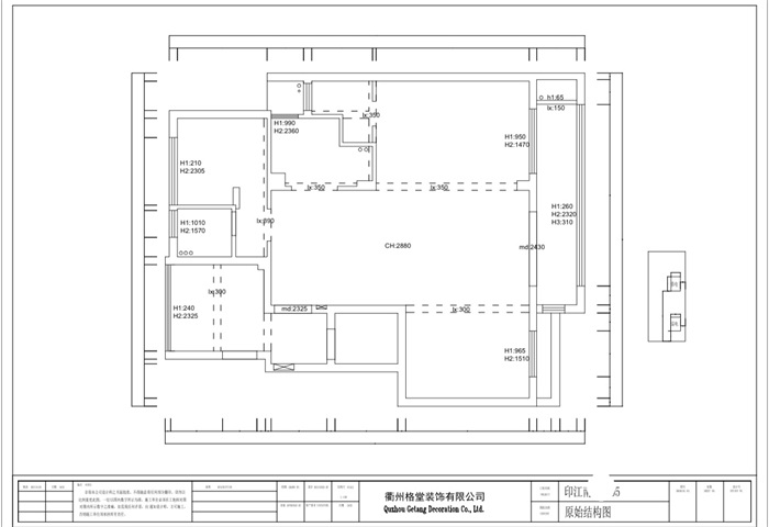
原始结构图

IMG_6485.JPG
回复 支持 反对

使用道具 举报

 楼主| 发表于 2024-9-10 11:34:54 | 显示全部楼层
平面布置

IMG_6484(1).JPG
回复 支持 反对

使用道具 举报

 楼主| 发表于 2024-9-10 11:37:46 | 显示全部楼层
进户门保护防止磕损
IMG_6033.JPG

IMG_6034.JPG

IMG_6035.JPG

IMG_6036.JPG

IMG_6037.JPG
回复 支持 反对

使用道具 举报

 楼主| 发表于 2024-9-10 11:42:51 | 显示全部楼层
对角

IMG_6038.JPG

IMG_6039.JPG

IMG_6040.JPG

IMG_6041.JPG

IMG_6042.JPG
回复 支持 反对

使用道具 举报

 楼主| 发表于 2024-9-10 11:43:21 | 显示全部楼层
开工布置

IMG_6043.JPG

IMG_6044.JPG

IMG_6045.JPG

IMG_6046.JPG

IMG_6047.JPG
回复 支持 反对

使用道具 举报

 楼主| 发表于 2024-9-10 11:43:41 | 显示全部楼层
IMG_6048.JPG


IMG_6049.JPG

IMG_6050.JPG

IMG_6051.JPG

IMG_6052.JPG
回复 支持 反对

使用道具 举报

 楼主| 发表于 2024-9-10 11:44:04 | 显示全部楼层
IMG_6053.JPG


IMG_6054.JPG

IMG_6055.JPG

IMG_6056.JPG

IMG_6057.JPG
回复 支持 反对

使用道具 举报

 楼主| 发表于 2024-9-10 11:44:57 | 显示全部楼层


煤气管道保护防止磕损
IMG_6059.JPG

IMG_6058.JPG
回复 支持 反对

使用道具 举报

 楼主| 发表于 2024-9-10 11:45:50 | 显示全部楼层
IMG_6061.JPG


IMG_6062.JPG

IMG_6063.JPG
回复 支持 反对

使用道具 举报

您需要登录后才可以回帖 登录 | 立即注册

本版积分规则

全国统一客服电话
0570-8028505

24x7小时免费咨询

  • 官方在线客服

    QQ客服:小西

    点击交谈

    QQ客服:良子

    点击交谈

    QQ客服:闵月

    点击交谈
  • 衢州市柯城区财富中心3号楼2楼

  • 衢州格堂装饰有限公司

  • 扫一扫关注官方微信

    获取一手特惠信息

快速回复 返回顶部 返回列表