• 手机版

    扫码体验手机版

  • 微信公众号

    扫码关注公众号

登录注册
游客您好
第三方账号登陆

[龙游] 高家自建房复式180 ㎡现代——如初

[复制链接]
发表于 2024-9-1 17:49:44 | 显示全部楼层 |阅读模式
如初

格堂装饰为您全程记录装修全过程!

小区名称
高家自建房
房屋面积
180㎡
户型结构
复式
装修风格
现代
装修方式
半包
装修造价
查看请联系客服万元
设计师
陈工
项目经理
方工
装修公司
格堂装饰
完工实景
完工实景
水电全景
水电全景
VR全景
VR全景
设计说明
淡淡的素色与现代交融,构筑宁静简约的空间,设计保留了一份克制,达到功能与美学的平衡。
更多信息
本帖最后由 格堂小静 于 2024-12-30 18:41 编辑

客厅效果图
49a18b63adc53d011a364f42be3e38a3.PNG

78b024b9a7af9b2de75d991a886527f4.PNG

d77dbab4cceb5cd9005dbbb95bdf2f24.PNG
房间效果图
086042220d8ea516b2f4195b583a77f4.PNG


目      录


回复

使用道具 举报

 楼主| 发表于 2024-9-1 17:50:14 | 显示全部楼层
原始结构图

IMG_4713.JPG
回复 支持 反对

使用道具 举报

 楼主| 发表于 2024-9-1 17:50:40 | 显示全部楼层
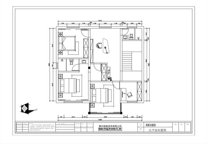
平面布置

IMG_4714.JPG

IMG_4715.JPG
回复 支持 反对

使用道具 举报

 楼主| 发表于 2024-9-1 17:51:34 | 显示全部楼层
一楼
IMG_2569.JPG

IMG_2570.JPG

IMG_2571(1).JPG

IMG_2572(1).JPG

IMG_2573(1).JPG
回复 支持 反对

使用道具 举报

 楼主| 发表于 2024-9-1 17:52:02 | 显示全部楼层
IMG_2574(1).JPG


IMG_2575(1).JPG

IMG_2576(1).JPG

IMG_2577(1).JPG

IMG_2578(1).JPG
回复 支持 反对

使用道具 举报

 楼主| 发表于 2024-9-1 17:52:47 | 显示全部楼层
一楼房间

IMG_2579(1).JPG

IMG_2580(1).JPG

IMG_2581(1).JPG

IMG_2582(1).JPG

IMG_2583(1).JPG
回复 支持 反对

使用道具 举报

 楼主| 发表于 2024-9-1 17:53:13 | 显示全部楼层
对角
IMG_2584(1).JPG

IMG_2585(1).JPG

IMG_2586(1).JPG

IMG_2587(1).JPG

IMG_2588(1).JPG
回复 支持 反对

使用道具 举报

 楼主| 发表于 2024-9-1 17:53:39 | 显示全部楼层
IMG_2589(1).JPG


IMG_2590(1).JPG

IMG_2591(1).JPG

IMG_2592(1).JPG

IMG_2593(1).JPG
回复 支持 反对

使用道具 举报

 楼主| 发表于 2024-9-1 17:54:22 | 显示全部楼层
楼梯过道

IMG_2614(1).JPG

IMG_2615(1).JPG

IMG_2616.JPG

IMG_2617.JPG
回复 支持 反对

使用道具 举报

 楼主| 发表于 2024-9-1 17:54:53 | 显示全部楼层
二楼

IMG_2594(1).JPG

IMG_2595(1).JPG

IMG_2596(1).JPG

IMG_2597(1).JPG

IMG_2598(1).JPG
回复 支持 反对

使用道具 举报

您需要登录后才可以回帖 登录 | 立即注册

本版积分规则

全国统一客服电话
0570-8028505

24x7小时免费咨询

  • 官方在线客服

    QQ客服:小西

    点击交谈

    QQ客服:良子

    点击交谈

    QQ客服:闵月

    点击交谈
  • 衢州市柯城区财富中心3号楼2楼

  • 衢州格堂装饰有限公司

  • 扫一扫关注官方微信

    获取一手特惠信息

快速回复 返回顶部 返回列表