• 手机版

    扫码体验手机版

  • 微信公众号

    扫码关注公众号

登录注册
游客您好
第三方账号登陆

[衢州] 望潮府13-1-3#102㎡现代——空间的自由

[复制链接]
发表于 2024-8-29 16:43:19 | 显示全部楼层 |阅读模式
望潮府13-1-3#102㎡现代——空间的自由

格堂装饰为您全程记录装修全过程!

小区名称
望潮府
房屋面积
102㎡
户型结构
套房
装修风格
现代
装修方式
半包
装修造价
查看请联系客服万元
设计师
范工
项目经理
郑工
装修公司
格堂装饰
完工实景
完工实景
水电全景
水电全景
VR全景
VR全景
设计说明
摆脱一切不重要的事情,越纯粹越艺术,当生活与空间摆脱没有意义的多数,才能有空间面对最本真的少数。
更多信息
本帖最后由 格堂王姐 于 2024-9-26 10:42 编辑

效果图:
微信图片_20240926104009.jpg

微信图片_20240926104027.jpg

微信图片_20240909171409.jpg


微信图片_20240909171403.jpg


微信图片_20240909171339.jpg

回复

使用道具 举报

 楼主| 发表于 2024-9-3 17:47:02 | 显示全部楼层
本帖最后由 格堂王姐 于 2024-9-26 11:09 编辑

目      录


回复 支持 反对

使用道具 举报

 楼主| 发表于 2024-9-3 17:48:33 | 显示全部楼层
本帖最后由 格堂王姐 于 2024-9-9 17:21 编辑

原始结构图
截图20240909171844.png

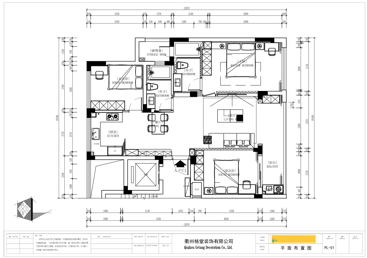
平面布置图
截图20240909171911.png

回复 支持 反对

使用道具 举报

 楼主| 发表于 2024-9-3 17:49:39 | 显示全部楼层
本帖最后由 格堂王姐 于 2024-9-3 17:55 编辑

大门已经保护到位。
IMG_20240903_133253.jpg

煤气表已经保护到位。
IMG_20240903_133556.jpg

临时小便池已经安放好了:每一个施工现场都会配备临时小便斗,并且时刻保持干净卫生,保证工地环境干净整洁。
微信图片_20240829163212.jpg

排水管道用格堂专用保护盖保护,防止后期施工中砂石 堵塞管道
微信图片_20240829163209.jpg

回复 支持 反对

使用道具 举报

 楼主| 发表于 2024-9-3 17:53:34 | 显示全部楼层
本帖最后由 格堂王姐 于 2024-9-3 17:54 编辑

开工仪式准备,开工横幅、鲜花、礼花准备到位,就等吉时!
开工桌摆好准备
微信图片_20240829163142.jpg

吉时到开工了,恭祝业主大人开工大吉!
仪式很短暂,家居装修却很长……与漫漫人生历程相比,这些短短一瞬,却包含了满满的心意。
我们竭力用自己的专业技能,让每位业主拥有最接近梦想的家!恭祝开工大吉!
开工合影
微信图片_20240829163155.jpg

开工第一锤,由业主敲在要拆除的墙体的墙角(即拐角),象征一锤定音的意思,也是新房动土的一种表示方式
业主敲下第一锤
微信图片_20240829163202.jpg

敲完的痕迹
微信图片_20240829163246.jpg

回复 支持 反对

使用道具 举报

 楼主| 发表于 2024-9-3 17:56:22 | 显示全部楼层
电梯口墙面和地面都贴好了格堂专用的保护垫。
IMG_20240903_133301.jpg


IMG_20240903_133310.jpg


IMG_20240903_133322.jpg


IMG_20240903_133325.jpg


IMG_20240903_133328.jpg

回复 支持 反对

使用道具 举报

 楼主| 发表于 2024-9-3 17:56:41 | 显示全部楼层
IMG_20240903_133351.jpg



IMG_20240903_133354.jpg


IMG_20240903_133359.jpg


IMG_20240903_133401.jpg


IMG_20240903_133405.jpg
回复 支持 反对

使用道具 举报

 楼主| 发表于 2024-9-3 17:58:22 | 显示全部楼层
拆改放样
微信图片_20240829163206.jpg


微信图片_20240829163215.jpg


微信图片_20240829163218.jpg


微信图片_20240829163246.jpg


微信图片_20240829163253.jpg

回复 支持 反对

使用道具 举报

 楼主| 发表于 2024-9-3 17:58:54 | 显示全部楼层
拆改阶段:
房间铲灰,是为了防止墙顶面出现空鼓,在做好油漆后不会有墙顶面整块油漆脱落的现象。
拆除可以让空间利用更合理。为了整体结构的稳定性和安全性,承重墙是一定不能动的。
微信图片_20240829163256.jpg


微信图片_20240829163300.jpg


微信图片_20240829163303.jpg


微信图片_20240829163305.jpg


微信图片_20240829163308.jpg

回复 支持 反对

使用道具 举报

 楼主| 发表于 2024-9-3 17:59:20 | 显示全部楼层
微信图片_20240830111403.jpg



微信图片_20240830111428.jpg


微信图片_20240830111431.jpg
回复 支持 反对

使用道具 举报

您需要登录后才可以回帖 登录 | 立即注册

本版积分规则

全国统一客服电话
0570-8028505

24x7小时免费咨询

  • 官方在线客服

    QQ客服:小西

    点击交谈

    QQ客服:良子

    点击交谈

    QQ客服:闵月

    点击交谈
  • 衢州市柯城区财富中心3号楼2楼

  • 衢州格堂装饰有限公司

  • 扫一扫关注官方微信

    获取一手特惠信息

快速回复 返回顶部 返回列表