• 手机版

    扫码体验手机版

  • 微信公众号

    扫码关注公众号

登录注册
游客您好
第三方账号登陆

[衢州] 国风澜园3-1-12#102㎡现代——简洁,实用

[复制链接]
发表于 2024-8-16 22:48:17 | 显示全部楼层 |阅读模式
国风澜园3-1-12#102㎡现代——简洁,实用

格堂装饰为您全程记录装修全过程!

小区名称
国风澜园
房屋面积
103㎡
户型结构
套房
装修风格
现代
装修方式
半包
装修造价
查看请联系客服万元
设计师
王工
项目经理
周工
装修公司
格堂装饰
完工实景
完工实景
水电全景
水电全景
VR全景
VR全景
设计说明
追求空间之间的关系,没有过多复杂的装饰,强调简洁的造型,温暖的色彩来营造美观大方的空间效果
更多信息
本帖最后由 格堂王姐 于 2024-9-2 16:30 编辑

效果图

微信图片_20240902162652.jpg


微信图片_20240902162655.jpg


微信图片_20240902162658.jpg


微信图片_20240902162701.jpg


微信图片_20240902162707.jpg


微信图片_20240902162710.jpg
回复

使用道具 举报

 楼主| 发表于 2024-8-16 22:48:56 | 显示全部楼层
本帖最后由 格堂王姐 于 2024-9-18 10:28 编辑

目      录


回复 支持 反对

使用道具 举报

 楼主| 发表于 2024-8-19 17:44:19 | 显示全部楼层
本帖最后由 格堂王姐 于 2024-9-2 16:32 编辑

原始结构图
微信图片_20240902162636.png

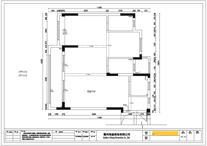
平面布置图
微信图片_20240902162648.png

回复 支持 反对

使用道具 举报

 楼主| 发表于 2024-8-19 17:44:30 | 显示全部楼层
本帖最后由 格堂王姐 于 2024-8-19 17:46 编辑

大门已经保护到位。
IMG_20240810_174811.jpg

煤气表已经保护到位。
IMG_20240810_174712.jpg

临时小便池已经安放好了:每一个施工现场都会配备临时小便斗,并且时刻保持干净卫生,保证工地环境干净整洁。
IMG_20240810_174724.jpg

排水管道用格堂专用保护盖保护,防止后期施工中砂石 堵塞管道
IMG_20240810_174741.jpg

回复 支持 反对

使用道具 举报

 楼主| 发表于 2024-8-19 17:44:45 | 显示全部楼层
本帖最后由 格堂王姐 于 2024-8-19 17:47 编辑

开工仪式准备,开工横幅、鲜花、礼花准备到位,就等吉时!
开工桌摆好准备
微信图片_20240811182641.jpg

吉时到开工了,恭祝业主大人开工大吉!
仪式很短暂,家居装修却很长……与漫漫人生历程相比,这些短短一瞬,却包含了满满的心意。
我们竭力用自己的专业技能,让每位业主拥有最接近梦想的家!恭祝开工大吉!
开工合影
微信图片_20240811182622.jpg


开工第一锤,由业主敲在要拆除的墙体的墙角(即拐角)上,象征一锤定音的意思,也是新房动土的一种表示方式
业主敲下第一锤,敲完的痕迹
微信图片_20240811182636.jpg
回复 支持 反对

使用道具 举报

 楼主| 发表于 2024-8-19 17:44:59 | 显示全部楼层
本帖最后由 格堂王姐 于 2024-8-19 17:47 编辑

电梯口墙面和地面都贴好了格堂专用的保护垫。
IMG_20240810_174828.jpg


IMG_20240810_174836.jpg


IMG_20240810_174838.jpg


IMG_20240810_174841.jpg


IMG_20240810_174844.jpg

回复 支持 反对

使用道具 举报

 楼主| 发表于 2024-8-19 17:48:14 | 显示全部楼层
IMG_20240810_174852.jpg



IMG_20240810_174855.jpg


IMG_20240810_174903.jpg


IMG_20240810_174910.jpg


IMG_20240810_174912.jpg
回复 支持 反对

使用道具 举报

 楼主| 发表于 2024-8-19 17:48:38 | 显示全部楼层
IMG_20240810_174917.jpg



IMG_20240810_174918.jpg


IMG_20240810_174922.jpg


IMG_20240810_174928.jpg


IMG_20240810_174932.jpg


IMG_20240810_174936.jpg


IMG_20240810_174941.jpg
回复 支持 反对

使用道具 举报

 楼主| 发表于 2024-8-19 17:52:42 | 显示全部楼层
拆改阶段:
房间铲灰,是为了防止墙顶面出现空鼓,在做好油漆后不会有墙顶面整块油漆脱落的现象。
拆除可以让空间利用更合理。为了整体结构的稳定性和安全性,承重墙是一定不能动的。
微信图片_20240819175050.jpg


微信图片_20240819175101.jpg


微信图片_20240819175103.jpg


微信图片_20240819175106.jpg


微信图片_20240819175108.jpg

回复 支持 反对

使用道具 举报

 楼主| 发表于 2024-8-19 17:53:08 | 显示全部楼层
微信图片_20240819175111.jpg



微信图片_20240819175113.jpg


微信图片_20240819175115.jpg


微信图片_20240819175118.jpg


微信图片_20240819175120.jpg
回复 支持 反对

使用道具 举报

您需要登录后才可以回帖 登录 | 立即注册

本版积分规则

全国统一客服电话
0570-8028505

24x7小时免费咨询

  • 官方在线客服

    QQ客服:小西

    点击交谈

    QQ客服:良子

    点击交谈

    QQ客服:闵月

    点击交谈
  • 衢州市柯城区财富中心3号楼2楼

  • 衢州格堂装饰有限公司

  • 扫一扫关注官方微信

    获取一手特惠信息

快速回复 返回顶部 返回列表