• 手机版

    扫码体验手机版

  • 微信公众号

    扫码关注公众号

登录注册
游客您好
第三方账号登陆

[衢州] 古雅悦宸轩1-#325㎡新中式——稳重成熟

[复制链接]
发表于 2024-8-4 17:22:17 | 显示全部楼层 |阅读模式
古雅悦宸轩1-#325㎡新中式——稳重成熟

格堂装饰为您全程记录装修全过程!

小区名称
古雅悦宸轩
房屋面积
325㎡
户型结构
别墅
装修风格
新中式
装修方式
半包
装修造价
查看请联系客服万元
设计师
王工
项目经理
周工
装修公司
格堂装饰
完工实景
完工实景
水电全景
水电全景
VR全景
VR全景
设计说明
色彩稳重成熟,格调典雅质朴,韵味浓烈悠长,却又不失高雅大方
更多信息
本帖最后由 格堂王姐 于 2024-9-5 10:51 编辑

效果图:

截图20240905105024.png


截图20240905104500.png


截图20240905104709.png


截图20240905104730.png

回复

使用道具 举报

 楼主| 发表于 2024-8-4 17:23:08 | 显示全部楼层
本帖最后由 格堂王姐 于 2024-9-20 16:17 编辑

目      录

回复 支持 反对

使用道具 举报

 楼主| 发表于 2024-8-4 17:24:28 | 显示全部楼层
本帖最后由 格堂王姐 于 2024-9-5 11:03 编辑

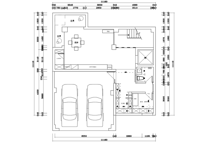
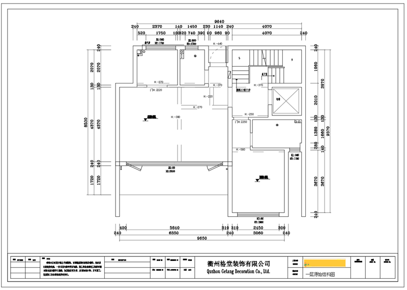
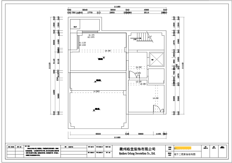
二楼原始结构图
微信图片_20240905105633.png

一楼原始结构图
微信图片_20240905105645.png

负一楼原始结构图
微信图片_20240905105648.png

二楼原始结构图
微信图片_20240905105651.png
回复 支持 反对

使用道具 举报

 楼主| 发表于 2024-8-4 17:24:32 | 显示全部楼层
本帖最后由 格堂王姐 于 2024-9-5 11:05 编辑

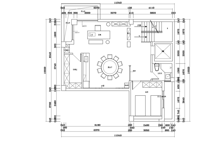
二楼平面布置图
微信图片_20240905105702.png



一楼平面布置图
微信图片_20240905105659.png


负一楼平面布置图
微信图片_20240905105656.png

负二楼平面布置图
微信图片_20240905105654.png

回复 支持 反对

使用道具 举报

 楼主| 发表于 2024-8-4 17:24:45 | 显示全部楼层
本帖最后由 格堂王姐 于 2024-9-5 11:06 编辑

大门已经保护到位。
IMG_20240804_100019.jpg

煤气表已经保护到位。
IMG_20240804_095944.jpg

临时小便池已经安放好了:每一个施工现场都会配备临时小便斗,并且时刻保持干净卫生,保证工地环境干净整洁。
IMG_20240804_100118.jpg
回复 支持 反对

使用道具 举报

 楼主| 发表于 2024-8-4 17:25:03 | 显示全部楼层
本帖最后由 格堂王姐 于 2024-8-4 17:34 编辑

开工仪式准备,开工横幅、鲜花、礼花准备到位,就等吉时!
开工桌摆好准备
微信图片_20240730104742.jpg


吉时到开工了,恭祝业主大人开工大吉!
仪式很短暂,家居装修却很长……与漫漫人生历程相比,这些短短一瞬,却包含了满满的心意。
我们竭力用自己的专业技能,让每位业主拥有最接近梦想的家!恭祝开工大吉!
开工合影
微信图片_20240730104759.jpg


开工第一锤,由业主敲在要拆除的墙体的墙角(即拐角)上,象征一锤定音的意思,也是新房动土的一种表示方式
业主敲下第一锤
微信图片_20240730104808.jpg
回复 支持 反对

使用道具 举报

 楼主| 发表于 2024-8-4 17:26:20 | 显示全部楼层
本帖最后由 格堂王姐 于 2024-9-5 11:51 编辑

拆改阶段:
房间铲灰,是为了防止墙顶面出现空鼓,在做好油漆后不会有墙顶面整块油漆脱落的现象。
拆除可以让空间利用更合理。为了整体结构的稳定性和安全性,承重墙是一定不能动的。
二楼拆改
IMG_20240804_095241.jpg


IMG_20240804_095248.jpg


IMG_20240804_095252.jpg


IMG_20240804_095255.jpg


IMG_20240804_095301.jpg


IMG_20240804_095302.jpg


IMG_20240804_095306.jpg

回复 支持 反对

使用道具 举报

 楼主| 发表于 2024-8-4 17:26:37 | 显示全部楼层
IMG_20240804_095316.jpg



IMG_20240804_095322.jpg


IMG_20240804_095328.jpg


IMG_20240804_095340.jpg
回复 支持 反对

使用道具 举报

 楼主| 发表于 2024-8-4 17:26:58 | 显示全部楼层
IMG_20240804_095347.jpg



IMG_20240804_095353.jpg


IMG_20240804_095355.jpg


IMG_20240804_095401.jpg


IMG_20240804_095403.jpg


IMG_20240804_095405.jpg
回复 支持 反对

使用道具 举报

 楼主| 发表于 2024-8-4 17:27:21 | 显示全部楼层
IMG_20240804_095412.jpg



IMG_20240804_095415.jpg


IMG_20240804_095420.jpg


IMG_20240804_095425.jpg


IMG_20240804_095428.jpg


IMG_20240804_095432.jpg
回复 支持 反对

使用道具 举报

您需要登录后才可以回帖 登录 | 立即注册

本版积分规则

全国统一客服电话
0570-8028505

24x7小时免费咨询

  • 官方在线客服

    QQ客服:小西

    点击交谈

    QQ客服:良子

    点击交谈

    QQ客服:闵月

    点击交谈
  • 衢州市柯城区财富中心3号楼2楼

  • 衢州格堂装饰有限公司

  • 扫一扫关注官方微信

    获取一手特惠信息

快速回复 返回顶部 返回列表