• 手机版

    扫码体验手机版

  • 微信公众号

    扫码关注公众号

登录注册
游客您好
第三方账号登陆

[衢州] 斗潭西区18-3-30#81㎡北欧——暖心治愈居所

[复制链接]
发表于 2024-7-21 11:42:15 | 显示全部楼层 |阅读模式
斗潭西区18-3-30#81㎡北欧——暖心治愈居所

格堂装饰为您全程记录装修全过程!

小区名称
斗潭西区
房屋面积
81㎡
户型结构
套房
装修风格
北欧
装修方式
全包
装修造价
查看请联系客服万元
设计师
徐工
项目经理
施工
装修公司
格堂装饰
完工实景
完工实景
水电全景
水电全景
VR全景
VR全景
设计说明
摒弃了塞得满满当当的设计
使用了简约并且较少的家具及装饰点缀
巧妙运用了少即是多的设计语言
不仅扩大了家的空间
也保证了设计上的优雅与格调
更多信息
本帖最后由 格堂黄姐 于 2024-7-24 13:29 编辑

效果图

mmexport1721529063575.jpg

mmexport1721529065986.jpg

mmexport1721529068297.jpg

mmexport1721529070639.jpg
回复

使用道具 举报

 楼主| 发表于 2024-7-21 11:42:44 | 显示全部楼层
本帖最后由 格堂黄姐 于 2024-12-7 14:15 编辑

目      录


回复 支持 反对

使用道具 举报

 楼主| 发表于 2024-7-21 11:43:21 | 显示全部楼层
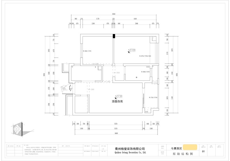
原始结构图
mmexport1721529050201.jpg



平面布置图

mmexport1721529058852.jpg
回复 支持 反对

使用道具 举报

 楼主| 发表于 2024-7-21 11:44:42 | 显示全部楼层
本帖最后由 格堂黄姐 于 2024-9-3 16:32 编辑

开工仪式准备,开工横幅、鲜花、礼花准备到位,就等吉时!
mmexport1721365424715.jpg

吉时到开工了,恭祝业主大人开工大吉!
mmexport1721365413475.jpg

开工第一锤,由业主敲在要拆除的墙体的墙角上,象征一锤定音,也代表着新房动土。
mmexport1721365417305.jpg

敲的痕迹
IMG_20240722_120112.jpg

回复 支持 反对

使用道具 举报

 楼主| 发表于 2024-7-21 11:45:16 | 显示全部楼层
设计师和项目经理正在按图纸拆改放样,确保放样无误。
mmexport1721365430725.jpg

mmexport1721365433581.jpg

mmexport1721365438830.jpg

mmexport1721365441868.jpg

mmexport1721365444526.jpg

mmexport1721365449462.jpg

回复 支持 反对

使用道具 举报

 楼主| 发表于 2024-7-21 11:46:00 | 显示全部楼层
本帖最后由 格堂黄姐 于 2024-7-22 15:37 编辑

门槛已经保护到位。
IMG_20240722_115855.jpg

大门已经保护到位。
IMG_20240722_120227.jpg

煤气表已经保护到位。
IMG_20240722_115909.jpg

临时小便池已经安放好了,每一个施工现场都会配备临时小便斗,并且时刻保持干净卫生,保证工地环境干净整洁。
IMG_20240722_115934.jpg

排水管道用格堂专用保护盖保护,防止后期施工中砂石 堵塞管道
IMG_20240722_120208.jpg
回复 支持 反对

使用道具 举报

 楼主| 发表于 2024-7-21 11:46:42 | 显示全部楼层
本帖最后由 格堂黄姐 于 2024-7-22 15:38 编辑

开工前,电梯口墙面和地面已经保护到位。
IMG_20240722_115640.jpg

IMG_20240722_115641.jpg

IMG_20240722_115643.jpg

IMG_20240722_115646.jpg

IMG_20240722_115648.jpg
回复 支持 反对

使用道具 举报

 楼主| 发表于 2024-7-21 11:46:49 | 显示全部楼层
本帖最后由 格堂黄姐 于 2024-7-22 15:38 编辑

对角
IMG_20240722_115653.jpg

IMG_20240722_115655.jpg

IMG_20240722_115657.jpg

IMG_20240722_115659.jpg

IMG_20240722_115700.jpg
回复 支持 反对

使用道具 举报

 楼主| 发表于 2024-7-24 13:21:26 | 显示全部楼层
本帖最后由 格堂黄姐 于 2024-9-3 16:33 编辑

拆改阶段
房间铲灰,是为了防止墙顶面出现空鼓,在做好油漆后不会有墙顶面整块油漆脱落的现象。
拆除可以让空间利用更合理。为了整体结构的稳定性和安全性,承重墙是一定不能动的。
mmexport1721735417858.jpg

mmexport1721735413979.jpg

mmexport1721735411173.jpg

mmexport1721735407193.jpg

mmexport1721735403478.jpg

mmexport1721735396594.jpg

mmexport1721735393769.jpg

IMG_20240724_105754.jpg

IMG_20240724_105806.jpg
回复 支持 反对

使用道具 举报

 楼主| 发表于 2024-7-24 13:21:58 | 显示全部楼层
餐客厅

IMG_20240724_105307.jpg

IMG_20240724_105309.jpg

IMG_20240724_105312.jpg

IMG_20240724_105316.jpg

IMG_20240724_105319.jpg
回复 支持 反对

使用道具 举报

您需要登录后才可以回帖 登录 | 立即注册

本版积分规则

全国统一客服电话
0570-8028505

24x7小时免费咨询

  • 官方在线客服

    QQ客服:小西

    点击交谈

    QQ客服:良子

    点击交谈

    QQ客服:闵月

    点击交谈
  • 衢州市柯城区财富中心3号楼2楼

  • 衢州格堂装饰有限公司

  • 扫一扫关注官方微信

    获取一手特惠信息

快速回复 返回顶部 返回列表