[衢州] 云之宸12-2-80#81㎡现代——纵越轻盈 |
|
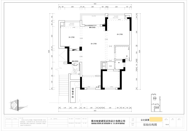
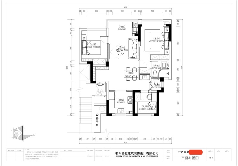
云之宸12-2-80#81㎡现代——纵越轻盈
格堂装饰为您全程记录装修全过程! 设计说明
设计,是摒弃多余的,满足基本所需的空间,从业主的角度出发,设想一系列生活场景,予以细化,希望人能在空间中得到沟通,形成更亲密的关系。白灰色在空间中自然延展,家的功能在无声中自然衔接,开放式结构让空间相互衔接,流畅的动线消弭了空间之隔,沉醉于无拘无束的舒适。
更多信息
| |
|
|
| |
| |
| |
| |


在线客服
微信客服
关注有礼