• 手机版

    扫码体验手机版

  • 微信公众号

    扫码关注公众号

登录注册
游客您好
第三方账号登陆

[衢州] 毓华张园2-80#109㎡现代——静享

[复制链接]
发表于 2024-7-10 17:12:59 | 显示全部楼层 |阅读模式
毓华张园2-80#109㎡现代——静享

格堂装饰为您全程记录装修全过程!

小区名称
毓华张园
房屋面积
109㎡
户型结构
套房
装修风格
现代
装修方式
半包
装修造价
查看请联系客服万元
设计师
梁工
项目经理
刘工
装修公司
格堂装饰
完工实景
完工实景
水电全景
水电全景
VR全景
VR全景
设计说明
纵然生活再多烦恼,始终会在家的温暖怀抱中,找到有效的治愈方式。
不仅是奢侈和繁华的点缀,更需艺术的灵魂和触动内心的浪漫来成就幸福美满的余生。
更多信息
本帖最后由 格堂黄姐 于 2024-7-21 15:51 编辑

效果图

mmexport1721546544307.jpg

mmexport1721546551552.jpg

mmexport1721546559394.jpg
回复

使用道具 举报

 楼主| 发表于 2024-7-10 17:13:25 | 显示全部楼层
本帖最后由 格堂黄姐 于 2024-11-25 15:42 编辑

目      录


回复 支持 反对

使用道具 举报

 楼主| 发表于 2024-7-10 17:14:00 | 显示全部楼层
本帖最后由 格堂黄姐 于 2024-7-21 15:48 编辑

原始结构图
mmexport1721547175412.jpg

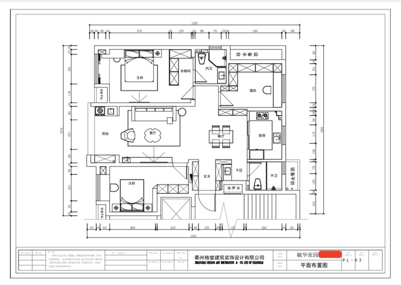
平面布置图

mmexport1721546702655.jpg
回复 支持 反对

使用道具 举报

 楼主| 发表于 2024-7-10 17:18:37 | 显示全部楼层
本帖最后由 格堂黄姐 于 2024-9-5 16:28 编辑

开工仪式准备,开工横幅、鲜花、礼花准备到位,就等吉时!
mmexport1720615461641.jpg

吉时到开工了,恭祝业主大人开工大吉!
mmexport1720587756626.jpg

开工第一锤,由业主敲在要拆除的墙体的墙角上,象征一锤定音,也代表着新房动土。
mmexport1720587760226.jpg

敲的痕迹
mmexport1720587768229.jpg


回复 支持 反对

使用道具 举报

 楼主| 发表于 2024-7-10 17:19:23 | 显示全部楼层
设计师和项目经理正在按图纸拆改放样,确保放样无误。
mmexport1720587780084.jpg

mmexport1720587784459.jpg

mmexport1720587788834.jpg

mmexport1720587794704.jpg

mmexport1720587797962.jpg

回复 支持 反对

使用道具 举报

 楼主| 发表于 2024-7-10 17:19:42 | 显示全部楼层
mmexport1720587803212.jpg


mmexport1720587806496.jpg

mmexport1720587810245.jpg

mmexport1720587813695.jpg

mmexport1720587818483.jpg
回复 支持 反对

使用道具 举报

 楼主| 发表于 2024-7-15 14:14:19 | 显示全部楼层
门槛已经保护到位。
IMG_20240715_073617.jpg

大门已经保护到位。
IMG_20240715_073612.jpg

煤气表已经保护到位。
IMG_20240715_073736.jpg

临时小便池已经安放好了,每一个施工现场都会配备临时小便斗,并且时刻保持干净卫生,保证工地环境干净整洁。
IMG_20240715_073749.jpg

排水管道用格堂专用保护盖保护,防止后期施工中砂石 堵塞管道
IMG_20240715_073721.jpg

回复 支持 反对

使用道具 举报

 楼主| 发表于 2024-7-15 14:15:05 | 显示全部楼层
开工前,电梯口墙面和地面已经保护到位。
IMG_20240715_073629.jpg

IMG_20240715_073631.jpg

IMG_20240715_073635.jpg

IMG_20240715_073637.jpg

IMG_20240715_073640.jpg

回复 支持 反对

使用道具 举报

 楼主| 发表于 2024-7-15 14:15:34 | 显示全部楼层
对角

IMG_20240715_073645.jpg

IMG_20240715_073647.jpg

IMG_20240715_073650.jpg

IMG_20240715_073652.jpg

IMG_20240715_073654.jpg
回复 支持 反对

使用道具 举报

 楼主| 发表于 2024-7-15 14:18:27 | 显示全部楼层
本帖最后由 格堂黄姐 于 2024-9-5 16:29 编辑

拆改阶段
玄关
IMG_20240715_073811.jpg

IMG_20240715_073812.jpg

IMG_20240715_073814.jpg

IMG_20240715_073816.jpg

IMG_20240715_073817.jpg

回复 支持 反对

使用道具 举报

您需要登录后才可以回帖 登录 | 立即注册

本版积分规则

全国统一客服电话
0570-8028505

24x7小时免费咨询

  • 官方在线客服

    QQ客服:小西

    点击交谈

    QQ客服:良子

    点击交谈

    QQ客服:闵月

    点击交谈
  • 衢州市柯城区财富中心3号楼2楼

  • 衢州格堂装饰有限公司

  • 扫一扫关注官方微信

    获取一手特惠信息

快速回复 返回顶部 返回列表