常山文澜苑8-1-90#115㎡现代——融融 |
|
常山文澜苑8-1-90#115㎡现代——融融
格堂装饰实景完工案例欣赏!
设计说明
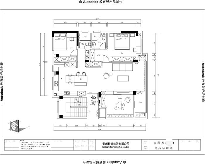
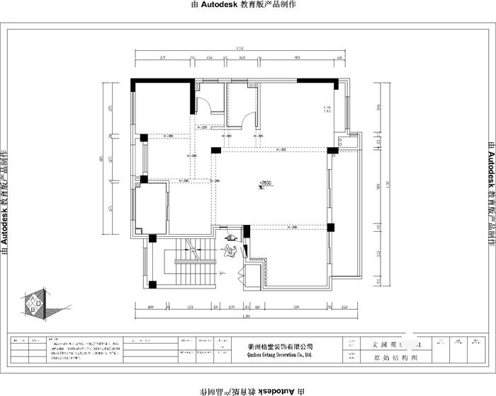
空间里以温暖的木质包裹墙面,光均匀的在表皮流曳,一踏入,因工作疲惫的身心逐渐放松,回归于风平浪静,水清沙幼的海滩。公共空间彼此连接又各自保有独立性,延伸了的视觉感受,进一步放大空间。原本四室两厅的结构,我们将厨房扩大,餐厅、客厅、活动区与阳台成为一个整体,打破格局的同时也放大格局。空间成为一种无缝且统一的表达,适合跑过来跑过去的孩子,聚会也可以通过散落的形式进行,密友之间更轻松随意。整个客厅与活动区我们采用了木、白的整体搭配色系,白色并不苍白,黄澄澄的木色放着光芒,而躲在电视柜下方的木色将整个空间进行了一个二次延伸。一个空间内,拥有不同的高度、遍布不同的材质、产生不同的变化。
更多信息
| |
|
格堂装饰网www.gtzs.com首创衢城(甚至全国)装修全新模式,为您记录装修全过程,有专门客服为您记录装修全过程传到格堂公司内部网站!
|
|
| |
|
格堂装饰网www.gtzs.com首创衢城(甚至全国)装修全新模式,为您记录装修全过程,有专门客服为您记录装修全过程传到格堂公司内部网站!
|
|
| |
|
格堂装饰网www.gtzs.com首创衢城(甚至全国)装修全新模式,为您记录装修全过程,有专门客服为您记录装修全过程传到格堂公司内部网站!
|
|
| |
|
格堂装饰网www.gtzs.com首创衢城(甚至全国)装修全新模式,为您记录装修全过程,有专门客服为您记录装修全过程传到格堂公司内部网站!
|
|
| |
|
格堂装饰网www.gtzs.com首创衢城(甚至全国)装修全新模式,为您记录装修全过程,有专门客服为您记录装修全过程传到格堂公司内部网站!
|
|
| |
|
格堂装饰网www.gtzs.com首创衢城(甚至全国)装修全新模式,为您记录装修全过程,有专门客服为您记录装修全过程传到格堂公司内部网站!
|
|
| |
|
格堂装饰网www.gtzs.com首创衢城(甚至全国)装修全新模式,为您记录装修全过程,有专门客服为您记录装修全过程传到格堂公司内部网站!
|
|
| |
|
格堂装饰网www.gtzs.com首创衢城(甚至全国)装修全新模式,为您记录装修全过程,有专门客服为您记录装修全过程传到格堂公司内部网站!
|
|
| |
|
格堂装饰网www.gtzs.com首创衢城(甚至全国)装修全新模式,为您记录装修全过程,有专门客服为您记录装修全过程传到格堂公司内部网站!
|
|
| |
|
格堂装饰网www.gtzs.com首创衢城(甚至全国)装修全新模式,为您记录装修全过程,有专门客服为您记录装修全过程传到格堂公司内部网站!
|
|


在线客服
微信客服
关注有礼