• 手机版

    扫码体验手机版

  • 微信公众号

    扫码关注公众号

登录注册
游客您好
第三方账号登陆

[龙游] 白鸽湖13-8#120㎡现代------至简生活

[复制链接]
发表于 2024-6-27 09:03:48 | 显示全部楼层 |阅读模式
至简生活

格堂装饰为您全程记录装修全过程!

小区名称
白鸽湖
房屋面积
120㎡
户型结构
套房
装修风格
现代
装修方式
半包
装修造价
查看请联系客服万元
设计师
梁工
项目经理
谢工
装修公司
格堂装饰
完工实景
完工实景
水电全景
水电全景
VR全景
VR全景
设计说明
:拥有一个属于自己的家,最好是带有阳台,这样就能沐浴在阳光中,感受这无限的绿意,生活不止眼前的苟且,还有诗和远方,既然外出寻找美景费时费力,还不如去打造自己家中的美景,将无限的美景和浪漫搬运到自己家中。
更多信息
回复

使用道具 举报

 楼主| 发表于 2024-6-27 09:05:07 | 显示全部楼层
本帖最后由 格堂小静 于 2024-7-13 17:52 编辑

原始结构
IMG_8698(1).JPG
回复 支持 反对

使用道具 举报

 楼主| 发表于 2024-6-27 09:07:07 | 显示全部楼层
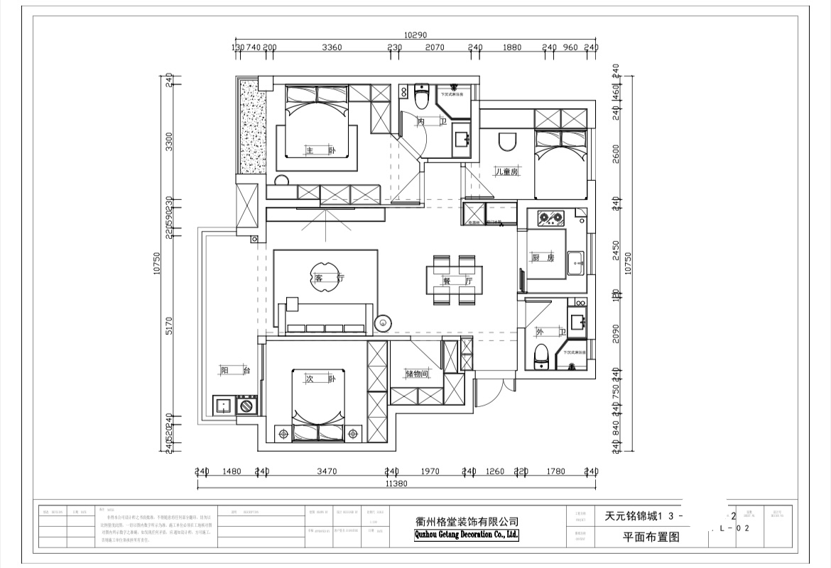
本帖最后由 格堂小静 于 2024-7-13 17:52 编辑

平面布置
IMG_8699(1).JPG
回复 支持 反对

使用道具 举报

 楼主| 发表于 2024-6-27 09:07:35 | 显示全部楼层
进户门保护防止磕损









回复 支持 反对

使用道具 举报

 楼主| 发表于 2024-6-27 09:09:22 | 显示全部楼层
煤气管道保护防止磕损
微信图片_20240624111119.jpg





回复 支持 反对

使用道具 举报

 楼主| 发表于 2024-6-27 09:09:50 | 显示全部楼层
临时马桶安置处

回复 支持 反对

使用道具 举报

 楼主| 发表于 2024-6-27 09:10:07 | 显示全部楼层
开工金锤

回复 支持 反对

使用道具 举报

 楼主| 发表于 2024-6-27 09:10:23 | 显示全部楼层
开工礼炮

回复 支持 反对

使用道具 举报

 楼主| 发表于 2024-6-27 09:10:47 | 显示全部楼层

回复 支持 反对

使用道具 举报

 楼主| 发表于 2024-6-27 09:11:04 | 显示全部楼层
开工鲜花

回复 支持 反对

使用道具 举报

您需要登录后才可以回帖 登录 | 立即注册

本版积分规则

全国统一客服电话
0570-8028505

24x7小时免费咨询

  • 官方在线客服

    QQ客服:小西

    点击交谈

    QQ客服:良子

    点击交谈

    QQ客服:闵月

    点击交谈
  • 衢州市柯城区财富中心3号楼2楼

  • 衢州格堂装饰有限公司

  • 扫一扫关注官方微信

    获取一手特惠信息

快速回复 返回顶部 返回列表