• 手机版

    扫码体验手机版

  • 微信公众号

    扫码关注公众号

登录注册
游客您好
第三方账号登陆

[衢州] 雁归里1-1-50#122㎡现代中式——沐光而行

[复制链接]
发表于 2024-6-7 15:01:02 | 显示全部楼层 |阅读模式
雁归里1-1-50#122㎡现代中式——沐光而行

格堂装饰为您全程记录装修全过程!

小区名称
雁归里
房屋面积
122㎡
户型结构
套房
装修风格
现代
装修方式
全案
装修造价
查看请联系客服万元
设计师
毛工
项目经理
周工
装修公司
格堂装饰
完工实景
完工实景
水电全景
水电全景
VR全景
VR全景
设计说明
木纹、白色,自然原始的色调,营造出一种松弛的生活状态,平静而优雅。优雅是一种内在的气质,平静是一种对生活的热爱。心存希冀,目有繁星,追光而遇,沐光而行。
更多信息
效果图

mmexportb867ef6f95d5dea62f258b5428066a42_1717664768859.jpeg

mmexportcd3529db23fdd9082b52d84111ab454e_1717664758210.jpeg

mmexportb3758b676635123ed9349f9394f63bec_1717664808868.jpeg

mmexport26badbbf34e710155028eb28f017e329_1717664822280.jpeg

mmexport7bd00e34094e84612c0ba4c198a6287f_1717664777905.jpeg
回复

使用道具 举报

 楼主| 发表于 2024-6-7 15:01:34 | 显示全部楼层
本帖最后由 格堂黄姐 于 2025-1-4 21:06 编辑

目      录


回复 支持 反对

使用道具 举报

 楼主| 发表于 2024-6-7 15:02:12 | 显示全部楼层
本帖最后由 格堂黄姐 于 2024-6-7 15:50 编辑

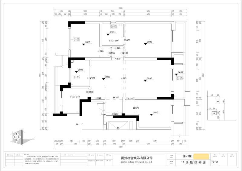
原始结构图
mmexport1717664859136.png



平面布置图
74bdeeb12c30867964b49aa9c86638c.png

回复 支持 反对

使用道具 举报

 楼主| 发表于 2024-6-7 15:04:56 | 显示全部楼层
本帖最后由 格堂黄姐 于 2024-9-25 09:34 编辑

开工仪式准备,开工横幅、鲜花、礼花准备到位,就等吉时!
mmexport1717738827807.jpg

吉时到开工了,恭祝业主大人开工大吉!
mmexport1717738840340.jpg

开工第一锤,由业主敲在要拆除的墙体的墙角上,象征一锤定音,也代表着新房动土。
mmexport1717738846302.jpg

敲的痕迹
mmexport1717738852297.jpg

回复 支持 反对

使用道具 举报

 楼主| 发表于 2024-6-7 15:05:40 | 显示全部楼层
设计师和项目经理正在按图纸拆改放样,确保放样无误。
mmexport1717738856965.jpg

mmexport1717738859244.jpg

mmexport1717738862413.jpg

mmexport1717738865354.jpg

回复 支持 反对

使用道具 举报

 楼主| 发表于 2024-6-8 11:43:55 | 显示全部楼层
门槛已经保护到位。
IMG_20240608_095237.jpg

大门已经保护到位。
IMG_20240608_095251.jpg

煤气表已经保护到位。
IMG_20240608_095511.jpg

临时小便池已经安放好了:每一个施工现场都会配备临时小便斗,并且时刻保持干净卫生,保证工地环境干净整洁。
排水管道用格堂专用保护盖保护,防止后期施工中砂石 堵塞管道
IMG_20240608_095633.jpg

回复 支持 反对

使用道具 举报

 楼主| 发表于 2024-6-8 11:44:27 | 显示全部楼层
开工前,电梯口墙面和地面已经保护到位。
IMG_20240608_095107.jpg

IMG_20240608_095109.jpg

IMG_20240608_095112.jpg

IMG_20240608_095114.jpg

IMG_20240608_095118.jpg

回复 支持 反对

使用道具 举报

 楼主| 发表于 2024-6-8 11:44:51 | 显示全部楼层
对角

IMG_20240608_095133.jpg

IMG_20240608_095135.jpg

IMG_20240608_095138.jpg

IMG_20240608_095141.jpg

IMG_20240608_095143.jpg
回复 支持 反对

使用道具 举报

 楼主| 发表于 2024-6-14 15:50:17 | 显示全部楼层
本帖最后由 格堂黄姐 于 2024-9-25 09:35 编辑

拆改阶段
房间铲灰,是为了防止墙顶面出现空鼓,在做好油漆后不会有墙顶面整块油漆脱落的现象。
拆除可以让空间利用更合理。为了整体结构的稳定性和安全性,承重墙是一定不能动的。
mmexport1718348381979.jpg

mmexport1718348384160.jpg

mmexport1718348386451.jpg

mmexport1718348388743.jpg

mmexport1718348391714.jpg

mmexport1718348395348.jpg
回复 支持 反对

使用道具 举报

 楼主| 发表于 2024-6-16 22:16:05 | 显示全部楼层
mmexport1718537963610.jpg


mmexport1718537966030.jpg

mmexport1718537968441.jpg

mmexport1718537970935.jpg

mmexport1718537973446.jpg
回复 支持 反对

使用道具 举报

您需要登录后才可以回帖 登录 | 立即注册

本版积分规则

全国统一客服电话
0570-8028505

24x7小时免费咨询

  • 官方在线客服

    QQ客服:小西

    点击交谈

    QQ客服:良子

    点击交谈

    QQ客服:闵月

    点击交谈
  • 衢州市柯城区财富中心3号楼2楼

  • 衢州格堂装饰有限公司

  • 扫一扫关注官方微信

    获取一手特惠信息

快速回复 返回顶部 返回列表