• 手机版

    扫码体验手机版

  • 微信公众号

    扫码关注公众号

登录注册
游客您好
第三方账号登陆

[衢州] 星月宸庐4-1-10#123㎡现代——简洁,实用

[复制链接]
发表于 2024-6-7 12:36:58 | 显示全部楼层 |阅读模式
星月宸庐4-1-10#123㎡现代——简洁,实用

格堂装饰为您全程记录装修全过程!

小区名称
星月宸庐
房屋面积
123㎡
户型结构
套房
装修风格
现代
装修方式
半包
装修造价
查看请联系客服万元
设计师
王工
项目经理
王工
装修公司
格堂装饰
完工实景
完工实景
水电全景
水电全景
VR全景
VR全景
设计说明
追求空间之间的关系,没有过多复杂的装饰,强调简洁的造型,温暖的色彩来营造美观大方的空间效果
更多信息
本帖最后由 格堂王姐 于 2024-7-21 09:30 编辑

效果图
微信图片_20240721092210.jpg


微信图片_20240721092216.jpg


微信图片_20240721092219.jpg


微信图片_20240721092222.jpg


微信图片_20240721092225.jpg


微信图片_20240721092228.jpg


微信图片_20240721092231.jpg

回复

使用道具 举报

 楼主| 发表于 2024-6-9 10:24:00 | 显示全部楼层
回复 支持 反对

使用道具 举报

 楼主| 发表于 2024-6-9 10:24:39 | 显示全部楼层
本帖最后由 格堂王姐 于 2024-7-21 09:28 编辑

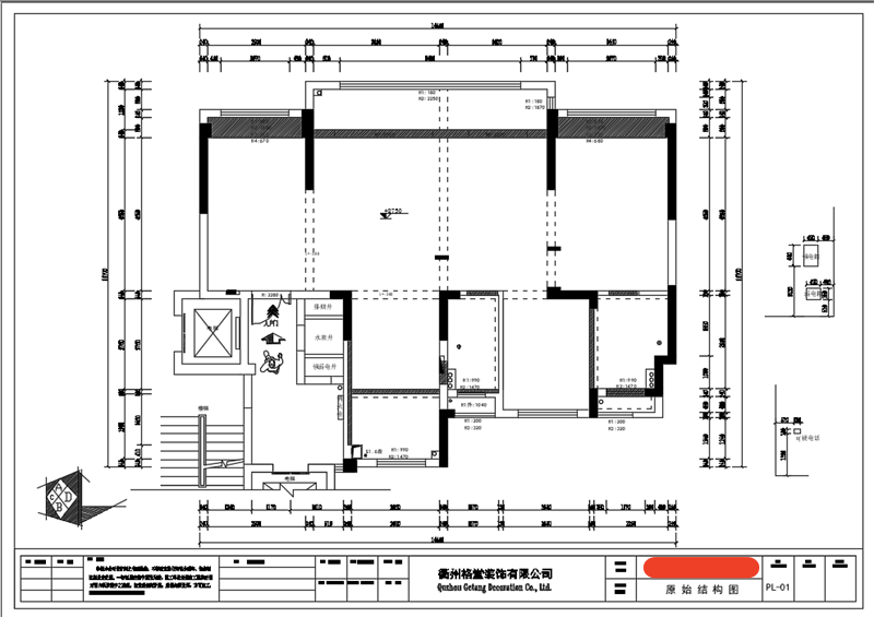
原始结构图
微信图片_20240721092144.png

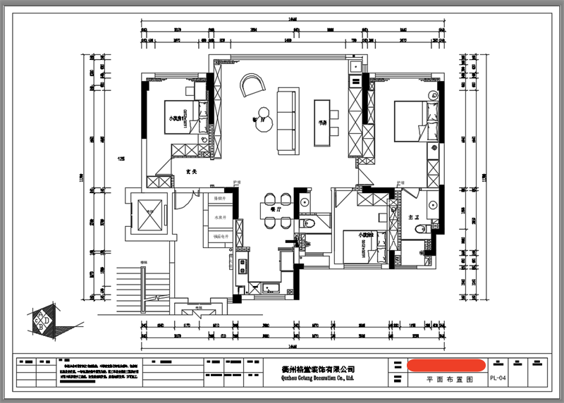
平面布置图
微信图片_20240721092158.png

回复 支持 反对

使用道具 举报

 楼主| 发表于 2024-6-9 10:24:54 | 显示全部楼层
本帖最后由 格堂王姐 于 2024-6-9 10:32 编辑

大门已经保护到位。
IMG_20240605_121736.jpg

煤气表已经保护到位。
IMG_20240605_121640.jpg

临时小便池已经安放好了:每一个施工现场都会配备临时小便斗,并且时刻保持干净卫生,保证工地环境干净整洁。
IMG_20240605_121658.jpg

排水管道用格堂专用保护盖保护,防止后期施工中砂石堵塞管道
IMG_20240605_121708.jpg
回复 支持 反对

使用道具 举报

 楼主| 发表于 2024-6-9 10:25:04 | 显示全部楼层
本帖最后由 格堂王姐 于 2024-6-9 10:34 编辑

开工仪式准备,开工横幅、鲜花、礼花准备到位,就等吉时!
开工桌摆好准备
微信图片_20240531154616.jpg

微信图片_20240531154712.jpg

吉时到开工了,恭祝业主大人开工大吉!
仪式很短暂,家居装修却很长……与漫漫人生历程相比,这些短短一瞬,却包含了满满的心意。
我们竭力用自己的专业技能,让每位业主拥有最接近梦想的家!恭祝开工大吉!
开工合影
微信图片_20240531154723.jpg

开工第一锤,由业主敲在要拆除的墙体的墙角(即拐角)上,象征一锤定音的意思,也是新房动土的一种表示方式
业主敲下第一锤
微信图片_20240531154717.jpg

敲完的痕迹
微信图片_20240531154853.jpg

回复 支持 反对

使用道具 举报

 楼主| 发表于 2024-6-9 10:25:16 | 显示全部楼层
本帖最后由 格堂王姐 于 2024-6-9 10:34 编辑

电梯口墙面和地面都贴好了格堂专用的保护垫。
IMG_20240605_121742.jpg


IMG_20240605_121746.jpg


IMG_20240605_121750.jpg


IMG_20240605_121753.jpg


IMG_20240605_121756.jpg
回复 支持 反对

使用道具 举报

 楼主| 发表于 2024-6-9 10:25:23 | 显示全部楼层
本帖最后由 格堂王姐 于 2024-6-9 10:35 编辑

IMG_20240605_121802.jpg


IMG_20240605_121804.jpg


IMG_20240605_121807.jpg


IMG_20240605_121810.jpg


IMG_20240605_121813.jpg
回复 支持 反对

使用道具 举报

 楼主| 发表于 2024-6-9 10:36:38 | 显示全部楼层
拆改阶段:
房间铲灰,是为了防止墙顶面出现空鼓,在做好油漆后不会有墙顶面整块油漆脱落的现象。
拆除可以让空间利用更合理。为了整体结构的稳定性和安全性,承重墙是一定不能动的。
微信图片_20240531155450.jpg


微信图片_20240531155456.jpg


微信图片_20240531155459.jpg


微信图片_20240531155512.jpg


微信图片_20240606094314.jpg

回复 支持 反对

使用道具 举报

 楼主| 发表于 2024-6-9 10:37:10 | 显示全部楼层
微信图片_20240606094327.jpg



微信图片_20240606094330.jpg


微信图片_20240606094333.jpg


微信图片_20240606094336.jpg


微信图片_20240606094340.jpg


微信图片_20240606094343.jpg
回复 支持 反对

使用道具 举报

 楼主| 发表于 2024-6-9 10:37:54 | 显示全部楼层
砌墙中途:

最顶上一排砖采用斜砌,这样墙体会更加牢固。
新老墙交接处植入钢筋,采用膨胀螺栓连接墙体,可以有效加大新老墙拉结力,增加稳定性,防止后期墙体开裂,加固新老墙。
师傅是在拉钢丝网哦,新老墙交接的地方都要放钢丝网再粉水泥砂浆,防止墙面开裂。
微信图片_20240607123817.jpg


微信图片_20240607123831.jpg


微信图片_20240607123835.jpg


微信图片_20240607123838.jpg

回复 支持 反对

使用道具 举报

您需要登录后才可以回帖 登录 | 立即注册

本版积分规则

全国统一客服电话
0570-8028505

24x7小时免费咨询

  • 官方在线客服

    QQ客服:小西

    点击交谈

    QQ客服:良子

    点击交谈

    QQ客服:闵月

    点击交谈
  • 衢州市柯城区财富中心3号楼2楼

  • 衢州格堂装饰有限公司

  • 扫一扫关注官方微信

    获取一手特惠信息

快速回复 返回顶部 返回列表