• 手机版

    扫码体验手机版

  • 微信公众号

    扫码关注公众号

登录注册
游客您好
第三方账号登陆

[龙游] 高家自建别墅290㎡新中式——雅居

[复制链接]
发表于 2024-6-1 11:09:03 | 显示全部楼层 |阅读模式
雅居

格堂装饰为您全程记录装修全过程!

小区名称
高家自建房
房屋面积
290㎡
户型结构
别墅
装修风格
新中式
装修方式
半包
装修造价
查看请联系客服万元
设计师
雷蕾
项目经理
谢工
装修公司
格堂装饰
完工实景
完工实景
水电全景
水电全景
VR全景
VR全景
设计说明
青山一片云雾,心安即是归处。人生天地之间,若白驹之过隙,忽然而已。
更多信息
本帖最后由 格堂小静 于 2025-4-20 17:07 编辑

客厅效果图
微信图片_202406011031564.jpg

微信图片_20240601103157.jpg


目      录



回复

使用道具 举报

 楼主| 发表于 2024-6-1 11:09:48 | 显示全部楼层
书房效果图

微信图片_20240601103159.jpg
回复 支持 反对

使用道具 举报

 楼主| 发表于 2024-6-1 11:10:56 | 显示全部楼层
房间效果图
微信图片_20240601103011.jpg

微信图片_20240601103158.jpg
回复 支持 反对

使用道具 举报

 楼主| 发表于 2024-6-1 11:18:50 | 显示全部楼层
一楼原始结构

微信图片_202406011031591.jpg
一楼平面布置
微信图片_202406011031592.jpg

微信图片_20240601103200.jpg
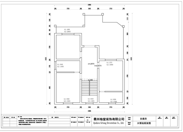
3楼原始结构
微信图片_202406011032001.jpg
3楼平面
微信图片_20240601102959.jpg
回复 支持 反对

使用道具 举报

 楼主| 发表于 2024-6-1 11:20:03 | 显示全部楼层
本帖最后由 格堂小静 于 2024-6-1 11:31 编辑

开工布置
IMG_3536.JPG

IMG_3537.JPG
回复 支持 反对

使用道具 举报

 楼主| 发表于 2024-6-1 11:21:44 | 显示全部楼层
一楼

IMG_3538.JPG

IMG_3539.JPG

IMG_3540.JPG

IMG_3541.JPG
回复 支持 反对

使用道具 举报

 楼主| 发表于 2024-6-1 11:22:13 | 显示全部楼层
IMG_3542.JPG


IMG_3543.JPG

IMG_3544.JPG

IMG_3545.JPG

IMG_3546.JPG
回复 支持 反对

使用道具 举报

 楼主| 发表于 2024-6-1 11:24:02 | 显示全部楼层
二楼

IMG_3547.JPG

IMG_3548.JPG

IMG_3549.JPG

IMG_3550.JPG

IMG_3550.JPG

IMG_3551.JPG
回复 支持 反对

使用道具 举报

 楼主| 发表于 2024-6-1 11:24:46 | 显示全部楼层
二楼

IMG_3552.JPG

IMG_3553.JPG

IMG_3554.JPG

IMG_3555.JPG
回复 支持 反对

使用道具 举报

 楼主| 发表于 2024-6-1 11:25:26 | 显示全部楼层
三楼

IMG_3556.JPG

IMG_3557.JPG

IMG_3558.JPG

IMG_3559.JPG

IMG_3560.JPG
回复 支持 反对

使用道具 举报

您需要登录后才可以回帖 登录 | 立即注册

本版积分规则

全国统一客服电话
0570-8028505

24x7小时免费咨询

  • 官方在线客服

    QQ客服:小西

    点击交谈

    QQ客服:良子

    点击交谈

    QQ客服:闵月

    点击交谈
  • 衢州市柯城区财富中心3号楼2楼

  • 衢州格堂装饰有限公司

  • 扫一扫关注官方微信

    获取一手特惠信息

快速回复 返回顶部 返回列表