• 手机版

    扫码体验手机版

  • 微信公众号

    扫码关注公众号

登录注册
游客您好
第三方账号登陆

[衢州] 国风澜园2-1-12#134㎡现代——简奢视觉空间

[复制链接]
发表于 2024-5-31 13:18:27 | 显示全部楼层 |阅读模式
国风澜园2-1-12#134㎡现代——简奢视觉空间

格堂装饰为您全程记录装修全过程!

小区名称
国风澜园
房屋面积
134㎡
户型结构
套房
装修风格
现代
装修方式
半包
装修造价
查看请联系客服万元
设计师
吴工
项目经理
王工
装修公司
格堂装饰
完工实景
完工实景
水电全景
水电全景
VR全景
VR全景
设计说明
入户玄关和电视墙一体设计,次卧拆墙融入客厅,形成大空间,在大面幅的落地窗前,空间感受超越了原有四室居户型的界限。整体色调为浅灰色,现代风格,空间感觉大方沉稳,气质典雅。
更多信息
本帖最后由 格堂黄姐 于 2024-6-9 21:45 编辑

效果图
mmexport1717938810842.png

mmexport1717938816089.jpg

回复

使用道具 举报

 楼主| 发表于 2024-5-31 13:31:00 | 显示全部楼层
本帖最后由 格堂黄姐 于 2024-11-23 14:56 编辑

目      录


回复 支持 反对

使用道具 举报

 楼主| 发表于 2024-5-31 13:31:28 | 显示全部楼层
本帖最后由 格堂黄姐 于 2024-6-1 09:12 编辑

原始结构图
mmexport1717152186564.jpg

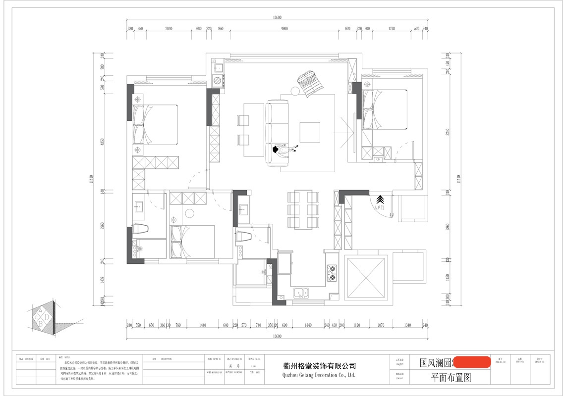
平面布置图

mmexport1717152210758.jpg
回复 支持 反对

使用道具 举报

 楼主| 发表于 2024-5-31 13:32:58 | 显示全部楼层
本帖最后由 格堂黄姐 于 2024-9-10 15:52 编辑

开工仪式准备,开工横幅、鲜花、礼花准备到位,就等吉时!
mmexport1717029094753.jpg


吉时到开工了,恭祝业主大人开工大吉!
mmexport1717028998327.jpg

开工第一锤,由业主敲在要拆除的墙体的墙角上,象征一锤定音,也代表着新房动土。
mmexport1717029082472.jpg

敲的痕迹
mmexport1717029090067.jpg



回复 支持 反对

使用道具 举报

 楼主| 发表于 2024-5-31 13:35:12 | 显示全部楼层
设计师和项目经理正在按图纸拆改放样,确保放样无误。
mmexport1717029099738.jpg

mmexport1717029103997.jpg

mmexport1717029106753.jpg

mmexport1717029111017.jpg

mmexport1717029116131.jpg

mmexport1717029121149.jpg

mmexport1717029125754.jpg

回复 支持 反对

使用道具 举报

 楼主| 发表于 2024-6-1 09:14:48 | 显示全部楼层
本帖最后由 格堂黄姐 于 2024-6-7 17:18 编辑

门槛已经保护到位。
IMG_20240601_144209.jpg

大门已经保护到位。
IMG_20240601_144203.jpg

煤气表已经保护到位。
IMG_20240601_144226.jpg

临时小便池已经安放好了:每一个施工现场都会配备临时小便斗,并且时刻保持干净卫生,保证工地环境干净整洁。
IMG_20240601_144244.jpg

排水管道用格堂专用保护盖保护,防止后期施工中砂石 堵塞管道
IMG_20240601_144222.jpg
回复 支持 反对

使用道具 举报

 楼主| 发表于 2024-6-1 09:15:03 | 显示全部楼层
本帖最后由 格堂黄姐 于 2024-6-7 17:18 编辑

开工前,电梯口墙面和地面已经保护到位。
IMG_20240601_144310.jpg

IMG_20240601_144312.jpg

IMG_20240601_144314.jpg

IMG_20240601_144316.jpg

IMG_20240601_144319.jpg
回复 支持 反对

使用道具 举报

 楼主| 发表于 2024-6-1 09:15:11 | 显示全部楼层
本帖最后由 格堂黄姐 于 2024-6-7 17:19 编辑

对角
IMG_20240601_144325.jpg

IMG_20240601_144326.jpg

IMG_20240601_144329.jpg

IMG_20240601_144334.jpg

IMG_20240601_144337.jpg
回复 支持 反对

使用道具 举报

 楼主| 发表于 2024-6-1 09:15:56 | 显示全部楼层
本帖最后由 格堂黄姐 于 2024-9-10 15:53 编辑

拆改阶段
mmexport1717152231496.jpg

mmexport1717152238248.jpg

mmexport1717152242574.jpg

mmexport1717152247048.jpg

mmexport1717152251289.jpg
回复 支持 反对

使用道具 举报

 楼主| 发表于 2024-6-11 15:35:47 | 显示全部楼层
玄关

IMG_20240601_144354.jpg

IMG_20240601_144355.jpg

IMG_20240601_144357.jpg

IMG_20240601_144358.jpg

IMG_20240601_144359.jpg
回复 支持 反对

使用道具 举报

您需要登录后才可以回帖 登录 | 立即注册

本版积分规则

全国统一客服电话
0570-8028505

24x7小时免费咨询

  • 官方在线客服

    QQ客服:小西

    点击交谈

    QQ客服:良子

    点击交谈

    QQ客服:闵月

    点击交谈
  • 衢州市柯城区财富中心3号楼2楼

  • 衢州格堂装饰有限公司

  • 扫一扫关注官方微信

    获取一手特惠信息

快速回复 返回顶部 返回列表