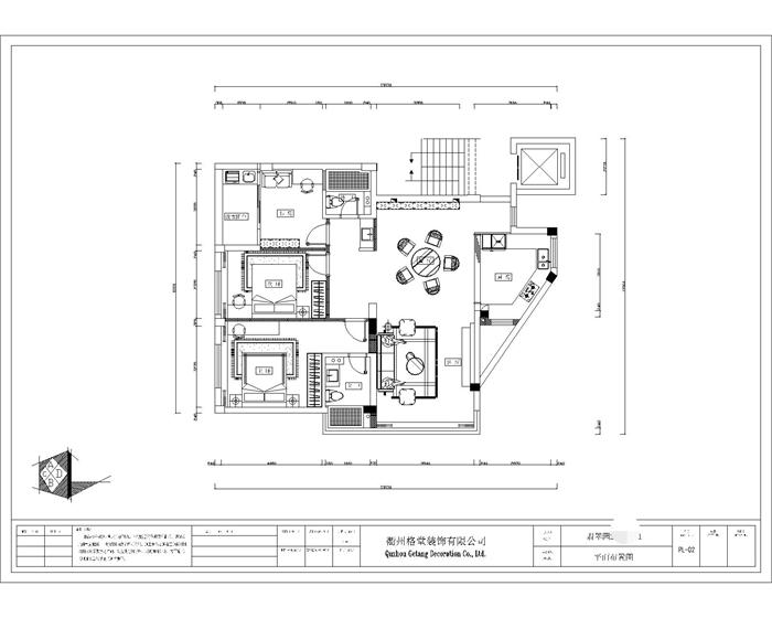
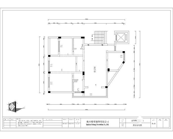
翡翠园23-1-20#115㎡中式——雅颂 |
|
翡翠园23-1-20#115㎡中式——雅颂
格堂装饰实景完工案例欣赏!
设计说明
家作为灵魂的栖息之所,表达的是一种立场,也是一种态度。在业主原有的诉求之上,增添更多的色彩、线条、功能、布局等。我们更希望给业主打造一个安静淡然、清新素雅的居住空间。远离喧嚣,感悟日月星辰,细品春夏秋冬,岁月静好君长伴,韶华倾尽两相依。新中式风格的魅力在于,延续古典气质的同时又将现代元素融入其中。充分考虑空间秩序及功能需求,深浅木饰面、金属不锈钢线条、天然大理石等材质的相互结合,搭配简单素雅的中式家具,呈现理性雅致的艺术空间
更多信息
| |
|
格堂装饰网www.gtzs.com首创衢城(甚至全国)装修全新模式,为您记录装修全过程,有专门客服为您记录装修全过程传到格堂公司内部网站!
|
|
| |
|
格堂装饰网www.gtzs.com首创衢城(甚至全国)装修全新模式,为您记录装修全过程,有专门客服为您记录装修全过程传到格堂公司内部网站!
|
|
| |
|
格堂装饰网www.gtzs.com首创衢城(甚至全国)装修全新模式,为您记录装修全过程,有专门客服为您记录装修全过程传到格堂公司内部网站!
|
|
| |
|
格堂装饰网www.gtzs.com首创衢城(甚至全国)装修全新模式,为您记录装修全过程,有专门客服为您记录装修全过程传到格堂公司内部网站!
|
|
| |
|
格堂装饰网www.gtzs.com首创衢城(甚至全国)装修全新模式,为您记录装修全过程,有专门客服为您记录装修全过程传到格堂公司内部网站!
|
|
| |
|
格堂装饰网www.gtzs.com首创衢城(甚至全国)装修全新模式,为您记录装修全过程,有专门客服为您记录装修全过程传到格堂公司内部网站!
|
|
| |
|
格堂装饰网www.gtzs.com首创衢城(甚至全国)装修全新模式,为您记录装修全过程,有专门客服为您记录装修全过程传到格堂公司内部网站!
|
|
| |
|
格堂装饰网www.gtzs.com首创衢城(甚至全国)装修全新模式,为您记录装修全过程,有专门客服为您记录装修全过程传到格堂公司内部网站!
|
|
| |
|
格堂装饰网www.gtzs.com首创衢城(甚至全国)装修全新模式,为您记录装修全过程,有专门客服为您记录装修全过程传到格堂公司内部网站!
|
|
| |
|
格堂装饰网www.gtzs.com首创衢城(甚至全国)装修全新模式,为您记录装修全过程,有专门客服为您记录装修全过程传到格堂公司内部网站!
|
|


在线客服
微信客服
关注有礼