• 手机版

    扫码体验手机版

  • 微信公众号

    扫码关注公众号

登录注册
游客您好
第三方账号登陆

[开化] 钟山云樾7-1-2#85㎡现代---轻松舒适

[复制链接]
发表于 2024-5-28 14:10:20 | 显示全部楼层 |阅读模式
钟山云樾7-1-2#85㎡现代---轻松舒适

格堂装饰为您全程记录装修全过程!

小区名称
钟山云樾
房屋面积
85㎡
户型结构
3房2厅1厨2卫
装修风格
现代
装修方式
半包
装修造价
查看请联系客服万元
设计师
蒋工
项目经理
毛工
装修公司
格堂装饰
完工实景
完工实景
水电全景
水电全景
VR全景
VR全景
设计说明
保证空间的最大化利用率,一切以舒适为主,细节与尺寸的碰撞,为保证业主以后居住的舒适与惬意。
更多信息


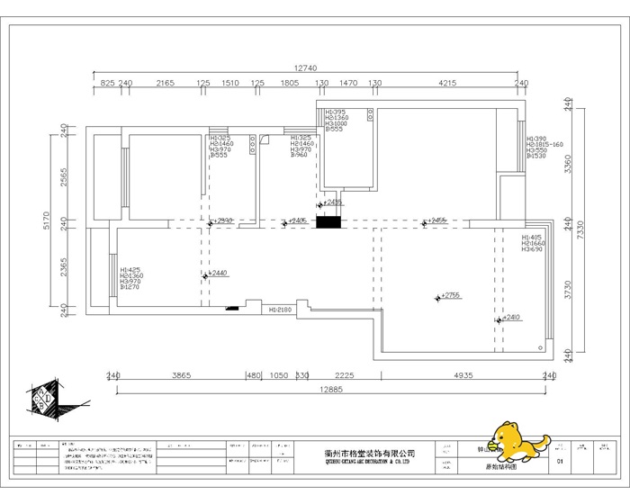
原始结构图
5cc94df840971fc83b0addb85e8a3a8_副本.jpg
回复

使用道具 举报

 楼主| 发表于 2024-5-28 14:10:38 | 显示全部楼层


平面布置图
86079bcaf423e840f214c5befe98362_副本.jpg
回复 支持 反对

使用道具 举报

 楼主| 发表于 2024-5-28 14:11:32 | 显示全部楼层
回复 支持 反对

使用道具 举报

 楼主| 发表于 2024-5-28 14:12:18 | 显示全部楼层


开工前准备
IMG_8525.JPEG

IMG_8526.JPEG

IMG_8527.JPEG

IMG_8528.JPEG
回复 支持 反对

使用道具 举报

 楼主| 发表于 2024-5-28 14:13:06 | 显示全部楼层


临时马桶:每一个施工现场都会配备临时小便斗,并且时刻保持干净卫生、保证工地环境干净、整洁
IMG_8529.JPEG
回复 支持 反对

使用道具 举报

 楼主| 发表于 2024-5-28 14:13:54 | 显示全部楼层


水管用格堂专用保护盖保护,防止砂石堵塞管道
IMG_8530.JPEG

IMG_8531.JPEG

IMG_8533.JPEG

IMG_8534.JPEG
回复 支持 反对

使用道具 举报

 楼主| 发表于 2024-5-28 14:14:21 | 显示全部楼层


燃气表保护
IMG_8532.JPEG
回复 支持 反对

使用道具 举报

 楼主| 发表于 2024-5-28 14:14:39 | 显示全部楼层


大门保护
IMG_8535.JPEG
回复 支持 反对

使用道具 举报

 楼主| 发表于 2024-5-28 14:15:09 | 显示全部楼层


门槛保护
IMG_8536.JPEG
回复 支持 反对

使用道具 举报

 楼主| 发表于 2024-5-28 14:15:46 | 显示全部楼层


电梯口保护
IMG_8537.JPEG

IMG_8538.JPEG

IMG_8539.JPEG

IMG_8540.JPEG

IMG_8541.JPEG
回复 支持 反对

使用道具 举报

您需要登录后才可以回帖 登录 | 立即注册

本版积分规则

全国统一客服电话
0570-8028505

24x7小时免费咨询

  • 官方在线客服

    QQ客服:小西

    点击交谈

    QQ客服:良子

    点击交谈

    QQ客服:闵月

    点击交谈
  • 衢州市柯城区财富中心3号楼2楼

  • 衢州格堂装饰有限公司

  • 扫一扫关注官方微信

    获取一手特惠信息

快速回复 返回顶部 返回列表