• 手机版

    扫码体验手机版

  • 微信公众号

    扫码关注公众号

登录注册
游客您好
第三方账号登陆

[江山] 江山首府10-122现代奶油风-治愈

[复制链接]
发表于 2024-5-21 16:02:35 | 显示全部楼层 |阅读模式
江山首府10-122现代奶油风-治愈

格堂装饰为您全程记录装修全过程!

小区名称
江山首府
房屋面积
122㎡
户型结构
框架结构
装修风格
奶油风
装修方式
全包
装修造价
查看请联系客服万元
设计师
杨工
项目经理
毛工
装修公司
格堂装饰
完工实景
完工实景
水电全景
水电全景
VR全景
VR全景
设计说明
以奶油色为主色调,营造一个温馨,舒适的家居空间。
更多信息
回复

使用道具 举报

 楼主| 发表于 2024-5-21 16:03:25 | 显示全部楼层
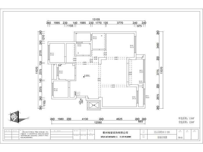
原始结构图
首府10-2-203原始结构图.jpg
回复 支持 反对

使用道具 举报

 楼主| 发表于 2024-5-21 16:04:06 | 显示全部楼层
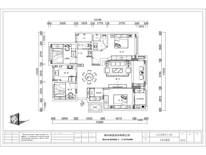
平面布局图

首府10-2-203平面布置图.jpg
回复 支持 反对

使用道具 举报

 楼主| 发表于 2024-5-21 16:21:53 | 显示全部楼层
本帖最后由 格堂红叶 于 2024-5-21 16:23 编辑

开工前大门先保护到位

7e59400dffaf1689573fdd799316159.jpg


回复 支持 反对

使用道具 举报

 楼主| 发表于 2024-5-21 16:24:03 | 显示全部楼层
门槛保护到位,防止磕碰

ec8864ff55b95cbc44576cb3c1ac727.jpg

回复 支持 反对

使用道具 举报

 楼主| 发表于 2024-5-21 16:25:13 | 显示全部楼层
卫生间的简易马桶安装到位,防止后期施工中沙石堵塞进入,美观又干净!

a037c3d707b677bc22951a31e57186e.jpg

回复 支持 反对

使用道具 举报

 楼主| 发表于 2024-5-21 16:26:34 | 显示全部楼层
排水管道用格堂装饰专用保护盖保护,防止后期施工砂石堵塞管道

1f7f872d47ad8931ddf45c789bef521.jpg

4b2c32e5467ff353c5ddb517eacbec5.jpg

9cde90039ce3b5c4e04cf7f4c2d674f.jpg

185de7c3c84a6a66812d670d765ac3c.jpg

a2a6132fe2231f8013b22418ceae151.jpg

回复 支持 反对

使用道具 举报

 楼主| 发表于 2024-5-21 16:27:29 | 显示全部楼层
燃气已用格堂专门的保护袋保护好

cf2f85753b915929cd62c259823997d.jpg

回复 支持 反对

使用道具 举报

 楼主| 发表于 2024-5-21 16:28:13 | 显示全部楼层
送给业主的鲜花已准备好

f255a2a6ec4afd42e55c127f4c03506.jpg

回复 支持 反对

使用道具 举报

 楼主| 发表于 2024-5-21 16:29:01 | 显示全部楼层
开工锤已准备好

01f20a3f53662402047d9661c0b2685.jpg

回复 支持 反对

使用道具 举报

您需要登录后才可以回帖 登录 | 立即注册

本版积分规则

全国统一客服电话
0570-8028505

24x7小时免费咨询

  • 官方在线客服

    QQ客服:小西

    点击交谈

    QQ客服:良子

    点击交谈

    QQ客服:闵月

    点击交谈
  • 衢州市柯城区财富中心3号楼2楼

  • 衢州格堂装饰有限公司

  • 扫一扫关注官方微信

    获取一手特惠信息

快速回复 返回顶部 返回列表