• 手机版

    扫码体验手机版

  • 微信公众号

    扫码关注公众号

登录注册
游客您好
第三方账号登陆

[龙游] 江荷明月1-21-2#130㎡

[复制链接]
发表于 2024-5-21 15:30:29 | 显示全部楼层 |阅读模式
现代——简约

格堂装饰为您全程记录装修全过程!

小区名称
江荷明月
房屋面积
130㎡
户型结构
框架结构
装修风格
现代
装修方式
半包
装修造价
查看请联系客服万元
设计师
雷蕾
项目经理
谢工
装修公司
格堂装饰
完工实景
完工实景
水电全景
水电全景
VR全景
VR全景
设计说明
我们极度满足,实现人最大化的所有需求,追求最舒适最便捷和最精美。但同时在崭新的生活中,慢慢丢失了对环境的眷恋和最自然的的感知能力。所以,我们总是在尝试找回点什么。
更多信息
更多信息
本帖最后由 格堂艳子 于 2024-12-14 15:10 编辑

效果图

IMG_5335(20240521-151934).JPG

IMG_5336(20240521-151940).JPG

IMG_5338(20240521-151951).JPG

IMG_5337(20240521-151946).JPG
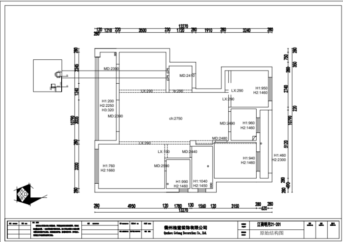
原始结构图
IMG_5340.PNG

平面布置图
IMG_5339.PNG


目      录



回复

使用道具 举报

 楼主| 发表于 2024-5-21 15:36:57 | 显示全部楼层
开工前

IMG_5099(1).JPG

IMG_5103(1).JPG
回复 支持 反对

使用道具 举报

 楼主| 发表于 2024-5-21 15:38:53 | 显示全部楼层
卧室
IMG_5102(1).JPG

IMG_5098(1).JPG


IMG_5104(1).JPG



IMG_5097(1).JPG


回复 支持 反对

使用道具 举报

 楼主| 发表于 2024-5-21 15:42:11 | 显示全部楼层
电梯口墙面和地面都贴好了格堂专用的保护垫。

IMG_5085.JPG

IMG_5086.JPG

IMG_5087.JPG

IMG_5088(1).JPG

IMG_5089(1).JPG
回复 支持 反对

使用道具 举报

 楼主| 发表于 2024-5-21 15:42:45 | 显示全部楼层
电梯对角

IMG_5090(1).JPG

IMG_5091(1).JPG

IMG_5092(1).JPG

IMG_5093(1).JPG

IMG_5094(1).JPG
回复 支持 反对

使用道具 举报

 楼主| 发表于 2024-5-21 15:43:21 | 显示全部楼层
开工前大门已保护到位,防止磕碰


IMG_5095(1).JPG

IMG_5096(1).JPG
回复 支持 反对

使用道具 举报

 楼主| 发表于 2024-5-21 15:43:45 | 显示全部楼层
临时马桶:每一个施工现场都会配备临时小便斗,并且时刻保持干净卫生、保证工地环境干净、整洁。

IMG_5106(1).JPG
回复 支持 反对

使用道具 举报

 楼主| 发表于 2024-5-21 15:44:35 | 显示全部楼层
燃气表已保护到位

IMG_5114(1).JPG
回复 支持 反对

使用道具 举报

 楼主| 发表于 2024-5-21 15:45:01 | 显示全部楼层
排水管道用格堂装饰专用保护盖保护,防止后期施工砂石堵塞管道

IMG_5115(1).JPG
回复 支持 反对

使用道具 举报

 楼主| 发表于 2024-5-21 15:45:43 | 显示全部楼层
送给业主美丽的鲜花

IMG_5109(1).JPG

IMG_5112(1).JPG

IMG_5113(1).JPG
回复 支持 反对

使用道具 举报

您需要登录后才可以回帖 登录 | 立即注册

本版积分规则

全国统一客服电话
0570-8028505

24x7小时免费咨询

  • 官方在线客服

    QQ客服:小西

    点击交谈

    QQ客服:良子

    点击交谈

    QQ客服:闵月

    点击交谈
  • 衢州市柯城区财富中心3号楼2楼

  • 衢州格堂装饰有限公司

  • 扫一扫关注官方微信

    获取一手特惠信息

快速回复 返回顶部 返回列表