• 手机版

    扫码体验手机版

  • 微信公众号

    扫码关注公众号

登录注册
游客您好
第三方账号登陆

[衢州] 兴华西苑3-2-4#97㎡现代——兴华温韵

[复制链接]
发表于 2024-5-3 14:33:15 | 显示全部楼层 |阅读模式
兴华西苑3-2-4#97㎡现代——兴华温韵

格堂装饰为您全程记录装修全过程!

小区名称
兴华西苑
房屋面积
97㎡
户型结构
套房
装修风格
现代
装修方式
半包
装修造价
查看请联系客服万元
设计师
苏工
项目经理
杨工
装修公司
格堂装饰
完工实景
完工实景
水电全景
水电全景
VR全景
VR全景
设计说明
设计上采用了明亮的空间色调,柔和的线条运用让空间感更加舒适,大面积留白墙面温润的木色运用让整体表达凸显温馨,肤感的软装搭配更能让客户体会到家的温暖
更多信息
本帖最后由 格堂黄姐 于 2024-5-14 17:01 编辑

效果图

mmexport1715676156449.png

mmexport1715676161253.png

mmexport1715676165729.png
回复

使用道具 举报

 楼主| 发表于 2024-5-3 14:34:55 | 显示全部楼层
本帖最后由 格堂黄姐 于 2024-10-21 22:43 编辑

目      录


回复 支持 反对

使用道具 举报

 楼主| 发表于 2024-5-3 14:35:24 | 显示全部楼层
本帖最后由 格堂黄姐 于 2024-5-14 16:57 编辑

原始结构图
mmexport1715676375121.jpg

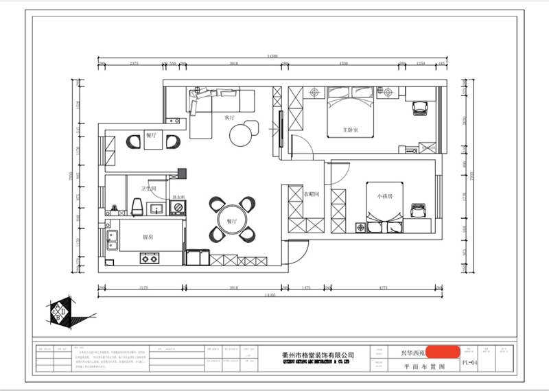
平面布置图

mmexport1715676378225.jpg
回复 支持 反对

使用道具 举报

 楼主| 发表于 2024-5-3 14:37:15 | 显示全部楼层
本帖最后由 格堂黄姐 于 2024-9-8 21:12 编辑

大门已经保护到位。
mmexport1714714643476.jpg
煤气表已经保护到位。
mmexport1714714656568.jpg

临时小便池已经安放好了:每一个施工现场都会配备临时小便斗,并且时刻保持干净卫生,保证工地环境干净整洁。
排水管道用格堂专用保护盖保护,防止后期施工中砂石 堵塞管道
mmexport1714714670252.jpg

mmexport1714714679759.jpg

回复 支持 反对

使用道具 举报

 楼主| 发表于 2024-5-3 14:39:00 | 显示全部楼层
开工仪式准备,开工横幅、鲜花、礼花准备到位,就等吉时!
mmexport1714714588189.jpg



吉时到开工了,恭祝业主大人开工大吉!
mmexport1714714613182.jpg

开工第一锤,由业主敲在要拆除的墙体的墙角上,象征一锤定音,也代表着新房动土。
mmexport1714714724038.jpg

敲的痕迹
mmexport1714714732985.jpg


回复 支持 反对

使用道具 举报

 楼主| 发表于 2024-5-3 14:40:21 | 显示全部楼层
设计师和项目经理正在按图纸拆改放样,确保放样无误。
mmexport1714714698580.jpg

mmexport1714714704954.jpg

回复 支持 反对

使用道具 举报

 楼主| 发表于 2024-5-13 15:58:54 | 显示全部楼层
本帖最后由 格堂黄姐 于 2024-9-8 21:13 编辑

拆改砌墙阶段
房间铲灰,是为了防止墙顶面出现空鼓,在做好油漆后不会有墙顶面整块油漆脱落的现象。
拆除可以让空间利用更合理。为了整体结构的稳定性和安全性,承重墙是一定不能动的。
mmexport1715573221307.jpg

mmexport1715573224209.jpg

mmexport1715573226981.jpg

mmexport1715573229772.jpg

mmexport1715573232370.jpg

回复 支持 反对

使用道具 举报

 楼主| 发表于 2024-5-18 14:23:50 | 显示全部楼层
餐客厅

IMG_20240518_081503.jpg

IMG_20240518_081504.jpg

IMG_20240518_081507.jpg

IMG_20240518_081509.jpg

IMG_20240518_081512.jpg
回复 支持 反对

使用道具 举报

 楼主| 发表于 2024-5-18 14:24:17 | 显示全部楼层
对角

IMG_20240518_081521.jpg

IMG_20240518_081523.jpg

IMG_20240518_081526.jpg

IMG_20240518_081529.jpg

IMG_20240518_081531.jpg
回复 支持 反对

使用道具 举报

 楼主| 发表于 2024-5-18 14:24:42 | 显示全部楼层
厨房

IMG_20240518_081715.jpg

IMG_20240518_081717.jpg

IMG_20240518_081720.jpg

IMG_20240518_081722.jpg

IMG_20240518_081725.jpg
回复 支持 反对

使用道具 举报

您需要登录后才可以回帖 登录 | 立即注册

本版积分规则

全国统一客服电话
0570-8028505

24x7小时免费咨询

  • 官方在线客服

    QQ客服:小西

    点击交谈

    QQ客服:良子

    点击交谈

    QQ客服:闵月

    点击交谈
  • 衢州市柯城区财富中心3号楼2楼

  • 衢州格堂装饰有限公司

  • 扫一扫关注官方微信

    获取一手特惠信息

快速回复 返回顶部 返回列表