• 手机版

    扫码体验手机版

  • 微信公众号

    扫码关注公众号

登录注册
游客您好
第三方账号登陆

[衢州] 观棠府29-3-4#201㎡新中式——雅韵东方

[复制链接]
发表于 2024-4-29 11:14:03 | 显示全部楼层 |阅读模式
观棠府29-3-4#201㎡新中式——雅韵东方

格堂装饰为您全程记录装修全过程!

小区名称
观棠府
房屋面积
201㎡
户型结构
叠排
装修风格
新中式
装修方式
全案
装修造价
查看请联系客服万元
设计师
徐工
项目经理
刘工
装修公司
格堂装饰
完工实景
完工实景
水电全景
水电全景
VR全景
VR全景
设计说明
在探寻生活之美的道路上,我们始终追寻着那份既传统又现代,既简约又精致的韵味。新中式美学正是这样一种融合了中华传统美学与现代设计理念的家居风格。它以其独特的魅力,让我们在现代生活的喧嚣中,找寻一片宁静与和谐。
更多信息
本帖最后由 格堂王姐 于 2024-7-28 18:08 编辑

效果图
QQ浏览器截图20240728171825.png


QQ浏览器截图20240728171934.png


微信图片_20240728172155.jpg


微信图片_20240728172208.jpg


微信图片_20240728172212.jpg


回复

使用道具 举报

 楼主| 发表于 2024-5-7 11:31:19 | 显示全部楼层
本帖最后由 格堂王姐 于 2024-9-21 09:29 编辑



回复 支持 反对

使用道具 举报

 楼主| 发表于 2024-5-7 11:31:49 | 显示全部楼层
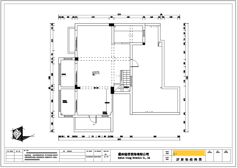
本帖最后由 格堂王姐 于 2024-7-28 18:04 编辑

原始结构图
微信图片_20240728175522_副本.png

微信图片_20240728175539_副本.png

平面布置图
微信图片_20240728175542.png

微信图片_20240728175545.png

回复 支持 反对

使用道具 举报

 楼主| 发表于 2024-5-7 11:33:11 | 显示全部楼层
开工仪式准备,开工横幅、鲜花、礼花准备到位,就等吉时!
开工桌摆好准备
微信图片_20240425103746.jpg

吉时到开工了,恭祝业主大人开工大吉!
仪式很短暂,家居装修却很长……与漫漫人生历程相比,这些短短一瞬,却包含了满满的心意。
我们竭力用自己的专业技能,让每位业主拥有最接近梦想的家!恭祝开工大吉!
开工合影
微信图片_20240425103828.jpg

开工第一锤,由业主敲在要拆除的墙体的墙角(即拐角)上,象征一锤定音的意思,也是新房动土的一种表示方式
业主敲下第一锤
微信图片_20240425103753.jpg

敲完的痕迹
微信图片_20240425103750.jpg

回复 支持 反对

使用道具 举报

 楼主| 发表于 2024-5-7 11:34:48 | 显示全部楼层
大门已经保护到位。
IMG_20240426_112540.jpg

煤气表已经保护到位。
IMG_20240426_112743.jpg

临时小便池已经安放好了:每一个施工现场都会配备临时小便斗,并且时刻保持干净卫生,保证工地环境干净整洁。
IMG_20240426_112734.jpg

排水管道用格堂专用保护盖保护,防止后期施工中砂石堵塞管道
IMG_20240426_112811.jpg

回复 支持 反对

使用道具 举报

 楼主| 发表于 2024-5-7 11:35:20 | 显示全部楼层
电梯口墙面和地面都贴好了格堂专用的保护垫。
IMG_20240426_112543.jpg


IMG_20240426_112546.jpg


IMG_20240426_112556.jpg


IMG_20240426_112600.jpg


IMG_20240426_112602.jpg

回复 支持 反对

使用道具 举报

 楼主| 发表于 2024-5-7 11:35:44 | 显示全部楼层
IMG_20240426_112607.jpg



IMG_20240426_112608.jpg


IMG_20240426_112611.jpg


IMG_20240426_112612.jpg


IMG_20240426_112615.jpg
回复 支持 反对

使用道具 举报

 楼主| 发表于 2024-5-7 11:37:50 | 显示全部楼层
拆改阶段:
房间铲灰,是为了防止墙顶面出现空鼓,在做好油漆后不会有墙顶面整块油漆脱落的现象。
拆除可以让空间利用更合理。为了整体结构的稳定性和安全性,承重墙是一定不能动的。
微信图片_20240428103505.jpg


微信图片_20240428103514.jpg


微信图片_20240428103518.jpg


微信图片_20240428103522.jpg


微信图片_20240428103525.jpg

回复 支持 反对

使用道具 举报

 楼主| 发表于 2024-5-7 11:38:13 | 显示全部楼层
微信图片_20240428103529.jpg



微信图片_20240428103532.jpg


微信图片_20240428103548.jpg


微信图片_20240507112548.jpg


微信图片_20240507112559.jpg
回复 支持 反对

使用道具 举报

 楼主| 发表于 2024-5-7 11:38:37 | 显示全部楼层
微信图片_20240507112602.jpg



微信图片_20240507112605.jpg


微信图片_20240507112609.jpg


微信图片_20240507112612.jpg


微信图片_20240507112615.jpg
回复 支持 反对

使用道具 举报

您需要登录后才可以回帖 登录 | 立即注册

本版积分规则

全国统一客服电话
0570-8028505

24x7小时免费咨询

  • 官方在线客服

    QQ客服:小西

    点击交谈

    QQ客服:良子

    点击交谈

    QQ客服:闵月

    点击交谈
  • 衢州市柯城区财富中心3号楼2楼

  • 衢州格堂装饰有限公司

  • 扫一扫关注官方微信

    获取一手特惠信息

快速回复 返回顶部 返回列表