• 手机版

    扫码体验手机版

  • 微信公众号

    扫码关注公众号

登录注册
游客您好
第三方账号登陆

[常山] 常山百悦城18-2-3#117㎡现代——浅心素居,无界逸景

[复制链接]
发表于 2024-4-28 15:01:08 | 显示全部楼层 |阅读模式
常山百悦城18-2-3#117㎡现代——浅心素居,无界逸景

格堂装饰为您全程记录装修全过程!

小区名称
百悦城
房屋面积
117㎡
户型结构
套房
装修风格
现代
装修方式
半包
装修造价
查看请联系客服万元
设计师
江工
项目经理
施工
装修公司
格堂装饰
完工实景
完工实景
水电全景
水电全景
VR全景
VR全景
设计说明
空间摒去大多装饰之物,令自然在其中悄然演绎,与平静有序的时光一同温存出风雅韵味,与自然相逢,更与安宁的自我相遇。
更多信息
效果图

50f40535ba823622c4eeb1ed0bfa05f.jpg

d8e806377de85553a1e68b4df5b7502.jpg
回复

使用道具 举报

 楼主| 发表于 2024-4-28 15:01:45 | 显示全部楼层
回复 支持 反对

使用道具 举报

 楼主| 发表于 2024-4-28 15:02:07 | 显示全部楼层
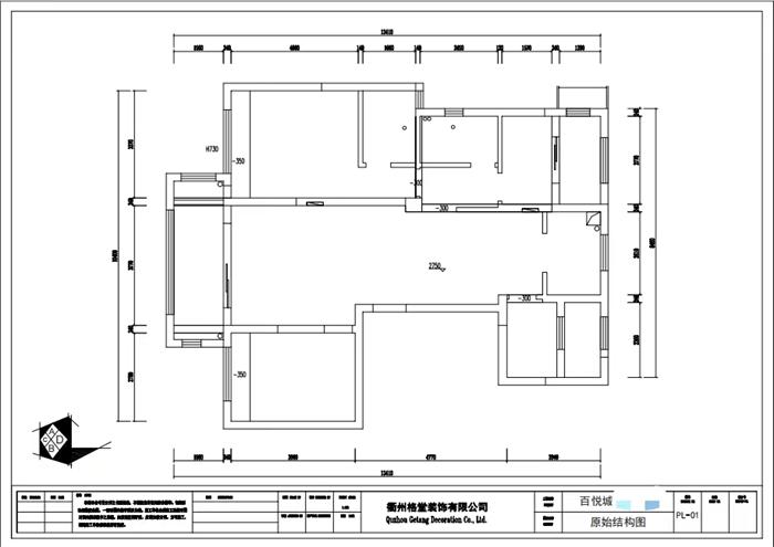
原始结构图

bda110347fec1198b8cde90c66d4dde.jpg
回复 支持 反对

使用道具 举报

 楼主| 发表于 2024-4-28 15:02:24 | 显示全部楼层
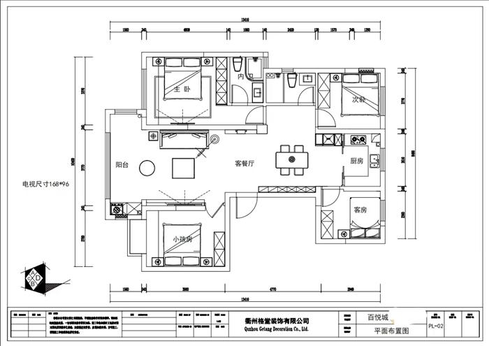
平面布置图

04c0e531ef4decf62ea0ac99a25a17c.jpg
回复 支持 反对

使用道具 举报

 楼主| 发表于 2024-4-28 15:09:14 | 显示全部楼层
开工咯,仪式准备好

a635c28bd7784092ffd7a46b0a4f788.jpg

45a8ecf20db36b1477f7ee1fb569f40.jpg
回复 支持 反对

使用道具 举报

 楼主| 发表于 2024-4-28 15:09:38 | 显示全部楼层
鲜花礼炮准备好

8798c5532703fa727b7877dcaf8d940.jpg

35d5911486f208dfb081b53df5a6454.jpg
回复 支持 反对

使用道具 举报

 楼主| 发表于 2024-4-28 15:10:05 | 显示全部楼层
吉时到,恭祝业主开工大吉!

3c6394c6d9c85ee73b638fcaf1902d7.jpg
回复 支持 反对

使用道具 举报

 楼主| 发表于 2024-4-28 15:11:35 | 显示全部楼层
开工第一锤,由业主敲在要拆除的墙体的墙角(即拐角)上,象征一锤定音的意思,也是新房动土的一种表示方式

f10bab1dc3ad6826d709b9e86714892.jpg

390548e7d033639be19795fcebdd701.jpg
回复 支持 反对

使用道具 举报

 楼主| 发表于 2024-4-28 15:13:00 | 显示全部楼层
大门保护好,防止后期磕碰

69d2e558aa4bc445ee6773b175656f6.jpg
回复 支持 反对

使用道具 举报

 楼主| 发表于 2024-4-28 15:13:21 | 显示全部楼层
门槛也要保护好

61a44138a69aba4908bbedfb44e6554.jpg
回复 支持 反对

使用道具 举报

您需要登录后才可以回帖 登录 | 立即注册

本版积分规则

全国统一客服电话
0570-8028505

24x7小时免费咨询

  • 官方在线客服

    QQ客服:小西

    点击交谈

    QQ客服:良子

    点击交谈

    QQ客服:闵月

    点击交谈
  • 衢州市柯城区财富中心3号楼2楼

  • 衢州格堂装饰有限公司

  • 扫一扫关注官方微信

    获取一手特惠信息

快速回复 返回顶部 返回列表