• 手机版

    扫码体验手机版

  • 微信公众号

    扫码关注公众号

登录注册
游客您好
第三方账号登陆

[衢州] 望潮府14-#320㎡现代

[复制链接]
发表于 2024-3-31 21:27:03 | 显示全部楼层 |阅读模式
望潮府14-#320㎡现代

格堂装饰为您全程记录装修全过程!

小区名称
望潮府
房屋面积
320㎡
户型结构
排屋
装修风格
现代
装修方式
半包
装修造价
查看请联系客服万元
设计师
王工
项目经理
周工
装修公司
格堂装饰
完工实景
完工实景
水电全景
水电全景
VR全景
VR全景
设计说明
简洁,实用 追求空间之间的关系,没有过多复杂的装饰,强调简洁的造型,温暖的色彩来营造美观大方的空间效果
更多信息
本帖最后由 格堂黄姐 于 2024-11-2 21:09 编辑

效果图

mmexport1717816307966.jpg

mmexport1717816310573.jpg

mmexport1717816313497.jpg

mmexport1717816316783.jpg

mmexport1717816319803.jpg

mmexport1717816322711.jpg

mmexport1717816325763.jpg
回复

使用道具 举报

 楼主| 发表于 2024-3-31 21:27:55 | 显示全部楼层
回复 支持 反对

使用道具 举报

 楼主| 发表于 2024-3-31 21:32:04 | 显示全部楼层
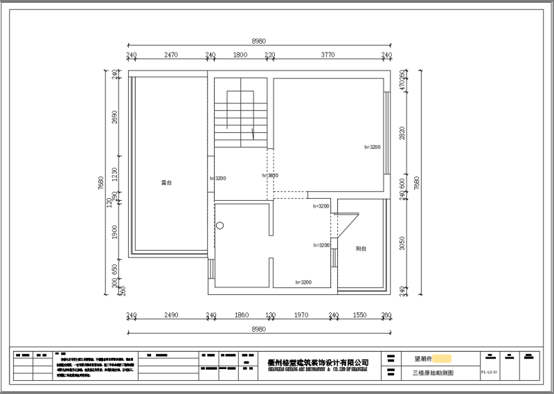
本帖最后由 格堂黄姐 于 2024-6-8 11:31 编辑

原始结构图
mmexport1717816281178.png

mmexport1717816284791.png

mmexport1717816287661.png

mmexport1717816290468.png
回复 支持 反对

使用道具 举报

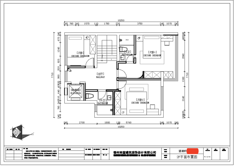
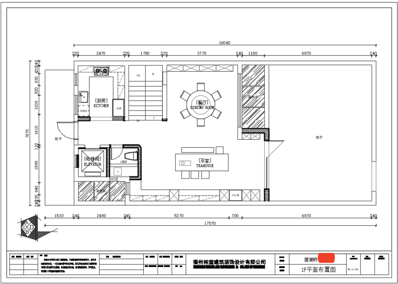
 楼主| 发表于 2024-4-2 10:21:13 | 显示全部楼层
本帖最后由 格堂黄姐 于 2024-6-8 11:31 编辑

平面布置图

mmexport1717816293159.png

mmexport1717816295981.png

mmexport1717816298755.png

mmexport1717816301629.png

mmexport1717816304699.png
回复 支持 反对

使用道具 举报

 楼主| 发表于 2024-4-2 10:22:48 | 显示全部楼层
本帖最后由 格堂黄姐 于 2024-9-12 15:35 编辑

大门已经保护到位。
IMG_20240401_140720.jpg

煤气表已经保护到位。
IMG_20240401_142913.jpg

临时小便池已经安放好了:每一个施工现场都会配备临时小便斗,并且时刻保持干净卫生,保证工地环境干净整洁。
IMG_20240401_142950.jpg

排水管道用格堂专用保护盖保护,防止后期施工中砂石 堵塞管道
IMG_20240401_142936.jpg

IMG_20240401_143236.jpg

回复 支持 反对

使用道具 举报

 楼主| 发表于 2024-4-2 10:24:13 | 显示全部楼层
本帖最后由 格堂黄姐 于 2024-4-2 10:32 编辑

开工仪式准备,开工横幅、鲜花、礼花准备到位,就等吉时!
mmexport1711889925452.jpg

吉时到开工了,恭祝业主大人开工大吉!
mmexport1711889932194.jpg

开工第一锤,由业主敲在要拆除的墙体的墙角上,象征一锤定音,也代表着新房动土
mmexport1711889935657.jpg

敲的痕迹
IMG_20240401_142907.jpg

回复 支持 反对

使用道具 举报

 楼主| 发表于 2024-4-2 10:34:31 | 显示全部楼层
设计师和项目经理正在按图纸拆改放样,确保放样无误。
IMG_20240401_142954.jpg

IMG_20240401_143008.jpg

IMG_20240401_143017.jpg

IMG_20240401_143038.jpg

IMG_20240401_143139.jpg

IMG_20240401_143133.jpg

IMG_20240401_143247.jpg

IMG_20240401_143258.jpg

IMG_20240401_143305.jpg

IMG_20240401_143322.jpg

IMG_20240401_143340.jpg

IMG_20240401_143345.jpg

IMG_20240401_143354.jpg

IMG_20240401_143400.jpg

IMG_20240401_143404.jpg





回复 支持 反对

使用道具 举报

 楼主| 发表于 2024-4-17 15:47:26 | 显示全部楼层
本帖最后由 格堂黄姐 于 2024-9-12 15:36 编辑

拆改阶段

IMG_20240417_110531.jpg

IMG_20240417_110533.jpg

IMG_20240417_110629.jpg

IMG_20240417_110643.jpg

IMG_20240417_110707.jpg

IMG_20240417_110738.jpg
回复 支持 反对

使用道具 举报

 楼主| 发表于 2024-4-17 15:48:57 | 显示全部楼层
IMG_20240417_110805.jpg


IMG_20240417_110807.jpg

IMG_20240417_110810.jpg

IMG_20240417_110812.jpg

IMG_20240417_110813.jpg

IMG_20240417_110940.jpg

IMG_20240417_110942.jpg

IMG_20240417_111008.jpg

IMG_20240417_111009.jpg

IMG_20240417_111011.jpg
回复 支持 反对

使用道具 举报

 楼主| 发表于 2024-4-17 15:49:54 | 显示全部楼层
IMG_20240417_111047.jpg

IMG_20240417_111046.jpg

IMG_20240417_111045.jpg

IMG_20240417_111043.jpg

IMG_20240417_111042.jpg

IMG_20240417_111024.jpg

IMG_20240417_111023.jpg

IMG_20240417_111022.jpg

IMG_20240417_111020.jpg

IMG_20240417_111019.jpg
回复 支持 反对

使用道具 举报

您需要登录后才可以回帖 登录 | 立即注册

本版积分规则

全国统一客服电话
0570-8028505

24x7小时免费咨询

  • 官方在线客服

    QQ客服:小西

    点击交谈

    QQ客服:良子

    点击交谈

    QQ客服:闵月

    点击交谈
  • 衢州市柯城区财富中心3号楼2楼

  • 衢州格堂装饰有限公司

  • 扫一扫关注官方微信

    获取一手特惠信息

快速回复 返回顶部 返回列表