• 手机版

    扫码体验手机版

  • 微信公众号

    扫码关注公众号

登录注册
游客您好
第三方账号登陆

[衢州] 星月宸庐12-2-8#125㎡现代——纯净致知,精而内雅

[复制链接]
发表于 2024-3-24 11:07:50 | 显示全部楼层 |阅读模式
星月宸庐12-2-8#125㎡现代——

格堂装饰为您全程记录装修全过程!

小区名称
星月宸庐
房屋面积
125㎡
户型结构
套房
装修风格
现代
装修方式
半包
装修造价
查看请联系客服万元
设计师
詹工
项目经理
杨工
装修公司
格堂装饰
完工实景
完工实景
水电全景
水电全景
VR全景
VR全景
设计说明
这个设计旨在通过现代而简洁的设计语言,营造出一个既实用又富有内涵的室内环境。
我们希望这个设计能够为居住者提供一个既能放松休息,又能思考创新的空间,让他们在
忙碌的生活中找到一片宁静和舒适的天地。
更多信息
本帖最后由 格堂王姐 于 2024-3-26 08:54 编辑

效果图

微信图片_20240326085001.jpg


微信图片_20240326084955.jpg


微信图片_20240326084945.jpg


微信图片_20240326085025.jpg


微信图片_20240326085047.jpg
回复

使用道具 举报

 楼主| 发表于 2024-3-24 11:16:34 | 显示全部楼层
本帖最后由 格堂王姐 于 2024-4-7 09:43 编辑

目      录

1开工9
2拆改10
3砌墙11
4水电材料12
5水电中途13
6水电完工14
7


8



回复 支持 反对

使用道具 举报

 楼主| 发表于 2024-3-24 11:17:15 | 显示全部楼层
本帖最后由 格堂王姐 于 2024-3-26 08:56 编辑

原始结构图
QQ浏览器截图20240326084820.png

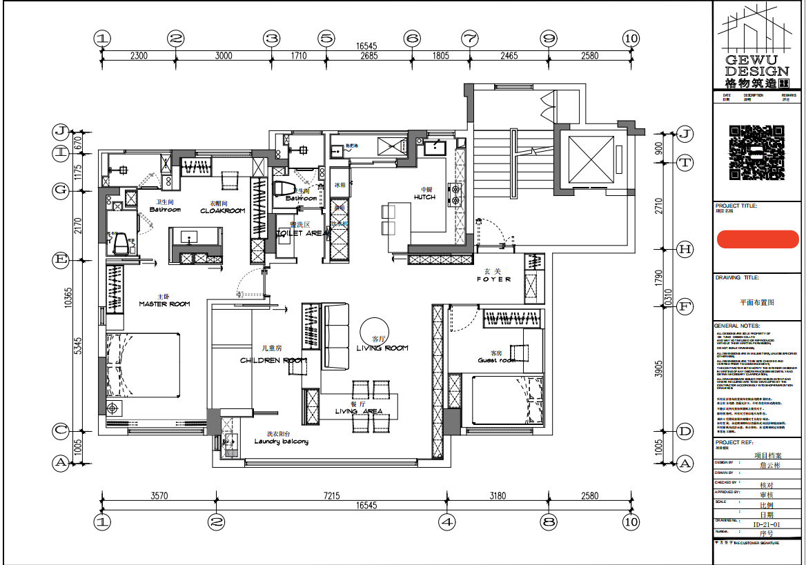
平面布置图
QQ浏览器截图20240326084740.png

回复 支持 反对

使用道具 举报

 楼主| 发表于 2024-3-24 11:17:51 | 显示全部楼层
本帖最后由 格堂王姐 于 2024-3-24 11:20 编辑

大门已经保护到位。
微信图片_20240308084905.jpg

煤气表已经保护到位。
IMG_20240311_161959.jpg

临时小便池已经安放好了:每一个施工现场都会配备临时小便斗,并且时刻保持干净卫生,保证工地环境干净整洁。
IMG_20240311_162026.jpg

排水管道用格堂专用保护盖保护,防止后期施工中砂石 堵塞管道
IMG_20240311_162009.jpg

回复 支持 反对

使用道具 举报

 楼主| 发表于 2024-3-24 11:18:07 | 显示全部楼层
本帖最后由 格堂王姐 于 2024-3-24 11:26 编辑

开工仪式准备,开工横幅、鲜花、礼花准备到位,就等吉时!
开工桌摆好准备
微信图片_20240308084947.jpg

吉时到开工了,恭祝业主大人开工大吉!
仪式很短暂,家居装修却很长……与漫漫人生历程相比,这些短短一瞬,却包含了满满的心意。
我们竭力用自己的专业技能,让每位业主拥有最接近梦想的家!恭祝开工大吉!
开工合影
微信图片_20240308085323.jpg


开工第一锤,由业主敲在要拆除的墙体的墙角(即拐角)上,象征一锤定音的意思,也是新房动土的一种表示方式
业主敲下第一锤
微信图片_20240308085319.jpg


敲完的痕迹
微信图片_20240308085024.jpg

回复 支持 反对

使用道具 举报

 楼主| 发表于 2024-3-24 11:18:18 | 显示全部楼层
本帖最后由 格堂王姐 于 2024-3-24 11:26 编辑

电梯口墙面和地面都贴好了格堂专用的保护垫。
IMG_20240311_161709.jpg


IMG_20240311_161712.jpg


IMG_20240311_161714.jpg


IMG_20240311_161716.jpg


IMG_20240311_161718.jpg


IMG_20240311_161727.jpg
回复 支持 反对

使用道具 举报

 楼主| 发表于 2024-3-24 11:27:40 | 显示全部楼层
拆改阶段:
房间铲灰,是为了防止墙顶面出现空鼓,在做好油漆后不会有墙顶面整块油漆脱落的现象。
拆除可以让空间利用更合理。为了整体结构的稳定性和安全性,承重墙是一定不能动的。
微信图片_20240308085113.jpg


微信图片_20240308085121.jpg


微信图片_20240308085137.jpg


微信图片_20240308085146.jpg


回复 支持 反对

使用道具 举报

 楼主| 发表于 2024-3-24 11:27:57 | 显示全部楼层
微信图片_20240308085151.jpg



微信图片_20240308085155.jpg


微信图片_20240308085159.jpg


微信图片_20240308085206.jpg
回复 支持 反对

使用道具 举报

 楼主| 发表于 2024-3-24 11:31:03 | 显示全部楼层
微信图片_20240308085210.jpg



微信图片_20240308085212.jpg


微信图片_20240308085223.jpg


微信图片_20240308085230.jpg


微信图片_20240308085233.jpg
回复 支持 反对

使用道具 举报

 楼主| 发表于 2024-3-24 11:32:01 | 显示全部楼层
IMG_20240311_162041.jpg



IMG_20240311_162045.jpg


IMG_20240311_162047.jpg


IMG_20240311_162050.jpg


IMG_20240311_162053.jpg
回复 支持 反对

使用道具 举报

您需要登录后才可以回帖 登录 | 立即注册

本版积分规则

全国统一客服电话
0570-8028505

24x7小时免费咨询

  • 官方在线客服

    QQ客服:小西

    点击交谈

    QQ客服:良子

    点击交谈

    QQ客服:闵月

    点击交谈
  • 衢州市柯城区财富中心3号楼2楼

  • 衢州格堂装饰有限公司

  • 扫一扫关注官方微信

    获取一手特惠信息

快速回复 返回顶部 返回列表