望潮府9-3-3#100㎡原木风——【阳光小宅】 |
|
望潮府9-3-3#100㎡原木风——【阳光小宅】
格堂装饰实景完工案例欣赏!
设计说明
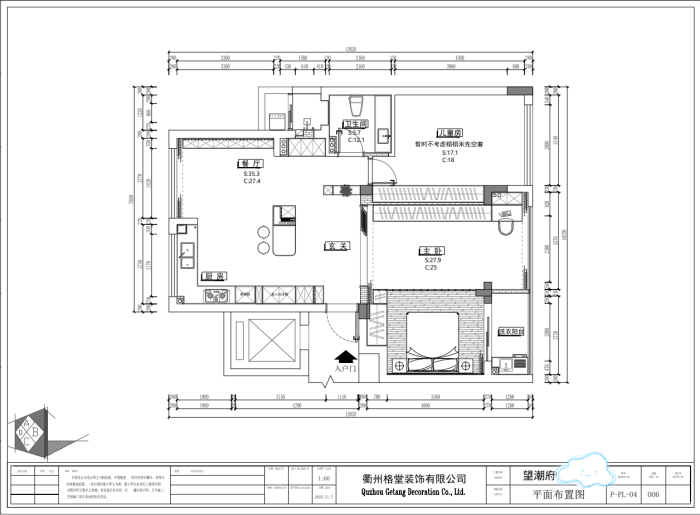
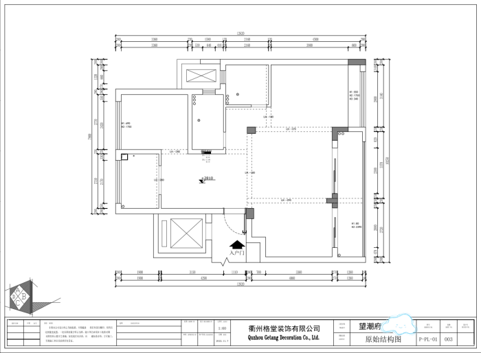
本案是一套100平米的三居室的房子,由于屋主的要求,改成了两个房间,而且还做了去客厅设计,屋主一家三口居住,原本的两卫也改成了一卫,足够满足使用需求。
木作采用了原木加乳白色的色调,没有过多的墙面装饰,以柜子和移门隔断的形式进行了区域的划分,主卧床的位置也做了抬高,每个空间都素雅,自然…… 更多信息
| |
|
格堂装饰网www.gtzs.com首创衢城(甚至全国)装修全新模式,为您记录装修全过程,有专门客服为您记录装修全过程传到格堂公司内部网站!
|
|
| |
|
格堂装饰网www.gtzs.com首创衢城(甚至全国)装修全新模式,为您记录装修全过程,有专门客服为您记录装修全过程传到格堂公司内部网站!
|
|
| |
|
格堂装饰网www.gtzs.com首创衢城(甚至全国)装修全新模式,为您记录装修全过程,有专门客服为您记录装修全过程传到格堂公司内部网站!
|
|
| |
|
格堂装饰网www.gtzs.com首创衢城(甚至全国)装修全新模式,为您记录装修全过程,有专门客服为您记录装修全过程传到格堂公司内部网站!
|
|
| |
|
格堂装饰网www.gtzs.com首创衢城(甚至全国)装修全新模式,为您记录装修全过程,有专门客服为您记录装修全过程传到格堂公司内部网站!
|
|
| |
|
格堂装饰网www.gtzs.com首创衢城(甚至全国)装修全新模式,为您记录装修全过程,有专门客服为您记录装修全过程传到格堂公司内部网站!
|
|
| |
|
格堂装饰网www.gtzs.com首创衢城(甚至全国)装修全新模式,为您记录装修全过程,有专门客服为您记录装修全过程传到格堂公司内部网站!
|
|


在线客服
微信客服
关注有礼