• 手机版

    扫码体验手机版

  • 微信公众号

    扫码关注公众号

登录注册
游客您好
第三方账号登陆

[衢州] 国风澜园15-2-20#150㎡现代——理想之所

[复制链接]
发表于 2024-2-28 14:06:18 | 显示全部楼层 |阅读模式
国风澜园15-2-20#150㎡现代——理想之所

格堂装饰为您全程记录装修全过程!

小区名称
国风澜园
房屋面积
150㎡
户型结构
套房
装修风格
现代
装修方式
半包
装修造价
查看请联系客服万元
设计师
郑工
项目经理
周工
装修公司
格堂装饰
完工实景
完工实景
水电全景
水电全景
VR全景
VR全景
设计说明
纯净,是自然状态下赋予的氛围,它承载一切,包容万物。当我们将纯净之态引入空间,以一种有序的路径破开空间的局限,便形成一种凝固的美感。它附着于简单的几何形状,或是冷态的墙面材质,当我们驻足于此,真切感受着静谧而又内省的力量。
更多信息
本帖最后由 格堂黄姐 于 2024-3-31 21:44 编辑

效果图
mmexport1709087209158.jpg

mmexport1709087215149.jpg

617015cf08afd9cb761f4f3fb423449.jpg

mmexport1709087220258.jpg

回复

使用道具 举报

 楼主| 发表于 2024-2-28 14:08:26 | 显示全部楼层
回复 支持 反对

使用道具 举报

 楼主| 发表于 2024-2-28 14:10:15 | 显示全部楼层
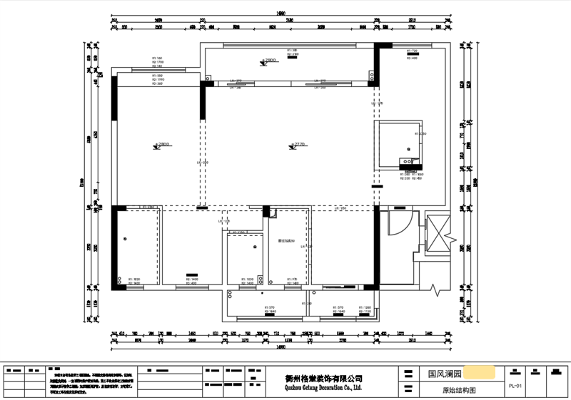
原始结构图
mmexport1709087027703.png

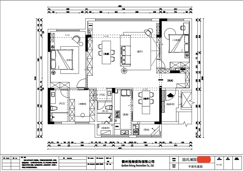
平面结构图
mmexport1709087036962.png
回复 支持 反对

使用道具 举报

 楼主| 发表于 2024-2-28 14:14:39 | 显示全部楼层
本帖最后由 格堂黄姐 于 2024-3-2 16:03 编辑

开工前,门槛
IMG_20240302_133832.jpg


大门已保护到位
IMG_20240302_133835.jpg

煤气表已经保护到位。
IMG_20240228_084710.jpg

临时小便池已经安放好了:每一个施工现场都会配备临时小便斗,并且时刻保持干净卫生,保证工地环境干净整洁。
IMG_20240228_084523.jpg

排水管道用格堂专用保护盖保护,防止后期施工中砂石 堵塞管道
IMG_20240228_084500.jpg

IMG_20240228_084525.jpg

IMG_20240228_084542.jpg

IMG_20240228_084545.jpg


回复 支持 反对

使用道具 举报

 楼主| 发表于 2024-2-28 14:17:30 | 显示全部楼层
本帖最后由 格堂黄姐 于 2024-10-20 13:20 编辑

开工仪式准备,开工横幅、鲜花、礼花准备到位,就等吉时!
IMG_20240228_084416.jpg

吉时到开工了,恭祝业主大人开工大吉!
IMG_20240228_085757.jpg

开工第一锤,由业主敲在要拆除的墙体的墙角上,象征一锤定音,也代表着新房动土。
IMG_20240228_085836.jpg

敲的痕迹
IMG_20240228_085859.jpg


回复 支持 反对

使用道具 举报

 楼主| 发表于 2024-2-28 14:19:18 | 显示全部楼层
设计师和项目经理正在按图纸拆改放样,确保放样无误。
IMG_20240228_084612.jpg

IMG_20240228_084723.jpg

IMG_20240228_084737.jpg

IMG_20240228_084759.jpg

IMG_20240228_084812.jpg
回复 支持 反对

使用道具 举报

 楼主| 发表于 2024-2-28 14:20:17 | 显示全部楼层
IMG_20240228_084825.jpg


IMG_20240228_084842.jpg

IMG_20240228_084910.jpg

IMG_20240228_084932.jpg

IMG_20240228_085006.jpg
回复 支持 反对

使用道具 举报

 楼主| 发表于 2024-2-28 14:21:03 | 显示全部楼层
IMG_20240228_085139.jpg


IMG_20240228_085306.jpg

IMG_20240228_085309.jpg

IMG_20240228_085421.jpg

IMG_20240228_085434.jpg

IMG_20240228_085543.jpg
回复 支持 反对

使用道具 举报

 楼主| 发表于 2024-3-2 16:05:31 | 显示全部楼层
开工前,电梯口墙面和地面已经保护到位。
IMG_20240302_133925.jpg

IMG_20240302_133926.jpg

IMG_20240302_133929.jpg

IMG_20240302_133931.jpg

IMG_20240302_133933.jpg

回复 支持 反对

使用道具 举报

 楼主| 发表于 2024-3-2 16:06:12 | 显示全部楼层
对角
IMG_20240302_133940.jpg

IMG_20240302_133942.jpg

IMG_20240302_133944.jpg

IMG_20240302_133946.jpg

IMG_20240302_133955.jpg
回复 支持 反对

使用道具 举报

您需要登录后才可以回帖 登录 | 立即注册

本版积分规则

全国统一客服电话
0570-8028505

24x7小时免费咨询

  • 官方在线客服

    QQ客服:小西

    点击交谈

    QQ客服:良子

    点击交谈

    QQ客服:闵月

    点击交谈
  • 衢州市柯城区财富中心3号楼2楼

  • 衢州格堂装饰有限公司

  • 扫一扫关注官方微信

    获取一手特惠信息

快速回复 返回顶部 返回列表