• 手机版

    扫码体验手机版

  • 微信公众号

    扫码关注公众号

登录注册
游客您好
第三方账号登陆

[衢州] 凤栖云庐15-#415㎡——现代

[复制链接]
 楼主| 发表于 2024-2-27 15:33:12 | 显示全部楼层
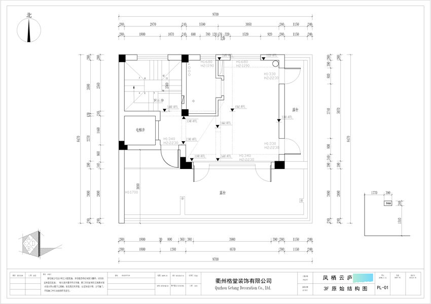
3楼原始结构图

3F原始结构图.png
回复 支持 反对

使用道具 举报

 楼主| 发表于 2024-2-27 15:33:28 | 显示全部楼层
3楼平面布置图

3F平面布置图.png
回复 支持 反对

使用道具 举报

 楼主| 发表于 2024-2-27 15:37:03 | 显示全部楼层
开工前,车库已经保护到位
微信图片_20240109094401.jpg

微信图片_20240109094404.jpg





回复 支持 反对

使用道具 举报

 楼主| 发表于 2024-2-27 16:45:39 | 显示全部楼层
煤气表已经保护到位

微信图片_20240109094345.jpg
回复 支持 反对

使用道具 举报

 楼主| 发表于 2024-2-27 16:46:10 | 显示全部楼层
开工仪式准备,开工横幅、鲜花、礼花准备到位,就等吉时!

微信图片_20240109094329.jpg

微信图片_20240109094348.jpg
回复 支持 反对

使用道具 举报

 楼主| 发表于 2024-2-27 16:46:47 | 显示全部楼层
吉时到开工了,恭祝业主大人开工大吉

微信图片_20240109094351.jpg
回复 支持 反对

使用道具 举报

 楼主| 发表于 2024-2-27 16:48:13 | 显示全部楼层
拆改阶段
1.房间铲灰,是为了防止墙顶面出现空鼓,在做好油漆后不会有墙顶面整块油漆脱落的现象。
2.拆除可以让空间利用更合理。为了整体结构的稳定性和安全性,承重墙是一定不能动的。
客厅拆到位了。
负二楼
IMG_20240109_091143.jpg

IMG_20240109_091155.jpg

IMG_20240109_091159.jpg

IMG_20240109_091204.jpg

IMG_20240109_091207.jpg

IMG_20240109_091211.jpg IMG_20240109_091126.jpg

IMG_20240109_091130.jpg

IMG_20240109_091136.jpg

IMG_20240109_091139.jpg

回复 支持 反对

使用道具 举报

 楼主| 发表于 2024-2-27 16:49:07 | 显示全部楼层
负一楼楼梯间拆改中
IMG_20240109_090451.jpg
回复 支持 反对

使用道具 举报

 楼主| 发表于 2024-2-27 16:51:06 | 显示全部楼层
负一楼客房拆改中

IMG_20240109_090506.jpg

IMG_20240109_090457.jpg

IMG_20240109_090501.jpg

IMG_20240109_090509.jpg

IMG_20240109_090512.jpg

负一楼客房斜对角图
IMG_20240109_090541.jpg

IMG_20240109_090527.jpg

IMG_20240109_090535.jpg

IMG_20240109_090544.jpg

IMG_20240109_090547.jpg
回复 支持 反对

使用道具 举报

 楼主| 发表于 2024-2-27 16:52:12 | 显示全部楼层
负一楼影音室拆改中
IMG_20240109_090601.jpg

IMG_20240109_090555.jpg

IMG_20240109_090558.jpg

IMG_20240109_090603.jpg

IMG_20240109_090609.jpg

影音室斜对角图
IMG_20240109_090625.jpg

IMG_20240109_090619.jpg

IMG_20240109_090622.jpg

IMG_20240109_090627.jpg

IMG_20240109_090629.jpg



回复 支持 反对

使用道具 举报

您需要登录后才可以回帖 登录 | 立即注册

本版积分规则

全国统一客服电话
0570-8028505

24x7小时免费咨询

  • 官方在线客服

    QQ客服:小西

    点击交谈

    QQ客服:良子

    点击交谈

    QQ客服:闵月

    点击交谈
  • 衢州市柯城区财富中心3号楼2楼

  • 衢州格堂装饰有限公司

  • 扫一扫关注官方微信

    获取一手特惠信息

快速回复 返回顶部 返回列表