[常山] 常山铂悦名庭9-2-4#93㎡现代——暖归·适居 |
|
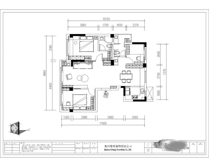
常山铂悦名庭9-2-4#93㎡现代——暖归·适居
格堂装饰为您全程记录装修全过程! 设计说明
原始户型为三室两厅,布局稍显封闭与零散。本案充分调动动静秩序,布局严谨,摒弃过多的设计语言传送,基于生活细节,以空间作为生活轨迹的导向,实现生活方式的多方面充足和日常交互。不会有反差极大的空间体验感,带入居住者在其内生活会产生的独立、对话以及互动等多种状态,从使用与发展的基础上,改善、优化日常的生活质量,并延伸至感官的方方面面。
更多信息
| |
|
|
| |


在线客服
微信客服
关注有礼