• 手机版

    扫码体验手机版

  • 微信公众号

    扫码关注公众号

登录注册
游客您好
第三方账号登陆

[龙游] 兰亭9-9#132㎡现代——黑白灰

[复制链接]
发表于 2024-1-13 09:13:34 | 显示全部楼层 |阅读模式
现代——黑白灰

格堂装饰为您全程记录装修全过程!

小区名称
兰亭
房屋面积
132㎡
户型结构
框架结构
装修风格
现代
装修方式
半包
装修造价
查看请联系客服万元
设计师
杜工
项目经理
方工
装修公司
格堂装饰
完工实景
完工实景
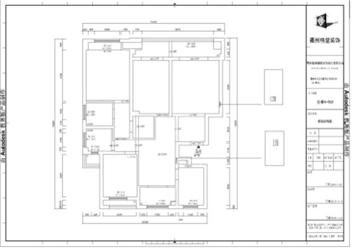
水电全景
水电全景
VR全景
VR全景
设计说明
纯白底色放大了空间光感,描摹纯黑色块让空间透视有了进一步延伸,尽显客厅的阔然气派。采用和谐比例塑造电视背景墙的视觉节奏与层次,将水墨晕染般的大理石嵌入其中,由无限的自然之力抒发极简艺术的魅力。
更多信息
本帖最后由 格堂艳子 于 2024-9-15 17:16 编辑

效果图

IMG_8693(20240113-090325).JPG


IMG_8692(20240113-090323).JPG

IMG_8695(20240113-090331).JPG

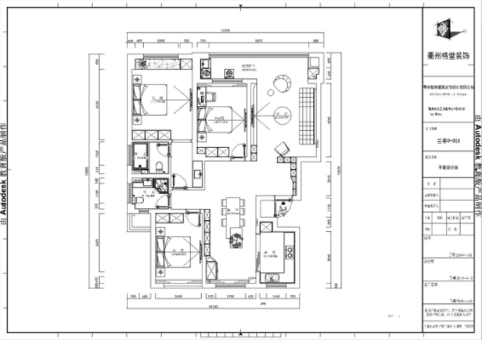
平面图
IMG_8698.PNG

IMG_8697(20240113-090255).PNG


目      录


回复

使用道具 举报

 楼主| 发表于 2024-1-13 09:15:20 | 显示全部楼层
开工前准备

IMG_8545.JPG

IMG_8524.JPG

IMG_8522.JPG

IMG_8544.JPG
回复 支持 反对

使用道具 举报

 楼主| 发表于 2024-1-13 09:16:00 | 显示全部楼层
卧室

IMG_8527.JPG

IMG_8526.JPG

IMG_8528.JPG
回复 支持 反对

使用道具 举报

 楼主| 发表于 2024-1-13 09:17:21 | 显示全部楼层
开工前大门已保护到位,防止磕碰


IMG_8521.JPG
回复 支持 反对

使用道具 举报

 楼主| 发表于 2024-1-13 09:18:03 | 显示全部楼层
电梯口墙面和地面都贴好了格堂专用的保护垫。


IMG_8511.JPG

IMG_8512.JPG

IMG_8513.JPG

IMG_8514.JPG

IMG_8515.JPG

回复 支持 反对

使用道具 举报

 楼主| 发表于 2024-1-13 09:18:37 | 显示全部楼层
电梯口对角

IMG_8516.JPG

IMG_8517.JPG

IMG_8518.JPG

IMG_8519.JPG

IMG_8520.JPG
回复 支持 反对

使用道具 举报

 楼主| 发表于 2024-1-13 09:19:10 | 显示全部楼层
临时马桶:每一个施工现场都会配备临时小便斗,并且时刻保持干净卫生、保证工地环境干净、整洁。

IMG_8530.JPG
回复 支持 反对

使用道具 举报

 楼主| 发表于 2024-1-13 09:19:40 | 显示全部楼层
排水管道用格堂装饰专用保护盖保护,防止后期施工砂石堵塞管道


IMG_8533.JPG

IMG_8531.JPG

IMG_8532.JPG
回复 支持 反对

使用道具 举报

 楼主| 发表于 2024-1-13 09:21:22 | 显示全部楼层
燃气表已保护到位

IMG_8534.JPG
回复 支持 反对

使用道具 举报

 楼主| 发表于 2024-1-13 09:21:56 | 显示全部楼层
送给业主美丽的鲜花

IMG_8537.JPG
回复 支持 反对

使用道具 举报

您需要登录后才可以回帖 登录 | 立即注册

本版积分规则

全国统一客服电话
0570-8028505

24x7小时免费咨询

  • 官方在线客服

    QQ客服:小西

    点击交谈

    QQ客服:良子

    点击交谈

    QQ客服:闵月

    点击交谈
  • 衢州市柯城区财富中心3号楼2楼

  • 衢州格堂装饰有限公司

  • 扫一扫关注官方微信

    获取一手特惠信息

快速回复 返回顶部 返回列表