• 手机版

    扫码体验手机版

  • 微信公众号

    扫码关注公众号

登录注册
游客您好
第三方账号登陆

[衢州] 古雅悦宸轩8-##500㎡现代中式——浮隐若奢,璞悦东方

[复制链接]
 楼主| 发表于 2024-2-1 11:28:18 | 显示全部楼层
本帖最后由 格堂王姐 于 2024-2-21 09:33 编辑

微信图片_20240120172143.jpg



微信图片_20240120172147.jpg
回复 支持 反对

使用道具 举报

 楼主| 发表于 2024-2-1 11:28:26 | 显示全部楼层
回复 支持 反对

使用道具 举报

 楼主| 发表于 2024-2-1 11:36:52 | 显示全部楼层
本帖最后由 格堂王姐 于 2024-2-1 11:38 编辑

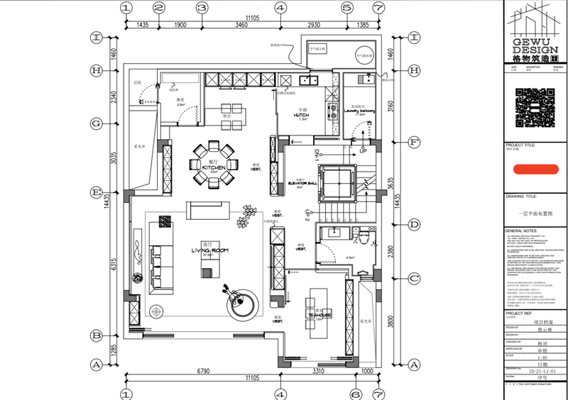
一楼:
原始结构图
QQ浏览器截图20240120170602.png


平面布置图
QQ浏览器截图20240120171439.png

回复 支持 反对

使用道具 举报

 楼主| 发表于 2024-2-1 11:37:57 | 显示全部楼层
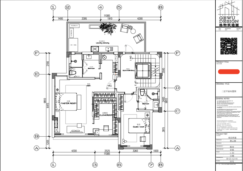
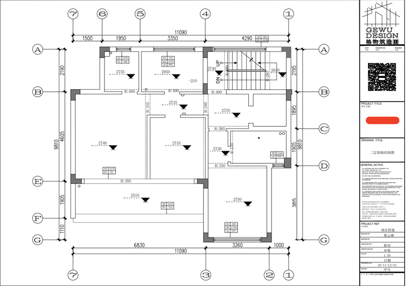
二楼:

原始结构图
QQ浏览器截图20240120170726.png


平面布置图
QQ浏览器截图20240120171513.png
回复 支持 反对

使用道具 举报

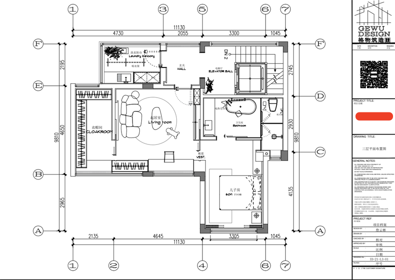
 楼主| 发表于 2024-2-1 11:39:20 | 显示全部楼层
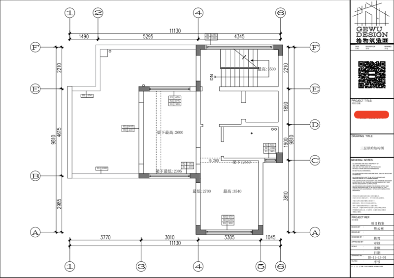
三楼:

原始结构图
QQ浏览器截图20240120171144.png


平面布置图
QQ浏览器截图20240120171223.png

回复 支持 反对

使用道具 举报

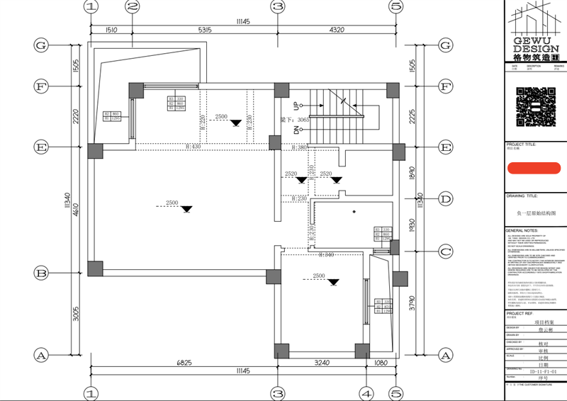
 楼主| 发表于 2024-2-1 11:40:18 | 显示全部楼层
负一楼:

原始结构图
QQ浏览器截图20240120170907.png


平面布置图
QQ浏览器截图20240120171545.png

回复 支持 反对

使用道具 举报

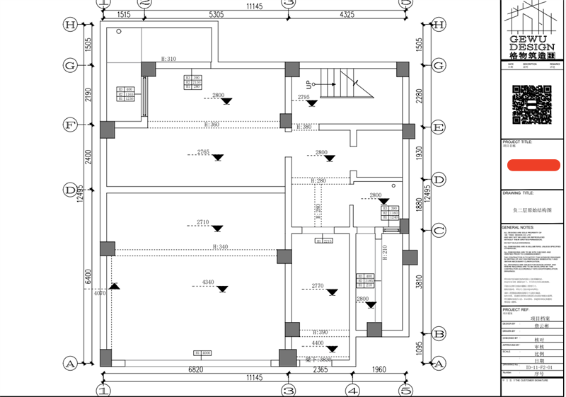
 楼主| 发表于 2024-2-1 11:41:11 | 显示全部楼层
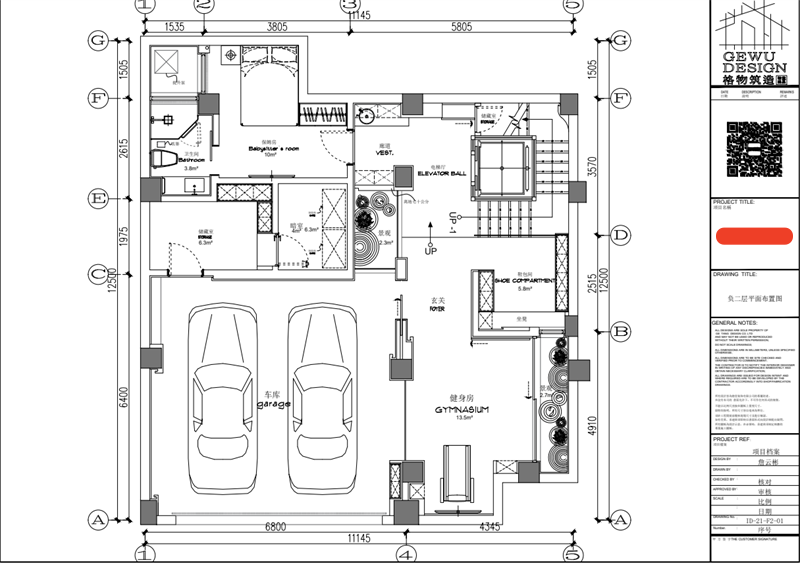
负二楼:

原始结构图
QQ浏览器截图20240120170956.png


平面布置图
QQ浏览器截图20240120171614.png

回复 支持 反对

使用道具 举报

 楼主| 发表于 2024-2-1 11:42:24 | 显示全部楼层
煤气表已经保护到位。
IMG_20240102_083745.jpg

临时小便池已经安放好了:每一个施工现场都会配备临时小便斗,并且时刻保持干净卫生,保证工地环境干净整洁。
IMG_20240102_083801.jpg

排水管道用格堂专用保护盖保护,防止后期施工中砂石 堵塞管道
IMG_20240102_083816.jpg


回复 支持 反对

使用道具 举报

 楼主| 发表于 2024-2-1 11:43:52 | 显示全部楼层
开工仪式准备,开工横幅、鲜花、礼花准备到位,就等吉时!
开工桌摆好准备
IMG_20240102_084752.jpg
吉时到开工了,恭祝业主大人开工大吉!
仪式很短暂,家居装修却很长……与漫漫人生历程相比,这些短短一瞬,却包含了满满的心意。
我们竭力用自己的专业技能,让每位业主拥有最接近梦想的家!恭祝开工大吉!
开工合影
IMG_20240102_090422.jpg
开工第一锤,由业主敲在要拆除的墙体的墙角(即拐角)上,象征一锤定音的意思,也是新房动土的一种表示方式
业主敲下第一锤
IMG_20240102_090003.jpg
敲完的痕迹
IMG_20240102_090030.jpg

回复 支持 反对

使用道具 举报

 楼主| 发表于 2024-2-1 11:46:15 | 显示全部楼层
拆改阶段:
房间铲灰,是为了防止墙顶面出现空鼓,在做好油漆后不会有墙顶面整块油漆脱落的现象。
拆除可以让空间利用更合理。为了整体结构的稳定性和安全性,承重墙是一定不能动的。
微信图片_20240120164409.jpg


微信图片_20240120164419.jpg


微信图片_20240120164423.jpg


微信图片_20240120164426.jpg


微信图片_20240120164429.jpg


回复 支持 反对

使用道具 举报

您需要登录后才可以回帖 登录 | 立即注册

本版积分规则

全国统一客服电话
0570-8028505

24x7小时免费咨询

  • 官方在线客服

    QQ客服:小西

    点击交谈

    QQ客服:良子

    点击交谈

    QQ客服:闵月

    点击交谈
  • 衢州市柯城区财富中心3号楼2楼

  • 衢州格堂装饰有限公司

  • 扫一扫关注官方微信

    获取一手特惠信息

快速回复 返回顶部 返回列表