• 手机版

    扫码体验手机版

  • 微信公众号

    扫码关注公众号

登录注册
游客您好
第三方账号登陆

[衢州] 国风澜园42-1-1#330㎡现代——简洁,实用

[复制链接]
发表于 2024-1-5 16:52:53 | 显示全部楼层 |阅读模式
国风澜园42-1-1#330㎡现代——简洁,实用

格堂装饰为您全程记录装修全过程!

小区名称
国风澜园
房屋面积
330㎡
户型结构
叠排
装修风格
现代
装修方式
全案
装修造价
查看请联系客服万元
设计师
王工
项目经理
杨工
装修公司
格堂装饰
完工实景
完工实景
水电全景
水电全景
VR全景
VR全景
设计说明
简洁,实用 追求空间之间的关系,没有过多复杂的装饰,强调简洁的造型,温暖的色彩来营造美观大方的空间效果
更多信息
本帖最后由 格堂王姐 于 2024-3-3 17:34 编辑

效果图

QQ浏览器截图20240303172922.png


QQ浏览器截图20240303172952.png


QQ浏览器截图20240303173010.png


QQ浏览器截图20240303173032.png


QQ浏览器截图20240303173043.png


QQ浏览器截图20240303173055.png


QQ浏览器截图20240303173106.png


QQ浏览器截图20240303173118.png


QQ浏览器截图20240303173128.png


QQ浏览器截图20240303173140.png


QQ浏览器截图20240303173151.png
回复

使用道具 举报

 楼主| 发表于 2024-1-27 08:46:36 | 显示全部楼层
回复 支持 反对

使用道具 举报

 楼主| 发表于 2024-1-27 08:46:53 | 显示全部楼层
本帖最后由 格堂王姐 于 2024-3-3 17:35 编辑

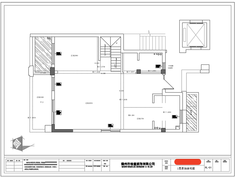
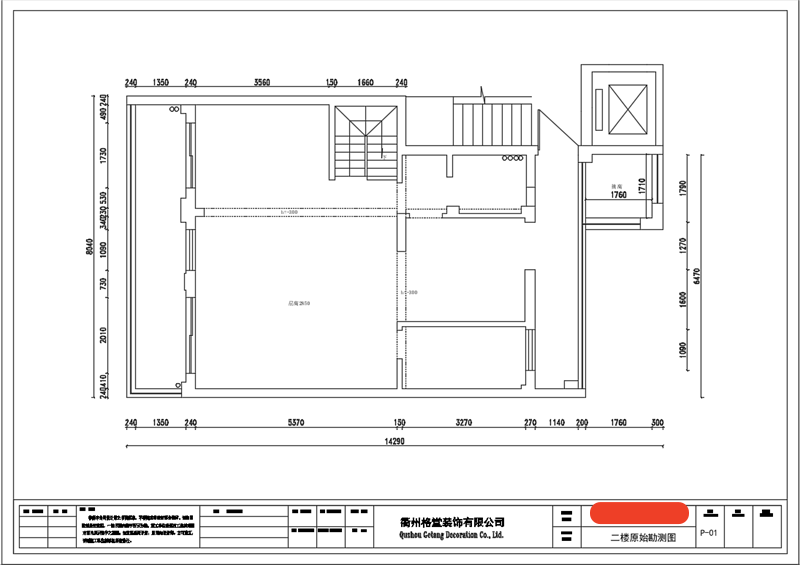
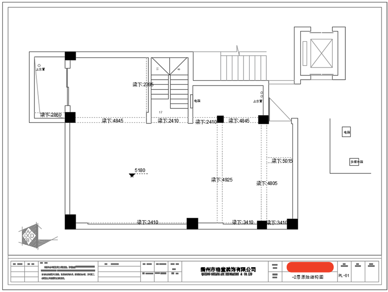
原始结构图
微信图片_20240303172208.png


微信图片_20240303172220.png


微信图片_20240303172227.png


微信图片_20240303172232.png

回复 支持 反对

使用道具 举报

 楼主| 发表于 2024-1-27 08:46:59 | 显示全部楼层
本帖最后由 格堂王姐 于 2024-3-3 17:35 编辑

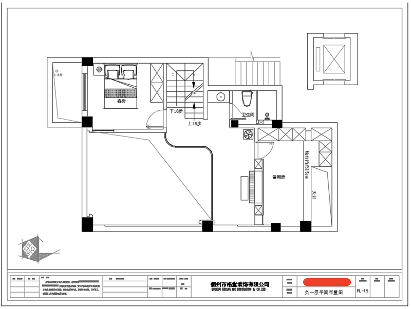
平面布置图

微信图片_20240303172235.png


微信图片_20240303172238.png


微信图片_20240303172244.png


微信图片_20240303172247.png
回复 支持 反对

使用道具 举报

 楼主| 发表于 2024-1-27 08:47:19 | 显示全部楼层
本帖最后由 格堂王姐 于 2024-1-27 09:35 编辑

开工仪式准备,开工横幅、鲜花、礼花准备到位,就等吉时!
开工桌摆好准备
微信图片_20240105115618.jpg


微信图片_20240105115632.jpg


微信图片_20240105115640.jpg

微信图片_20240105115645.jpg

吉时到开工了,恭祝业主大人开工大吉!
仪式很短暂,家居装修却很长……与漫漫人生历程相比,这些短短一瞬,却包含了满满的心意。
我们竭力用自己的专业技能,让每位业主拥有最接近梦想的家!恭祝开工大吉!
开工合影
微信图片_20240105115707_副本.jpg


开工第一锤,由业主敲在要拆除的墙体的墙角(即拐角)上,象征一锤定音的意思,也是新房动土的一种表示方式
业主敲下第一锤
微信图片_20240105115718_副本.jpg


敲完的痕迹
微信图片_20240105115728_副本_副本.jpg

回复 支持 反对

使用道具 举报

 楼主| 发表于 2024-1-27 08:47:34 | 显示全部楼层
本帖最后由 格堂王姐 于 2024-1-30 17:23 编辑

大门已经保护到位。
IMG_20240103_102810.jpg

煤气表已经保护到位。
IMG_20240103_102827.jpg

临时小便池已经安放好了:每一个施工现场都会配备临时小便斗,并且时刻保持干净卫生,保证工地环境干净整洁。
IMG_20240128_165316.jpg

排水管道用格堂专用保护盖保护,防止后期施工中砂石 堵塞管道
IMG_20240103_103142.jpg

回复 支持 反对

使用道具 举报

 楼主| 发表于 2024-1-27 09:39:38 | 显示全部楼层
电梯口墙面和地面都贴好了格堂专用的保护垫。
IMG_20240103_102923.jpg


IMG_20240103_102929.jpg


IMG_20240103_102944.jpg


IMG_20240103_102946.jpg


IMG_20240103_102951.jpg

回复 支持 反对

使用道具 举报

 楼主| 发表于 2024-1-27 09:40:11 | 显示全部楼层
IMG_20240103_102955.jpg



IMG_20240103_102957.jpg


IMG_20240103_103000.jpg
回复 支持 反对

使用道具 举报

 楼主| 发表于 2024-1-27 09:40:35 | 显示全部楼层
IMG_20240103_103002.jpg



IMG_20240103_103004.jpg


IMG_20240103_103008.jpg
回复 支持 反对

使用道具 举报

 楼主| 发表于 2024-1-27 09:48:49 | 显示全部楼层
拆改阶段:
房间铲灰,是为了防止墙顶面出现空鼓,在做好油漆后不会有墙顶面整块油漆脱落的现象。
拆除可以让空间利用更合理。为了整体结构的稳定性和安全性,承重墙是一定不能动的。
IMG_20240103_103111.jpg


IMG_20240103_103116.jpg


IMG_20240103_103142.jpg

IMG_20240103_103151.jpg

回复 支持 反对

使用道具 举报

您需要登录后才可以回帖 登录 | 立即注册

本版积分规则

全国统一客服电话
0570-8028505

24x7小时免费咨询

  • 官方在线客服

    QQ客服:小西

    点击交谈

    QQ客服:良子

    点击交谈

    QQ客服:闵月

    点击交谈
  • 衢州市柯城区财富中心3号楼2楼

  • 衢州格堂装饰有限公司

  • 扫一扫关注官方微信

    获取一手特惠信息

快速回复 返回顶部 返回列表