• 手机版

    扫码体验手机版

  • 微信公众号

    扫码关注公众号

登录注册
游客您好
第三方账号登陆

[衢州] 江湾半岛30-4-6#96㎡现代简约——生活·艺术·家

[复制链接]
发表于 2023-12-25 11:09:48 | 显示全部楼层 |阅读模式
江湾半岛30-4-6#96㎡现代简约——生活·艺术·家

格堂装饰为您全程记录装修全过程!

小区名称
江湾半岛
房屋面积
96㎡
户型结构
套房
装修风格
现代
装修方式
半包
装修造价
查看请联系客服万元
设计师
王工
项目经理
周工
装修公司
格堂装饰
完工实景
完工实景
水电全景
水电全景
VR全景
VR全景
设计说明
人类喜爱大自然的美景,常常把阳光直接引入室内,以消除室内的黑暗感和封闭感,使室内空间更为亲切自然。光影的变换,使室内更加丰富多彩,给人以多种感受。
更多信息
效果图

微信图片_20231225110114.jpg


微信图片_20231225110117.jpg



回复

使用道具 举报

 楼主| 发表于 2023-12-25 15:47:52 | 显示全部楼层
回复 支持 反对

使用道具 举报

 楼主| 发表于 2023-12-25 15:48:20 | 显示全部楼层
本帖最后由 格堂王姐 于 2023-12-25 15:51 编辑

原始结构图
微信图片_20231225110054.png

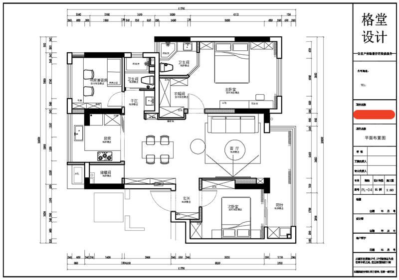
平面布置图
微信图片_20231225110108.png

回复 支持 反对

使用道具 举报

 楼主| 发表于 2023-12-25 15:48:32 | 显示全部楼层
本帖最后由 格堂王姐 于 2024-1-4 10:15 编辑

大门已经保护到位。
IMG_20240103_122250.jpg

煤气表已经保护到位。
IMG_20240103_122207.jpg

临时小便池已经安放好了:每一个施工现场都会配备临时小便斗,并且时刻保持干净卫生,保证工地环境干净整洁。
IMG_20240103_122214.jpg

排水管道用格堂专用保护盖保护,防止后期施工中砂石 堵塞管道
IMG_20240103_122226.jpg
回复 支持 反对

使用道具 举报

 楼主| 发表于 2023-12-25 15:48:43 | 显示全部楼层
本帖最后由 格堂王姐 于 2023-12-25 15:52 编辑

开工仪式准备,开工横幅、鲜花、礼花准备到位,就等吉时!
开工桌摆好准备
微信图片_20231225154334.jpg

吉时到开工了,恭祝业主大人开工大吉!
仪式很短暂,家居装修却很长……与漫漫人生历程相比,这些短短一瞬,却包含了满满的心意。
我们竭力用自己的专业技能,让每位业主拥有最接近梦想的家!恭祝开工大吉!
开工合影
微信图片_20231225154606.png

开工第一锤,由业主敲在要拆除的墙体的墙角(即拐角)上,象征一锤定音的意思,也是新房动土的一种表示方式
业主敲下第一锤
微信图片_20231225154328.jpg

微信图片_20231225154338.jpg

敲完的痕迹
微信图片_20231225154331.jpg
回复 支持 反对

使用道具 举报

 楼主| 发表于 2023-12-25 15:49:12 | 显示全部楼层
本帖最后由 格堂王姐 于 2024-1-4 10:16 编辑

电梯口墙面和地面都贴好了格堂专用的保护垫。
IMG_20240103_122256.jpg


IMG_20240103_122258.jpg


IMG_20240103_122301.jpg


IMG_20240103_122304.jpg


IMG_20240103_122308.jpg
回复 支持 反对

使用道具 举报

 楼主| 发表于 2024-1-4 10:16:45 | 显示全部楼层
IMG_20240103_122311.jpg



IMG_20240103_122317.jpg


IMG_20240103_122320.jpg


IMG_20240103_122322.jpg


IMG_20240103_122329.jpg
回复 支持 反对

使用道具 举报

 楼主| 发表于 2024-1-4 10:22:22 | 显示全部楼层
拆改阶段:
房间铲灰,是为了防止墙顶面出现空鼓,在做好油漆后不会有墙顶面整块油漆脱落的现象。
拆除可以让空间利用更合理。为了整体结构的稳定性和安全性,承重墙是一定不能动的。
微信图片_20240102150052.jpg


微信图片_20240102150107.jpg


微信图片_20240102150111.jpg


微信图片_20240102150118.jpg


微信图片_20240102150121.jpg

回复 支持 反对

使用道具 举报

 楼主| 发表于 2024-1-4 10:27:33 | 显示全部楼层
砌墙放样:

微信图片_20240104102517.jpg


微信图片_20240104102539.jpg


微信图片_20240104102542.jpg


微信图片_20240104102545.jpg


微信图片_20240104102548.jpg
回复 支持 反对

使用道具 举报

 楼主| 发表于 2024-1-4 10:27:58 | 显示全部楼层
微信图片_20240104102551.jpg



微信图片_20240104102555.jpg


微信图片_20240104102559.jpg


微信图片_20240104102602.jpg


微信图片_20240104102605.jpg
回复 支持 反对

使用道具 举报

您需要登录后才可以回帖 登录 | 立即注册

本版积分规则

全国统一客服电话
0570-8028505

24x7小时免费咨询

  • 官方在线客服

    QQ客服:小西

    点击交谈

    QQ客服:良子

    点击交谈

    QQ客服:闵月

    点击交谈
  • 衢州市柯城区财富中心3号楼2楼

  • 衢州格堂装饰有限公司

  • 扫一扫关注官方微信

    获取一手特惠信息

快速回复 返回顶部 返回列表