• 手机版

    扫码体验手机版

  • 微信公众号

    扫码关注公众号

登录注册
游客您好
第三方账号登陆

[衢州] 国风澜园2-2-110# 115㎡现代——书香浪漫

[复制链接]
发表于 2023-12-12 11:33:21 | 显示全部楼层 |阅读模式
国风澜园2-2-110# 115㎡现代——书香浪漫

格堂装饰为您全程记录装修全过程!

小区名称
国风澜园
房屋面积
115㎡
户型结构
套房
装修风格
现代
装修方式
半包
装修造价
查看请联系客服万元
设计师
余工
项目经理
郑工
装修公司
格堂装饰
完工实景
完工实景
水电全景
水电全景
VR全景
VR全景
设计说明
家,不仅仅是一个容器,更是一艘大船,承载着人们的快乐和幸福,是避风港,心灵的驿站,空间上最大限度引入自然光,色系选择温馨柔和,书香氛围感十足,打造出高雅柔美的家居风格。
更多信息
本帖最后由 格堂黄姐 于 2023-12-12 18:22 编辑

效果图

mmexport1702373034461.jpg

mmexport1702373037214.jpg

mmexport1702373040628.jpg
回复

使用道具 举报

 楼主| 发表于 2023-12-12 11:35:43 | 显示全部楼层
回复 支持 反对

使用道具 举报

 楼主| 发表于 2023-12-12 11:37:22 | 显示全部楼层
本帖最后由 格堂黄姐 于 2023-12-12 17:05 编辑

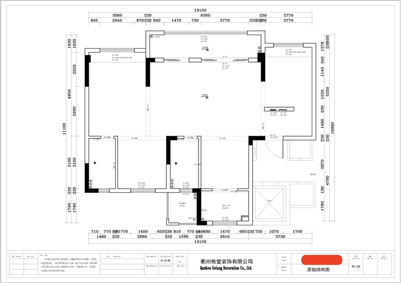
原始结构图
mmexport1702370758055.jpg

平面布置图
mmexport1702370764350.jpg

回复 支持 反对

使用道具 举报

 楼主| 发表于 2023-12-12 11:40:42 | 显示全部楼层
本帖最后由 格堂黄姐 于 2024-2-1 16:35 编辑

门槛已经保护到位
IMG_20231212_150250.jpg

大门已经保护到位
IMG_20231212_150244.jpg

煤气表已经保护到位
IMG_20231212_150304.jpg

临时小便池已经安放好了:每一个施工现场都会配备临时小便斗,并且时刻保持干净卫生,保证工地环境干净整洁
IMG_20231212_150319.jpg
回复 支持 反对

使用道具 举报

 楼主| 发表于 2023-12-12 21:19:58 | 显示全部楼层
排水管道用格堂专用保护盖保护,防止后期施工中砂石 堵塞管道
IMG_20231212_150355.jpg

IMG_20231212_150409.jpg

IMG_20231212_150427.jpg

回复 支持 反对

使用道具 举报

 楼主| 发表于 2023-12-12 21:22:50 | 显示全部楼层
本帖最后由 格堂黄姐 于 2024-10-27 19:37 编辑

开工仪式准备,开工横幅、鲜花、礼花准备到位,就等吉时!
开工桌摆好准备
mmexport1702387308555.jpg

吉时到开工了,恭祝业主大人开工大吉!
仪式很短暂,家居装修却很长……与漫漫人生历程相比,这些短短一瞬,却包含了满满的心意。
我们竭力用自己的专业技能,让每位业主拥有最接近梦想的家!恭祝开工大吉!
开工合影
mmexport1702387476785.jpg

开工第一锤,由业主敲在要拆除的墙体的墙角(即拐角)上,象征一锤定音的意思,也是新房动土的一种表示方式
业主敲下第一锤
mmexport1702387313476.jpg

敲完的痕迹
mmexport1702387316746.jpg
回复 支持 反对

使用道具 举报

 楼主| 发表于 2023-12-12 21:35:38 | 显示全部楼层
电梯口墙面和地面都贴好了格堂专用的保护垫。
IMG_20231212_150641.jpg

IMG_20231212_150644.jpg

IMG_20231212_150648.jpg

IMG_20231212_150651.jpg

IMG_20231212_150655.jpg

回复 支持 反对

使用道具 举报

 楼主| 发表于 2023-12-12 21:36:38 | 显示全部楼层
IMG_20231212_150701.jpg


IMG_20231212_150704.jpg

IMG_20231212_150706.jpg

IMG_20231212_150709.jpg

IMG_20231212_150712.jpg
回复 支持 反对

使用道具 举报

 楼主| 发表于 2023-12-12 21:41:43 | 显示全部楼层
本帖最后由 格堂黄姐 于 2024-2-1 16:36 编辑

拆改放样
mmexport1702387326878.jpg

mmexport1702387331352.jpg

mmexport1702387334230.jpg

mmexport1702387337283.jpg

mmexport1702387340136.jpg
回复 支持 反对

使用道具 举报

 楼主| 发表于 2023-12-12 21:42:25 | 显示全部楼层
mmexport1702387346273.jpg


mmexport1702387349241.jpg

mmexport1702387352794.jpg

mmexport1702387356085.jpg
回复 支持 反对

使用道具 举报

您需要登录后才可以回帖 登录 | 立即注册

本版积分规则

全国统一客服电话
0570-8028505

24x7小时免费咨询

  • 官方在线客服

    QQ客服:小西

    点击交谈

    QQ客服:良子

    点击交谈

    QQ客服:闵月

    点击交谈
  • 衢州市柯城区财富中心3号楼2楼

  • 衢州格堂装饰有限公司

  • 扫一扫关注官方微信

    获取一手特惠信息

快速回复 返回顶部 返回列表