• 手机版

    扫码体验手机版

  • 微信公众号

    扫码关注公众号

登录注册
游客您好
第三方账号登陆

[开化] 双溪景苑7-1-3#93㎡现代----宜居

[复制链接]
发表于 2023-11-8 13:55:51 | 显示全部楼层 |阅读模式
双溪景苑7-1-3#93㎡现代----宜居

格堂装饰为您全程记录装修全过程!

小区名称
双溪景苑
房屋面积
93㎡
户型结构
3房两厅1厨2卫
装修风格
现代
装修方式
半包
装修造价
查看请联系客服万元
设计师
余工
项目经理
毛工
装修公司
格堂装饰
完工实景
完工实景
水电全景
水电全景
VR全景
VR全景
设计说明
反正秩序的外观,却隐藏柔软的内心
更多信息
本帖最后由 格堂小韩 于 2023-11-10 09:18 编辑

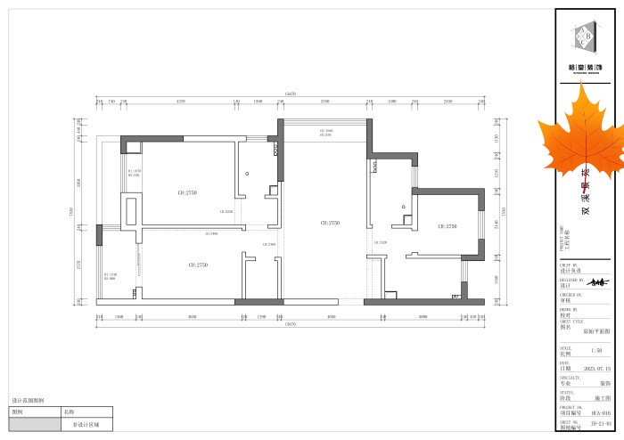
原始结构图
原始结构图 _副本.jpg
回复

使用道具 举报

 楼主| 发表于 2023-11-8 13:56:22 | 显示全部楼层
本帖最后由 格堂小韩 于 2023-11-10 09:18 编辑

平面布置图
平面图_副本.jpg
回复 支持 反对

使用道具 举报

 楼主| 发表于 2023-11-8 13:56:53 | 显示全部楼层
本帖最后由 格堂小韩 于 2026-1-21 15:40 编辑


回复 支持 反对

使用道具 举报

 楼主| 发表于 2023-11-8 13:58:05 | 显示全部楼层


开工前准备
IMG_5052.JPG

IMG_5053.JPG

IMG_5076.JPG

IMG_5077.JPG

IMG_5078.JPG
回复 支持 反对

使用道具 举报

 楼主| 发表于 2023-11-8 13:58:59 | 显示全部楼层


临时马桶
IMG_5054.JPG
回复 支持 反对

使用道具 举报

 楼主| 发表于 2023-11-8 13:59:24 | 显示全部楼层


燃气表保护
IMG_5055.JPG
回复 支持 反对

使用道具 举报

 楼主| 发表于 2023-11-8 13:59:53 | 显示全部楼层


大门保护
IMG_5056.JPG
回复 支持 反对

使用道具 举报

 楼主| 发表于 2023-11-8 14:00:16 | 显示全部楼层


门槛保护
IMG_5057.JPG
回复 支持 反对

使用道具 举报

 楼主| 发表于 2023-11-8 14:00:35 | 显示全部楼层


大门过道保护
IMG_5058.JPG

IMG_5059.JPG

IMG_5060.JPG

IMG_5061.JPG

IMG_5062.JPG
回复 支持 反对

使用道具 举报

 楼主| 发表于 2023-11-8 14:01:33 | 显示全部楼层


大门过道对角保护
IMG_5063.JPG

IMG_5064.JPG

IMG_5065.JPG

IMG_5066.JPG
回复 支持 反对

使用道具 举报

您需要登录后才可以回帖 登录 | 立即注册

本版积分规则

全国统一客服电话
0570-8028505

24x7小时免费咨询

  • 官方在线客服

    QQ客服:小西

    点击交谈

    QQ客服:良子

    点击交谈

    QQ客服:闵月

    点击交谈
  • 衢州市柯城区财富中心3号楼2楼

  • 衢州格堂装饰有限公司

  • 扫一扫关注官方微信

    获取一手特惠信息

快速回复 返回顶部 返回列表