• 手机版

    扫码体验手机版

  • 微信公众号

    扫码关注公众号

登录注册
游客您好
第三方账号登陆

[衢州] 云澜府23-1#230㎡现代——润物无声,聆听物语

[复制链接]
发表于 2023-11-7 10:27:17 | 显示全部楼层 |阅读模式
云澜府23-1#230㎡现代——润物无声,聆听物语

格堂装饰为您全程记录装修全过程!

小区名称
云澜府
房屋面积
230㎡
户型结构
上下叠
装修风格
现代
装修方式
半包
装修造价
查看请联系客服万元
设计师
苏工
项目经理
刘工
装修公司
格堂装饰
完工实景
完工实景
水电全景
水电全景
VR全景
VR全景
设计说明
以物构成的空间,应该是心灵空间反射出的综合体,它不会让人感觉孤单,也不会使人忘却每一个幸福瞬间,透过“润物细无声”的语境,再与人产生互相塑造的关系,诠释家的意义。
更多信息
本帖最后由 格堂王姐 于 2023-11-10 08:55 编辑

效果图

QQ浏览器截图20231107103440.png


QQ浏览器截图20231107103458.png


QQ浏览器截图20231107103643.png


QQ浏览器截图20231107103832.png


QQ浏览器截图20231107103846.png


QQ浏览器截图20231107103858.png


QQ浏览器截图20231107103912.png

回复

使用道具 举报

 楼主| 发表于 2023-11-7 10:43:35 | 显示全部楼层
本帖最后由 格堂王姐 于 2024-9-21 15:32 编辑

目      录


回复 支持 反对

使用道具 举报

 楼主| 发表于 2023-11-7 10:50:33 | 显示全部楼层
本帖最后由 格堂王姐 于 2023-11-7 11:17 编辑

负一楼原始结构图

QQ浏览器截图20231107105822.png

负一楼平面布置图

QQ浏览器截图20231107105925.png

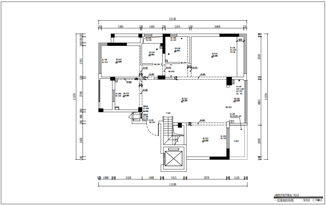
一楼原始结构图

QQ浏览器截图20231107105957.png

一楼平面布置图

QQ浏览器截图20231107105907.png
回复 支持 反对

使用道具 举报

 楼主| 发表于 2023-11-7 10:51:40 | 显示全部楼层
本帖最后由 格堂王姐 于 2023-11-7 11:11 编辑

大门已经保护到位。

IMG_20231105_131055.jpg

煤气表已经保护到位。

IMG_20231105_130912.jpg

临时小便池已经安放好了:每一个施工现场都会配备临时小便斗,并且时刻保持干净卫生,保证工地环境干净整洁。

IMG_20231105_130932.jpg
回复 支持 反对

使用道具 举报

 楼主| 发表于 2023-11-7 11:03:20 | 显示全部楼层
开工仪式准备,开工横幅、鲜花、礼花准备到位,就等吉时!
吉时到开工了,恭祝业主大人开工大吉!
仪式很短暂,家居装修却很长……与漫漫人生历程相比,这些短短一瞬,却包含了满满的心意。
我们竭力用自己的专业技能,让每位业主拥有最接近梦想的家!恭祝开工大吉!
开工合影

微信图片_20231101105851.jpg
开工第一锤,由业主敲在要拆除的墙体的墙角(即拐角)上,象征一锤定音的意思,也是新房动土的一种表示方式
业主敲下第一锤

微信图片_20231101105854.jpg

回复 支持 反对

使用道具 举报

 楼主| 发表于 2023-11-7 11:13:04 | 显示全部楼层
电梯口墙面和地面都贴好了格堂专用的保护垫。

IMG_20231105_131100.jpg


IMG_20231105_131105.jpg


IMG_20231105_131109.jpg


IMG_20231105_131112.jpg


IMG_20231105_131117.jpg


IMG_20231105_131119.jpg


IMG_20231105_131122.jpg


IMG_20231105_131137.jpg


IMG_20231105_131140.jpg

回复 支持 反对

使用道具 举报

 楼主| 发表于 2023-11-7 11:13:49 | 显示全部楼层
拆改阶段:
房间铲灰,是为了防止墙顶面出现空鼓,在做好油漆后不会有墙顶面整块油漆脱落的现象。
拆除可以让空间利用更合理。为了整体结构的稳定性和安全性,承重墙是一定不能动的。

微信图片_20231101105905.jpg


微信图片_20231101105909.jpg


微信图片_20231101105913.jpg

微信图片_20231101105916.jpg

微信图片_20231107101312.jpg


微信图片_20231107101327.jpg

回复 支持 反对

使用道具 举报

 楼主| 发表于 2023-11-7 11:14:33 | 显示全部楼层
微信图片_20231107101330.jpg



微信图片_20231107101334.jpg


微信图片_20231107101337.jpg


微信图片_20231107101355.jpg


微信图片_20231107101416.jpg
回复 支持 反对

使用道具 举报

 楼主| 发表于 2023-11-7 11:14:54 | 显示全部楼层
微信图片_20231107101420.jpg



微信图片_20231107101423.jpg

微信图片_20231107101426.jpg


微信图片_20231107101435.jpg


微信图片_20231107101438.jpg
回复 支持 反对

使用道具 举报

 楼主| 发表于 2023-11-10 08:48:03 | 显示全部楼层
砌墙中途:

砌墙前砖块进行浇水湿润,有效防止砖块吸水过快与砂浆的粘结力削弱,导致降低砌体的抗压、抗剪强度。
新老墙交界处已放置膨胀螺栓,起到连接砌体防止开裂的作用。新墙与老墙、梁、柱位置已加钉钢丝网,有效防止后期开裂。

微信图片_20231110084252.jpg


微信图片_20231110084307.jpg


微信图片_20231110084310.jpg


微信图片_20231110084313.jpg


微信图片_20231110084317.jpg
回复 支持 反对

使用道具 举报

您需要登录后才可以回帖 登录 | 立即注册

本版积分规则

全国统一客服电话
0570-8028505

24x7小时免费咨询

  • 官方在线客服

    QQ客服:小西

    点击交谈

    QQ客服:良子

    点击交谈

    QQ客服:闵月

    点击交谈
  • 衢州市柯城区财富中心3号楼2楼

  • 衢州格堂装饰有限公司

  • 扫一扫关注官方微信

    获取一手特惠信息

快速回复 返回顶部 返回列表