• 手机版

    扫码体验手机版

  • 微信公众号

    扫码关注公众号

登录注册
游客您好
第三方账号登陆

[衢州] 星月宸庐2-1-13#98㎡轻法现代——幸福·别有洞天

[复制链接]
发表于 2023-10-10 10:33:41 | 显示全部楼层 |阅读模式
星月宸庐2-1-13#98㎡轻法现代——幸福·别有洞天

格堂装饰为您全程记录装修全过程!

小区名称
星月宸庐
房屋面积
98㎡
户型结构
套房
装修风格
现代
装修方式
半包
装修造价
查看请联系客服万元
设计师
曹工
项目经理
周工
装修公司
格堂装饰
完工实景
完工实景
水电全景
水电全景
VR全景
VR全景
设计说明
本案设计在格局上就有了很个性的改动,依据业主的习性和居住情况,一个更适合的格局呈现出来。效果上更是利用了原有一些结构形成了流畅的线条,把公共区域串在一起。
更多信息
本帖最后由 格堂王姐 于 2023-10-29 17:13 编辑

效果图


微信图片_20231029170833.jpg



微信图片_20231029170844.jpg
回复

使用道具 举报

 楼主| 发表于 2023-10-10 10:34:51 | 显示全部楼层
本帖最后由 格堂王姐 于 2024-6-17 15:23 编辑

目      录


回复 支持 反对

使用道具 举报

 楼主| 发表于 2023-10-10 10:35:02 | 显示全部楼层
本帖最后由 格堂王姐 于 2023-10-29 17:26 编辑

原始结构图

QQ浏览器截图20231029172501.png
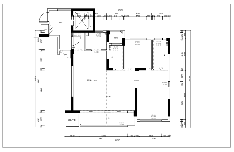
平面布置图



QQ浏览器截图20231029172535.png
回复 支持 反对

使用道具 举报

 楼主| 发表于 2023-10-10 10:36:57 | 显示全部楼层
本帖最后由 格堂王姐 于 2023-10-12 16:10 编辑

大门已经保护到位。

微信图片_20231010092805.jpg


IMG_20231011_152551.jpg

煤气表已经保护到位。

微信图片_20231010092809.jpg

临时小便池已经安放好了:每一个施工现场都会配备临时小便斗,并且时刻保持干净卫生,保证工地环境干净整洁。

12.jpg

排水管道用格堂专用保护盖保护,防止后期施工中砂石 堵塞管道

微信图片_20231010092800.jpg


回复 支持 反对

使用道具 举报

 楼主| 发表于 2023-10-10 10:39:35 | 显示全部楼层
本帖最后由 格堂王姐 于 2023-10-29 17:16 编辑

开工仪式准备,开工横幅、鲜花、礼花准备到位,就等吉时!
开工桌摆好准备

微信图片_20231010092812.jpg

吉时到开工了,恭祝业主大人开工大吉!
仪式很短暂,家居装修却很长……与漫漫人生历程相比,这些短短一瞬,却包含了满满的心意。
我们竭力用自己的专业技能,让每位业主拥有最接近梦想的家!恭祝开工大吉!
开工合影

微信图片_20231029170853.jpg

开工第一锤,由业主敲在要拆除的墙体的墙角(即拐角),象征一锤定音的意思,也是新房动土的一种表示方式
业主敲下第一锤

微信图片_20231029170857.jpg

敲完的痕迹

微信图片_20231029170848.jpg
回复 支持 反对

使用道具 举报

 楼主| 发表于 2023-10-10 10:39:42 | 显示全部楼层
本帖最后由 格堂王姐 于 2023-10-12 16:10 编辑

电梯口墙面和地面都贴好了格堂专用的保护垫。



IMG_20231011_152605.jpg


IMG_20231011_152609.jpg


IMG_20231011_152613.jpg


IMG_20231011_152619.jpg


IMG_20231011_152621.jpg


IMG_20231011_152624.jpg


IMG_20231011_152627.jpg


IMG_20231011_152629.jpg


IMG_20231011_152640.jpg


IMG_20231011_152644.jpg
回复 支持 反对

使用道具 举报

 楼主| 发表于 2023-10-10 10:40:13 | 显示全部楼层
本帖最后由 格堂王姐 于 2023-10-10 11:33 编辑

拆改放样

微信图片_20231010092822.jpg


微信图片_20231010092826.jpg


微信图片_20231010092833.jpg


微信图片_20231010092838.jpg


微信图片_20231010092841.jpg
回复 支持 反对

使用道具 举报

 楼主| 发表于 2023-10-10 11:33:37 | 显示全部楼层

拆改阶段:
房间铲灰,是为了防止墙顶面出现空鼓,在做好油漆后不会有墙顶面整块油漆脱落的现象。
拆除可以让空间利用更合理。为了整体结构的稳定性和安全性,承重墙是一定不能动的。



微信图片_20231010092355.jpg


微信图片_20231010092402.jpg


微信图片_20231010092421.jpg


微信图片_20231010092426.jpg


微信图片_20231010092429.jpg

回复 支持 反对

使用道具 举报

 楼主| 发表于 2023-10-10 11:34:04 | 显示全部楼层
微信图片_20231010092433.jpg



微信图片_20231010092440.jpg


微信图片_20231010092443.jpg


微信图片_20231010092446.jpg


微信图片_20231010092449.jpg


微信图片_20231010092452.jpg
回复 支持 反对

使用道具 举报

 楼主| 发表于 2023-10-10 11:34:27 | 显示全部楼层
微信图片_20231010092456.jpg



微信图片_20231010092500.jpg


微信图片_20231010092503.jpg


微信图片_20231010092506.jpg


微信图片_20231010092510.jpg
回复 支持 反对

使用道具 举报

您需要登录后才可以回帖 登录 | 立即注册

本版积分规则

全国统一客服电话
0570-8028505

24x7小时免费咨询

  • 官方在线客服

    QQ客服:小西

    点击交谈

    QQ客服:良子

    点击交谈

    QQ客服:闵月

    点击交谈
  • 衢州市柯城区财富中心3号楼2楼

  • 衢州格堂装饰有限公司

  • 扫一扫关注官方微信

    获取一手特惠信息

快速回复 返回顶部 返回列表