• 手机版

    扫码体验手机版

  • 微信公众号

    扫码关注公众号

登录注册
游客您好
第三方账号登陆

[衢州] 吾悦华府1-2-30#107㎡——原木风

[复制链接]
发表于 2023-9-19 10:09:15 | 显示全部楼层 |阅读模式
吾悦华府1-2-30#107㎡——原木风

格堂装饰为您全程记录装修全过程!

小区名称
吾悦华府
房屋面积
107㎡
户型结构
套房
装修风格
北欧
装修方式
半包
装修造价
查看请联系客服万元
设计师
徐工
项目经理
徐工
装修公司
格堂装饰
完工实景
完工实景
水电全景
水电全景
VR全景
VR全景
设计说明
设计主题:入目的温柔
温暖静谧的浅色空间,木质材质的运用,以本真的姿态,给予全屋空间自然而又富有质感的底色。每一处都是对生活的热爱,暖色调的高级温暖治愈的理想住宅。悠闲空灵的风格,舒适与自然想融合的一股清流,让人沉浸于这温柔至极的原木调。
更多信息
效果图
微信图片_20230919095944.jpg

微信图片_20230919095947.jpg

微信图片_20230919095929.jpg

微信图片_20230919095941.jpg

微信图片_20230919095951.jpg
回复

使用道具 举报

 楼主| 发表于 2023-9-19 10:10:02 | 显示全部楼层
回复 支持 反对

使用道具 举报

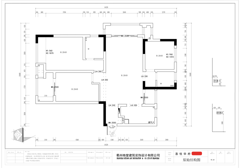
 楼主| 发表于 2023-9-19 10:17:22 | 显示全部楼层
原始结构图
微信图片_20230919100006.png
回复 支持 反对

使用道具 举报

 楼主| 发表于 2023-9-19 10:17:38 | 显示全部楼层
平面布置图
微信图片_20230919100000.png
回复 支持 反对

使用道具 举报

 楼主| 发表于 2023-9-19 10:19:02 | 显示全部楼层
本帖最后由 格堂柴姐 于 2023-9-23 15:25 编辑

开工前,电梯口墙面和地面已经保护到位
IMG_20230922_091401.jpg
IMG_20230922_091356.jpg


IMG_20230922_091406.jpg

IMG_20230922_091411.jpg

IMG_20230922_091416.jpg
回复 支持 反对

使用道具 举报

 楼主| 发表于 2023-9-19 10:19:17 | 显示全部楼层
本帖最后由 格堂柴姐 于 2023-9-23 15:26 编辑

大门已经保护到位
IMG_20230922_091351.jpg

门槛已保护到位
IMG_20230922_091500.jpg
回复 支持 反对

使用道具 举报

 楼主| 发表于 2023-9-19 10:19:42 | 显示全部楼层
煤气表已经保护到位
IMG_20230916_094317.jpg
回复 支持 反对

使用道具 举报

 楼主| 发表于 2023-9-19 10:20:15 | 显示全部楼层
临时小便池已经安放好了:每一个施工现场都会配备临时小便斗,并且时刻保持干净卫生,保证工地环境干净整洁
IMG_20230916_094329.jpg
回复 支持 反对

使用道具 举报

 楼主| 发表于 2023-9-19 10:20:53 | 显示全部楼层
露出来的管口已封堵好
IMG_20230916_094320.jpg

IMG_20230916_094333.jpg

IMG_20230916_095302.jpg

IMG_20230916_095305.jpg
回复 支持 反对

使用道具 举报

 楼主| 发表于 2023-9-19 10:21:24 | 显示全部楼层
开工仪式准备,开工横幅、鲜花、礼花准备到位,就等吉时
IMG_20230916_095753.jpg
回复 支持 反对

使用道具 举报

您需要登录后才可以回帖 登录 | 立即注册

本版积分规则

全国统一客服电话
0570-8028505

24x7小时免费咨询

  • 官方在线客服

    QQ客服:小西

    点击交谈

    QQ客服:良子

    点击交谈

    QQ客服:闵月

    点击交谈
  • 衢州市柯城区财富中心3号楼2楼

  • 衢州格堂装饰有限公司

  • 扫一扫关注官方微信

    获取一手特惠信息

快速回复 返回顶部 返回列表