• 手机版

    扫码体验手机版

  • 微信公众号

    扫码关注公众号

登录注册
游客您好
第三方账号登陆

[衢州] 云澜府6-1-4#133㎡现代小法——栀子花的清香

[复制链接]
发表于 2023-9-12 11:24:31 | 显示全部楼层 |阅读模式
云澜府6-1-4#133㎡现代小法——栀子花的清香

格堂装饰为您全程记录装修全过程!

小区名称
云澜府
房屋面积
133㎡
户型结构
套房
装修风格
现代
装修方式
半包
装修造价
查看请联系客服万元
设计师
佘工
项目经理
刘工
装修公司
格堂装饰
完工实景
完工实景
水电全景
水电全景
VR全景
VR全景
设计说明
本案通过柔和温暖的色系打造出一种温馨舒适的感觉,顶面,墙面的石膏线条突显了浪漫的优雅气质
更多信息
本帖最后由 格堂王姐 于 2023-10-4 11:01 编辑

效果图

微信图片_20231004102737.jpg


微信图片_20231004102805.jpg
回复

使用道具 举报

 楼主| 发表于 2023-9-14 08:49:00 | 显示全部楼层
回复 支持 反对

使用道具 举报

 楼主| 发表于 2023-9-14 08:49:34 | 显示全部楼层
本帖最后由 格堂王姐 于 2023-9-21 16:07 编辑

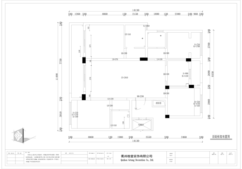
原始结构图

微信图片_20230914095817.jpg

平面布置图


微信图片_20230914095816_1.jpg
回复 支持 反对

使用道具 举报

 楼主| 发表于 2023-9-14 08:52:00 | 显示全部楼层
本帖最后由 格堂王姐 于 2023-10-4 11:17 编辑

开工前大门先要保护起来,防止磕碰哦!

IMG_20230912_162736.jpg


临时马桶:每一个施工现场都会配备临时小便斗,并且时刻保持干净卫生、保证工地环境干净、整洁。

IMG_20230912_163159.jpg


煤气表已经保护到位。

IMG_20230912_163109.jpg


排水管道用格堂专用保护盖保护,防止后期施工中砂石 堵塞管道

IMG_20230912_163134.jpg

回复 支持 反对

使用道具 举报

 楼主| 发表于 2023-9-14 08:52:12 | 显示全部楼层
本帖最后由 格堂王姐 于 2023-9-14 08:57 编辑

电梯口墙面和地面都贴好了格堂专用的保护垫。


IMG_20230912_162741.jpg


IMG_20230912_162743.jpg


IMG_20230912_162746.jpg


IMG_20230912_162748.jpg


IMG_20230912_162751.jpg


IMG_20230912_162757.jpg


IMG_20230912_162758.jpg


IMG_20230912_162802.jpg


IMG_20230912_162804.jpg


IMG_20230912_162809.jpg

回复 支持 反对

使用道具 举报

 楼主| 发表于 2023-9-14 08:53:01 | 显示全部楼层
本帖最后由 格堂王姐 于 2023-9-14 08:55 编辑

开工了!
一切准备就绪,等待开工吉时
开工桌摆好准备

微信图片_20230908113325.jpg

仪式很短暂,家居装修却很长……与漫漫人生历程相比,这些短短一瞬,却包含了满满的心意。
我们竭力用自己的专业技能,让每位业主拥有最接近梦想的家!恭祝开工大吉!
开工合影

微信图片_20230912105215.jpg


业主敲第一锤
装修开工第一锤应该敲在要拆除的墙体的墙角(即拐角),象征一锤定音的意思,也是新房动土的一种表示方式。

微信图片_20230908113331.jpg

微信图片_20230912105204.jpg

敲完的痕迹

微信图片_20230912105209.jpg
回复 支持 反对

使用道具 举报

 楼主| 发表于 2023-9-14 09:00:13 | 显示全部楼层
拆改阶段:房间铲灰是为了防止墙顶面出现空鼓在做好油漆后不会有墙顶面整块油漆脱落的现象
拆除可以让空间利用更合理。为了整体结构的稳定性和安全性,承重墙是一定不能动的。

微信图片_20230912105221.jpg


微信图片_20230912105225.jpg


微信图片_20230912105228.jpg


微信图片_20230912105232.jpg


微信图片_20230912105236.jpg


微信图片_20230912105239.jpg

回复 支持 反对

使用道具 举报

 楼主| 发表于 2023-9-14 09:00:35 | 显示全部楼层
微信图片_20230912105244.jpg


微信图片_20230912105248.jpg

微信图片_20230912105252.jpg

微信图片_20230912105256.jpg


微信图片_20230912105259.jpg
回复 支持 反对

使用道具 举报

 楼主| 发表于 2023-9-14 09:00:58 | 显示全部楼层
微信图片_20230912105302.jpg


微信图片_20230912105305.jpg


微信图片_20230912105310.jpg


微信图片_20230912105314.jpg


微信图片_20230912105318.jpg


微信图片_20230912105322.jpg
回复 支持 反对

使用道具 举报

 楼主| 发表于 2023-9-14 09:01:42 | 显示全部楼层
砌墙中途

微信图片_20230912105336.jpg


微信图片_20230912105339.jpg


微信图片_20230912105343.jpg

微信图片_20230912105348.jpg

微信图片_20230912105352.jpg
回复 支持 反对

使用道具 举报

您需要登录后才可以回帖 登录 | 立即注册

本版积分规则

全国统一客服电话
0570-8028505

24x7小时免费咨询

  • 官方在线客服

    QQ客服:小西

    点击交谈

    QQ客服:良子

    点击交谈

    QQ客服:闵月

    点击交谈
  • 衢州市柯城区财富中心3号楼2楼

  • 衢州格堂装饰有限公司

  • 扫一扫关注官方微信

    获取一手特惠信息

快速回复 返回顶部 返回列表